Rehabilitation Ferdigattest Enebolig

Riving og gjenoppføring av enebolig med fasadeendring på Nes Terrasse 45, Asker

📍 Nes terrasse 45 , 1394 NESBRU

Nøkkelinfo

Sakstype
Rehabilitering
Bygningstype
Enebolig
Bruksareal
710 m²
Boenheter
1
Kommune
Asker
Fylke
Akershus
Gnr / Bnr
39 / 274
Saksnummer
20/178
Fase
Ferdigattest

Om byggesaken

Ny enebolig på totalt 710 m² fordelt på kjeller, 1. og 2. etasje, oppført på samme sted som tidligere bygning. Bygget har saltak med tegl på taket, trekledning på fasader og omfattende fasadeendringer inkludert innbygging av inngangsparti som vindfang. Kjelleren er nyoppført under hele bygningsvolumet med moderne planløsning og tekniske rom. Innvendig inneholder boligen flere soverom, bad, stuer, kjøkken, vaskerom og bodarealer. Bygget har en trapp, balkong og pipe. Det gjenstår mindre innvendige arbeider som ferdigstilling av bad, innerdører, listverk, malerarbeider og plassbygde innredninger før ferdigattest kan gis.

Produkter og materialer

Fasade Trekledning

🧱 Tre

Trekledning på alle fasader, inkludert fasadeendringer og innbygging av inngangsparti

Trekledning på fasader med bevaringsverdig stil

Grunnarbeid Riving og demontering

Riving av eksisterende bygning og demontering av kjeller

Grunnarbeid for nybygg

Mur Grunnmur og murarbeid

🧱 Murstein/betong

Murarbeid knyttet til grunnmur og kjeller

Murarbeid for fundament og kjeller

Dører Ytterdører og innerdører

🧱 Tre

Antall: 17

Ytterdører på fasader Øst (1), Vest (1), Sør (2), innerdører i 1. etasje og kjeller gjenstår ferdigstilt

Ytterdører og innerdører i tre, inkludert dør til grovkjøkken/vaskerom

Tak Saltak med tegl

🧱 Teglstein

Antall: 1

Saltak med tegl på hele bygget

Tak med saltak og teglstein som takmateriale

Innredning Plassbygde innredninger

Plassbygde innredninger i stue og dør til grovkjøkken/vaskerom gjenstår

Innredning i bolig

Elektro Elektriske installasjoner

Elektriske installasjoner i bolig

Elektroarbeid for bolig

Maling Innvendig og utvendig maling

Innvendig listverk og utvendig malerarbeider gjenstår

Maling og overflatebehandling

VVS Sanitærinstallasjoner og bunnledninger

Sanitærinstallasjoner i hele bygget, inkludert nye våtrom i kjeller og 1. etasje

VVS-installasjoner for vann og avløp

Tømrer Tømrerarbeid og montering av trekonstruksjoner

🧱 Tre

Tømrerarbeid for oppføring av trekonstruksjoner i bolig

Tømrerarbeid for bærende og ikke-bærende trekonstruksjoner

Trapper Innvendig trapp

🧱 Tre/stål

Antall: 1

Trapp mellom etasjer, inkludert trapp til kjeller som er klar til bruk

Innvendig trapp i eneboligen

Gulv Innvendige gulvflater

Innvendige gulv i alle etasjer, inkludert bad og stue

Gulvflater i bolig

Ventilasjon Ventilasjon og varme

Ventilasjon og varmeinstallasjoner i hele bygget

Ventilasjon og varme for bolig

Vinduer Fasadevindu

🧱 Tre med 3-lags energiglass

Antall: 42

Vinduer fordelt på fasader: Sør (10), Nord (12), Øst (6), Vest (7), Ukjent (5)

Fasadevinduer i tre med energiglass for hele eneboligen

Betong Ny kjeller og grunnmur

🧱 Betong

Ny kjeller under hele bygningsvolumet med ny grunnmur iht. TEK17

Betongarbeider for ny kjeller og fundamentering

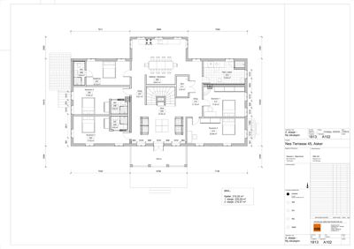
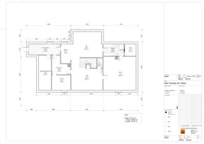
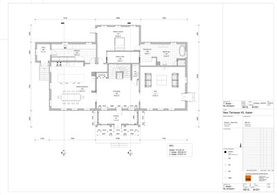
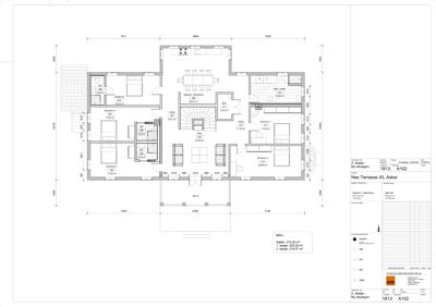
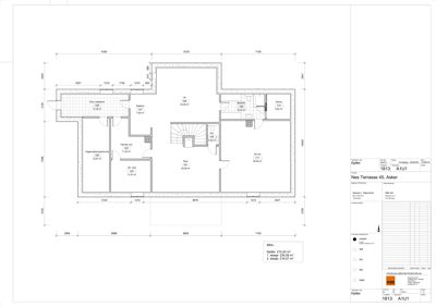
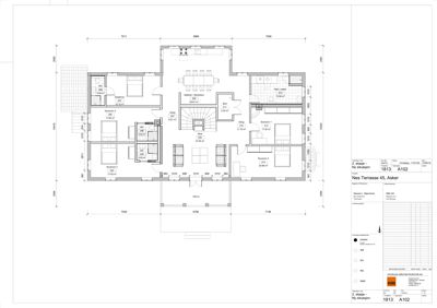
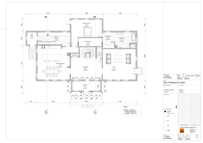
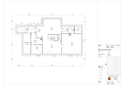
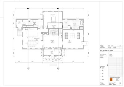
Plantegning

Enebolig 710.4 m²

Etasje 2 215.5 m²

Rom Areal Vinduer Dører
Gang 201 8.5 m² 0 2
Stue 202 37.5 m² 2 1
Soverom 3 203 17.6 m² 1 1
WC 204 3.2 m² 0 1
Soverom 4 205 17.6 m² 1 1
WC 206 3.0 m² 0 1
Gjestesrom 207 15.1 m² 0 1
WC 208 3.5 m² 0 1
Kjøkken / Spisestue 209 28.7 m² 1 0
Gang 210 11.7 m² 0 1
Bod 211 3.4 m² 0 1
Bad / vaske 212 12.9 m² 0 1
Soverom 1 213 17.5 m² 1 1
Soverom 2 214 20.9 m² 1 1

Etasje 1 284.7 m²

Rom Areal Vinduer Dører
Vindfang 101 11.8 m² 3 2
Entre gang 102 36.6 m² 0 4
WC 103 2.3 m² 0 1
Kjøkken/Spisestue 104 49.0 m² 2 1
Vaskerom 105 18.0 m² 0 2
Gang 106 5.2 m² 0 1
Master soverom 107 26.0 m² 1 1
Walk-in closet 108 8.5 m² 0 2
Dressing rom 109 8.3 m² 0 1
Master bad 110 13.5 m² 0 1
Stue 111 43.9 m² 2 1

Etasje 0 210.2 m²

Rom Areal Vinduer Dører
Stue U01 40.3 m² 0 1
Div. bod U03 12.0 m² 0 1
Teknisk rom U04 11.2 m² 0 1
Hagemøbler/sports bod U05 18.7 m² 0 1
Grov vaskerom U06 14.3 m² 0 1
Kjøkken U07 7.9 m² 0 1
Vin U08 33.1 m² 0 0
Bad/WC U09 10.0 m² 0 1
Sauna U10 5.6 m² 0 1
All rom U11 46.3 m² 0 1
WC U02 2.1 m² 0 1

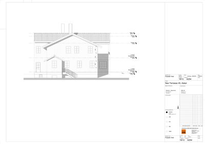
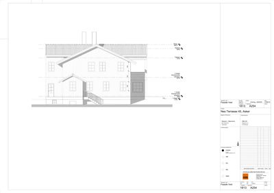
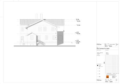
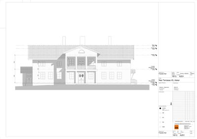
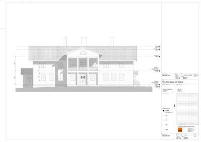
Fasader

Enebolig

Sør
Materiale
Tre
Taktype
Saltak
Høyde
4.8 m
Mønehøyde
8.2 m
Vinduer
10
Dører
2
Balkonger
3
Synlige etasjer
2
Nord
Materiale
Tre
Taktype
Saltak
Høyde
4.8 m
Mønehøyde
9.8 m
Vinduer
12
Dører
0
Balkonger
1
Synlige etasjer
2
Øst
Materiale
Tre
Taktype
Saltak
Takmat.
Tegl
Høyde
4.8 m
Mønehøyde
8.2 m
Vinduer
6
Dører
1
Balkonger
1
Synlige etasjer
2
Vest
Materiale
Tre
Taktype
Saltak
Høyde
4.0 m
Mønehøyde
8.2 m
Vinduer
7
Dører
1
Synlige etasjer
2
Ukjent
Taktype
Saltak
Høyde
6.0 m
Mønehøyde
8.2 m
Vinduer
5
Dører
2
Balkonger
1
Synlige etasjer
3

Hendelser

14.04.2026 39/274 Riving/demontering av bygning og gjenoppføring med fasadeendring - Øvre Nes gård - Anmodning om oppfølging av saken
13.04.2026 39/274 Riving/demontering av bygning og gjenoppføring med fasadeendring - Øvre Nes gård - Ber om status
18.03.2026 39/274 Riving/demontering av bygning og gjenoppføring med fasadeendring - Øvre Nes gård - Manglende ferdigattest eller midlertidig brukstillatelse
27.06.2022 39/274 Svar om midlertidig brukstillatelse - Riving/demontering av bygning og gjenoppføring med fasadeendring - Øvre Nes gård
24.06.2022 39/274 Midlertidig brukstillatelse - Riving/demontering av bygning og gjenoppføring med fasadeendring - Øvre Nes gård
23.06.2022 39/274 Vedrørende søknad om midlertidig brukstillatelse - Riving/demontering av bygning og gjenoppføring med fasadeendring
21.06.2022 39/274 Søknad om midlertidig brukstillatelse - Riving/demontering av bygg og gjenoppføring med fasadeendring - Øvre Nes gård
16.08.2021 39/274 Det må sendes inn ny søknad om sanitærabonnement - Øvre Nes gård
23.12.2020 39/274 Svar til mottatt gjennomføringsplan og redegjørelse for trafikksikring - Øvre Nes gård
05.10.2020 39/274 Redegjørelse for sikring av skolevei - Riving/demontering av bygning og gjenoppføring med fasadeendring - Øvre Nes gård
01.10.2020 39/274 Oversendelse oppdatert gjennomføringsplan - Øvre Nes gård
11.09.2020 39/274 Ajourføring av ansvarsretter - Riving/demontering av bygning og gjenoppføring m fasadeendring - Øvre Nes gård
11.09.2020 39/274 Oversendelse dokumentasjon - Riving / demontering av bygning og gjenoppføring med fasadeendring - Øvre Nes gård
10.09.2020 39/274 Endringstillatelse - Ny, full kjeller og innbygging av inngangsparti, Riving/demontering og gjenoppbygg.Øvre Nes gård
08.09.2020 39/274 Opphør av ansvarsrett - Riving/demontering av bygning og gjenoppføring m fasadeendring - Øvre Nes gård
03.09.2020 39/274 Informasjon sanitærsøknad - Riving/demontering av bygning og gjenoppføring m fasadeendring - Øvre Nes gård
31.08.2020 39/274 Informasjon til ansvarlig søker
31.08.2020 39/274 Trenger mer dokumentasjon tilknyttet endringssøknaden
10.08.2020 39/274 Oversendelse av dokumentasjon - Riving/demontering av bygning og gjenoppføring m fasadeendring - Øvre Nes gård
04.08.2020 39/274 Oversendelse etterspurt dokumentasjon - Riving/demontering av bygning og gjenoppføring m fasadeendring - Øvre Nes gård
26.05.2020 39/274 Etterspør tilleggsinformasjon - Søknad om endring - Riving/demontering av bygning og gjenoppføring
25.05.2020 39/274 Søknad om endring av gitt tillatelse / Melding om endring av ansvarsretter - Øvre Nes Gård
17.03.2020 39/274 Korrepondanse brakker - Riving/demontering av bygning og gjenoppføring m fasadeendring
17.03.2020 39/274 Informasjon fra tiltakshaver om brakker
16.03.2020 39/274 Kopi av e-post til tiltakshaver
10.03.2020 39/274 Tilbakemelding brakker - Riving/demontering av bygning og gjenoppføring m fasadeendring
10.03.2020 39/274 Tilbakemelding oppstart av arbeider og brakkerigg
03.03.2020 39/274 Ønsker forlenget frist for tilbakemelding vedrørende brakkerigg
03.03.2020 39/274 Gitt forlenget frist redegjørelse brakkerigg - Riving/demontering av bygning og gjenoppføring med fasadeendring
28.02.2020 39/274 Etterspør redegjørelse vedrørende brakkerigg