Rehabilitation UnderBehandling Enebolig

Rehabilitering, fasadeendring og støttemur på enebolig i Styrmoes vei 49, Drammen

📍 Styrmoes vei 49 , 3043 DRAMMEN

Nøkkelinfo

Sakstype
Rehabilitering
Bygningstype
Enebolig
Bruksareal
310 m²
Boenheter
4
Kommune
Drammen
Fylke
Buskerud
Gnr / Bnr
20 / 44
Saksnummer
24/19456
Fase
Under behandling

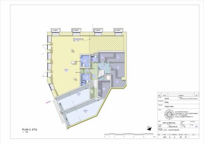
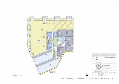
Om byggesaken

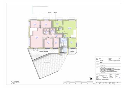
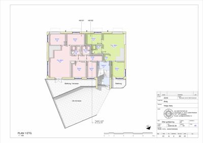
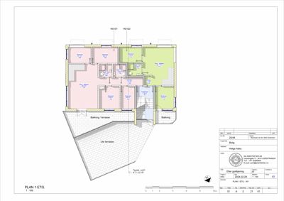
Prosjektet omfatter omfattende rehabilitering og fasadeendringer på en eksisterende enebolig med tilhørende næringslokaler i underetasjen på Styrmoes vei 49 i Drammen. Det er etablert ny støttemur langs fortauet mot Styrmoes vei og Møllebekkveien for å sikre adkomst til næringsdelen i underetasjen. Bygget har tre etasjer med boligformål i 1. og 2. etasje, og næringsareal i underetasjen på ca. 98 m². Fasadeendringer inkluderer innsetting av større vinduer med lysgraver i underetasjen, nye balkonger og terrasser i flere etasjer. Det er også foretatt bruksendring i underetasjen med utvidelse av næringsdelen på ca. 23 m². Bygget har saltak og tre som fasademateriale. Overvannshåndtering er planlagt med infiltrasjonssandfang og grøntområder, og det er søkt dispensasjon fra regulert byggegrense. Brannkonsept er utarbeidet med krav til brannsikring, rømningsveier og tekniske installasjoner. Prosjektet er under behandling med krav om flere suppleringer og dispensasjoner.

Arbeidsomfang

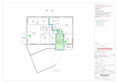
- Endring av brannskiller: Etablering av egne ventilasjonsaggregat i underetasje og loftsrom for hver leilighet, med spjeld og isolasjon på rørgjennomføringer for å skille brannenheter. - Bruksendring i kjeller: Utvidelse av næringsdelen fra tilleggsdel til hoveddel (ca 23 m²). - Fasadeendring: Innsetting av større vinduer mot sør for dagslys i underetasjen. - Fasadeendring: Etablering av nytt inngangsparti. - Fasadeendring: Etablering av ny uteterrasse på -dekkenivå over garasjene. - Fasadeendring: Etablering av nye balkonger/terrasser og dører til leilighetene H101, H102, H201 og H202. - Fasadeendring: Fjerning av en inngangsdør på underetasjen. - Støttemur: Etablering av ny støttemur langs fortau mot Styrmoes vei for adkomst til næringsdel.

Produkter og materialer

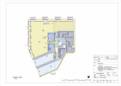
Grunnarbeid Terrengendringer

Senking av terreng bak støttemur for adkomst til næringsdel

Terrengarbeid for adkomst og støttemur

Fasade Balkonger og terrasser

🧱 Tre

Antall: 3

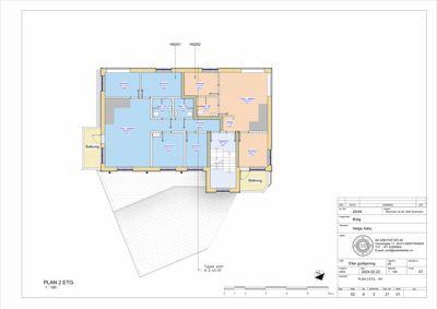
Nye balkonger og terrasser i 1. og 2. etasje, inkludert balkong mot nord og øst

Fasadeendringer med nye balkonger og terrasser for boligene

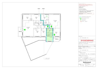
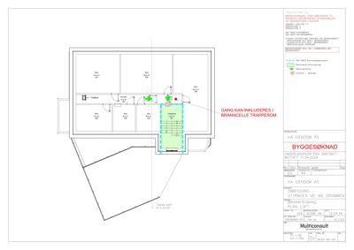
Brannvern Brannvarsling og ledesystem

Røykvarslere tilkoblet strømnett, ledesystem med nødbelysning og markeringsskilt

Brannvarsling og rømningssystem i bolig og næringsdel

Gulv Innvendige overflater

Overflater i våtrom og øvrige rom med branntekniske krav

Innvendige overflater med brannteknisk klassifisering

Tømrer Balkongdører og terrassedører

🧱 Tre/Aluminium

Antall: 5

Nye dører til balkonger og terrasser i 1. og 2. etasje

Dører til nye balkonger og terrasser

Gjerde Rekkverk

🧱 Tre eller metall

Rekkverk på støttemur ca. 1,1 m høyt, ikke tilfredsstillende som trafikksikkerhet

Rekkverk på støttemur mot vei

Brannvern Brannslokkeutstyr

Håndslokkere og brannslanger iht. NS-EN standarder

Manuelt slokkeutstyr i bolig og næringsdel

VVS Sanitærinstallasjoner

Dusj, WC og sanitærrom i underetasje og boligetasjer

Sanitærinstallasjoner i bolig og næringsdel

Mur Støttemur

🧱 Armert betong

Støttemur mot Styrmoes vei og Møllebekkveien, høyde ca. 0,37m til 1,08m, med rekkverk ca. 1,1-1,5m høyde

Ny støttemur langs fortau for å sikre adkomst til næringsdel i underetasjen

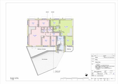
Bruksendring Næringslokale i underetasje

Utvidelse av næringsdelen i underetasjen med ca. 23 m², bruksendring fra tilleggsdel til hoveddel

Endring av planløsning i kjeller for næringsformål

Ventilasjon Ventilasjonsanlegg

Ventilasjonsaggregater i underetasje og loft, med brannspjeld og røykdeteksjon

Ventilasjonsanlegg for bolig og næringsdel med branntekniske krav

Grunnarbeid Overvannshåndtering

Infiltrasjonssandfang, grøntområder, nedsenkninger, dreneringsrør i grus og sand

Tiltak for håndtering av overvann på eiendommen i henhold til kommunale krav

Fasade Kledning

🧱 Tre

Kledning med brannteknisk klassifisering K210 A2-s1,d0 på rømningsvei

Ytterkledning på boligbygget

Tak Taktekking

Taktekking med brannklasse BROOF (t2)

Taktekking på boligbygget

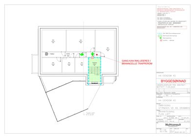
Trapper Trapperom

Antall: 1

Trapperom som egen branncelle med røykluke eller røykvifte

Innvendig trapp i boligbygget

Dører Brannklassifiserte dører

Dører med brannmotstand tilsvarende bygningsdel, inkl. selvlukkere og røyktetthet

Brannklassifiserte dører i brannceller og rømningsveier

Fasade Vinduer

🧱 Tre med lysgraver

Antall: 3

Større vinduer med lysgraver i underetasjen mot sørvest

Innsetting av større vinduer for dagslys og utsyn i næringsdelen i underetasjen

Fasader

4-manns-bolig

Nord
Materiale
Tre
Taktype
Saltak
Høyde
3.0 m
Mønehøyde
8.2 m
Vinduer
8
Dører
2
Balkonger
2
Synlige etasjer
3
Sør
Materiale
Tre
Taktype
Saltak
Høyde
3.5 m
Mønehøyde
5.9 m
Vinduer
8
Dører
1
Balkonger
1
Synlige etasjer
2
Vest
Materiale
Tre
Taktype
Saltak
Høyde
3.5 m
Mønehøyde
6.5 m
Vinduer
4
Dører
1
Balkonger
1
Synlige etasjer
2
Øst
Materiale
Tre
Taktype
Saltak
Høyde
6.2 m
Mønehøyde
8.9 m
Vinduer
6
Dører
2
Balkonger
1
Synlige etasjer
3

Hendelser

07.04.2026 Styrmoes vei 49, vi trenger flere opplysninger for å behandle søknaden din søknad
05.01.2026 Styrmoes vei 49 Supplering av søknad 20/44 søknad
06.10.2025 Fv. 2706 - Styrmoes vei 49 - kopi: dispensasjon fra byggegrense - uttalelse dispensasjon
25.09.2025 Styrmoes vei 49, fristutsettelse
24.09.2025 Styrmoes vei 49, anmodning om utsettelse av frist
26.08.2025 Styrmoes vei 49, møtetidspunkt
14.08.2025 Styrmoes vei 49, ber om oppklaringsmøte
18.07.2025 Styrmoes vei 49, fristutsettelse
30.06.2025 Styrmoes vei 49, ber om fristutsettelse
13.06.2025 Styrmoes vei 49, vi trenger flere opplysninger for å behandle søknaden din søknad
04.06.2025 Styrmoes vei 49, korrespondanse
24.03.2025 Styrmoes vei 49 Supplering av søknad 20/44 søknad
24.02.2025 Styrmoes vei 49, vi trenger flere opplysninger for å behandle søknaden din søknad
17.01.2025 Styrmoes vei 49 Supplering av søknad 20/44 søknad
15.01.2025 Styrmoes vei 49, Kopi: Vi innvilger søknaden om samtykke etter automatisk saksbehandling søknad
26.11.2024 Styrmoes vei 49, ny frist 17.01.2025
26.11.2024 Styrmoes vei 49, ber om fristforlengelse
08.11.2024 Styrmoes vei 49, vi trenger flere opplysninger for å behandle søknaden din søknad
26.08.2024 Styrmoes vei 49 Supplering av søknad 20/44 søknad
09.08.2024 Styrmoes vei 49 - Spørsmål vedr. nabovarsling nabovarsel
22.07.2024 Styrmoes vei 49, vi trenger flere opplysninger for å behandle søknaden din søknad
24.06.2024 Styrmoes vei 49, Fv. 2706, Dispensasjon fra byggegrense - Uttalelse dispensasjon
29.05.2024 Styrmoes vei 49, anmodning om uttalelse fra Buskerud Fylkeskommune
17.05.2024 Styrmoes vei 49, melding om mottatt søknad søknad
15.05.2024 Styrmoes vei 49 Søknad om tillatelse i ett trinn 20/44 dispensasjon