Photo
Fotografi av en liten, hvitfarget trehytte med snø på bakken og taket.
1 / 11
Demolition
Rammetillatelse
Enebolig
Riving av enebolig i Holtegutua 26A, Jessheim
📍 Holtegutua 26A , 2067 JESSHEIM
Nøkkelinfo
- Sakstype
- Riving
- Bygningstype
- Enebolig
- Bruksareal
- 98 m²
- Boenheter
- 1
- Kommune
- Ullensaker
- Fylke
- Akershus
- Gnr / Bnr
- 152 / 51
- Saksnummer
- 2026/1854
- Fase
- Rammetillatelse
Om byggesaken
Eksisterende enebolig på 98,27 m² fordelt på to etasjer skal rives. Boligen har en etasje med stue, kjøkken, gang, entré, bad og veranda, og en andre etasje med gang og to soverom. Bygningen har ett trapperom og flere vinduer og dører fordelt på rommene. Rivearbeidet inkluderer demontering og fjerning av bygningskonstruksjoner samt sortering og levering av avfall til godkjent mottak. Eiendommen ligger i et område uten kvikkleireskredfare, og tiltaket omfatter kun riving, ikke nybygg eller annen oppføring.
Produkter og materialer
Grunnarbeid
Rydding og klargjøring av tomt etter riving
Antall: 1
Tomt ryddes og klargjøres for eventuell fremtidig bruk etter riving
Grunnarbeid knyttet til opprydding etter riving
Riving
Demontering og fjerning av bygningskonstruksjoner
Antall: 1
Riving av enebolig på 98,27 m², inkludert sortering og levering av avfall til godkjent mottak
Komplett rivearbeid for eksisterende bolig, inkludert miljøsanering og avfallshåndtering
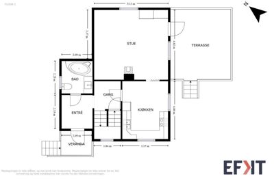
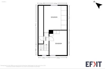
Plantegning
Enebolig 98.3 m²
Etasje 2 33.5 m²
| Rom | Areal | Vinduer | Dører |
|---|---|---|---|
| Gang 201 | 6.5 m² | 0 | 2 |
| Soverom 202 | 18.3 m² | 1 | 1 |
| Soverom 203 | 14.7 m² | 1 | 1 |
Etasje 1 64.8 m²
| Rom | Areal | Vinduer | Dører |
|---|---|---|---|
| Stue 101 | 18.0 m² | 1 | 1 |
| Kjøkken 102 | 12.7 m² | 2 | 1 |
| Gang 103 | 4.5 m² | 0 | 2 |
| Entré 104 | 5.5 m² | 0 | 1 |
| Bad 105 | 5.0 m² | 0 | 1 |
| Veranda 106 | 4.2 m² | 0 | 1 |
Hendelser
15.04.2026
Supplering av søknad - Gnr 152 bnr 51 - Holtegutua 26A - Riving - Enebolig
13.04.2026
Tillatelse til tiltak - Gnr 152 bnr 51 - Holtegutua 26A - Riving - Enebolig
25.03.2026
Sak 26/1854 - Gnr 152 bnr 51 - Holtegutua 26A
24.03.2026
Svar på mangelbrev - Gnr 152 bnr 51 - Holtegutua 26A - Riving - Enebolig
12.03.2026
Tilbakemelding om mangler - Gnr 152 bnr 51 - Holtegutua 26A - Riving - Enebolig
24.02.2026
Søknad om tillatelse i ett trinn - Gnr 152 bnr 51 - Holtegutua 26A - Riving - Enebolig