Demolition Avslatt Enebolig

Riving og ny bolig med to leiligheter i Samuel Nikolai Hansensgate 10A, Lillesand

📍 Samuel Nikolai Hansensgate 10A , 4790 LILLESAND

Nøkkelinfo

Sakstype
Riving
Bygningstype
Enebolig
Bruksareal
392 m²
Boenheter
2
Kommune
Lillesand
Fylke
Agder
Gnr / Bnr
47 / 224
Saksnummer
2022/2913
Fase
Avslått

Om byggesaken

Eksisterende bolig i Samuel Nikolai Hansensgate 10A, Lillesand, oppført i 1837, skal rives. Boligen har gjennomgått tre omfattende på- og ombygninger, og fremstår i dag med et helt annet arkitektonisk uttrykk enn den opprinnelige boligen. Byggets tekniske tilstand er svært dårlig med store fuktproblemer, kollapsende grunnmurer og underdimensjonert bæring i alle etasjer, noe som krever totalrehabilitering. Ny bolig skal oppføres med to leiligheter og mellombygg gjenoppføres som før riving for å bevare gårdsrommet. Tiltaket krever dispensasjon fra reguleringsplanens krav om bevaring, byggegrense, utnyttelsesgrad og parkeringskrav. Saken har vært gjenstand for omfattende saksbehandling, klager og befaringer, og det foreligger vedtak om avslag på dispensasjon som er påklaget. Plan- og miljøutvalget har gitt dispensasjon med vilkår om ny bebyggelse i tradisjonell stil, men vedtaket er omgjort av Statsforvalteren som avslår dispensasjon og rammetillatelse. Det er tilbudt forhåndskonferanse for videre oppfølging etter byggesaksforskriften kapittel 19.

Produkter og materialer

Trapper Innvendige trapper

Antall: 2

Nye innvendige trapper i boligens tre etasjer

Fasade Kledning og vinduer

🧱 Ny kledning og koblede vinduer

Ny kledning tilpasset ny bolig, koblede vinduer større enn opprinnelige, fasade i tradisjonell stil

Oppføring av ny fasade med moderne materialer og tradisjonell arkitektur

Terrasse Bevaring av gårdsrom

Bevaring av koselig og autentisk gårdsrom mellom boligene

Opprettholdelse av gårdsrommets karakter ved nybygg

Elektro Nytt elektrisk anlegg

Åpent elektrisk anlegg med ledninger og kontakter montert på vegg, skjult anlegg i ny bolig

Nytt elektrisk anlegg i henhold til dagens standard

Bæring Ny bæring i alle etasjer

🧱 Limtre/stålbjelker

Etablering av ny bæring i kjeller, 1. og 2. etasje, fjerning av gammel underdimensjonert bæring, inkludert nye innvendige vegger, tak og gulv

Total utskifting av bærende konstruksjoner for å sikre stabil og sikker bolig

Ventilasjon Balansert ventilasjon

Dispensasjon fra krav om balansert ventilasjon i eksisterende bolig

Ventilasjonsanlegg i henhold til dispensasjon

Gulv Nye gulv i alle etasjer

Nye gulv etter fjerning av eksisterende i forbindelse med ny bæring

Oppgradering av gulv i forbindelse med totalrehabilitering

VVS Nytt VVS-anlegg

Nytt VVS-anlegg med moderne standard og nødvendig fall for å unngå lekkasjer

Fullt nytt VVS-anlegg i henhold til dagens krav

Bad Nytt bad

Nytt bad med moderne standard og materialer

Oppgradering av bad i ny bolig

Grunnarbeid Sprenging og oppføring av ny grunnmur

Sprenging av hardt knattefjell, demontering av original mur seksjon for seksjon, oppføring av ny grunnmur, eventuell oppføring av original steinmur, dreneringsgrøft rundt boligen

Omfattende grunnarbeid med sprenging, demontering og oppføring av ny grunnmur for å sikre god drenering og stabilitet

Tak Saltak med takstein

🧱 Takstein

Saltak med tradisjonell takvinkel, takstein, takrenner og pipe

Nytt saltak med tradisjonell utforming og materialvalg

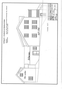
Fasader

Enebolig

Øst
Taktype
Saltak
Vinduer
5
Dører
1
Synlige etasjer
2
Vest
Taktype
Saltak
Vinduer
8
Dører
1
Synlige etasjer
2
Sør
Taktype
Saltak
Vinduer
11
Dører
1
Synlige etasjer
3

Hendelser

21.04.2026 Ber om veiledning om videre saksgang dersom eier ikke etterlever pålegg om dokumentasjon etter SAK10 § 19-2, jf. pbl. § 31-12
20.04.2026 Forespørsel - byggesak - veiledning - videre saksgang dersom eier ikke etterlever pålegg om dokumentasjon - SAK10 § 19-2 - jf. pbl. § 31-12
05.03.2026 Gnr 47 bnr 224 Samuel Nikolai Hansensgate 10A - pålegg om dokumentasjon av bygningens tilstand og forslag til utbedringstiltak
18.02.2026 Statsforvalterens vurdering av omgjøringsbegjæring
21.01.2026 Gnr 47 bnr 224 Samuel Nikolai Hansensgate 10 A - Tilbud om forhåndskonferanse i forbindelse med eventuell oppfølging etter byggesaksforskriften (SAK10) kapittel 19
08.01.2026 Foreløpig svar - Omgjøringsbegjæring
06.01.2026 Saksbehandlingsfeil hos Statsforvalteren
24.10.2025 Statsforvalterens behandling av klage
10.09.2025 Foreløpig svar - saksbehandlingstid
29.08.2025 Gnr 47 bnr 224 Samuel Nikolai Hansensgate 10 A - Forberedende klagebehandling av klage på vedtak om dispensasjon for riving av bygningsmasse og oppføring av ny
28.08.2025 Gnr 47 bnr 224 Samuel Nikolai Hansensgate 10A - Oversender klagesak til Statsforvalteren i Agder for endelig avgjørelse
28.08.2025 Gnr 47 bnr 224 Samuel Nikolai Hansensgate 10A - Underretning om vedtak i klagesak og orientering om videre saksgang
21.08.2025 Innstillinger til saken
11.08.2025 Opprettholder klage på vedtak om riving
18.06.2025 Gnr/bnr 47/224 - Riksantikvarens klage
21.05.2025 Vurdering av forespørsel om utsatt klagefrist og utsatt iverksetting av tiltak
20.05.2025 Informasjon om at det er fattet beslutning om utsatt klagefrist og utsatt iverksetting av tiltak i saken
19.05.2025 Lillesand kommune - Gnr/bnr 47/224 Samuel Nikolai Hansens gate 10a - Rivning av eksisterende bygning og oppføring av ny - forespørsel om utsatt klagefrist
16.05.2025 Underretning om vedtak i fylkesutvalget i forbindelse med vedtak om dispensasjon for rivning av eksisterende bygning - Gnr/bnr 47/224 S.N.Hansens gate 10 a - Lillesand kommune
16.04.2025 Klage - Dispensasjon for riving og oppføring av bygningsmasse, Samuel Nikolai Hansensgate 10A
14.04.2025 Vurdering av forespørsel om utsatt klagefrist og utsatt iverksetting av tiltak
14.04.2025 Informasjon om at det er fattet beslutning om utsatt klagefrist og utsatt iverksetting av tiltak i saken
09.04.2025 Oversender klagedokumenter etter forespørsel
09.04.2025 Ber om utsatt klagefrist
07.04.2025 Gnr 47 bnr 224 Samuel Nikolai Hansensgate 10 A - Forberedende klagebehandling av klage på vedtak om avslag på dispensasjon for riving og oppføring av bygningsmasse
07.04.2025 Vedrørende underretning om vedtak i klagesak - ber om å få oversendt klagen
04.04.2025 Gnr 47 bnr 224 Samuel Nikolai Hansensgate 10A - Underretning om vedtak i klagesak
02.04.2025 Sak 22/2913 - S. N. Hansensgate 10A, Lillesand - Søknad om riving og endring av bygg
14.02.2025 Ny og mer omfattende klage
07.02.2025 Ber om at sak blir behandlet i planutvalget
13.01.2025 Gnr 47 Bnr 224 Samuel Nikolai Hansensgate 10A - Vedtak om avslag på søknad om dispensasjon fra punkt 2.1 i gjeldende reguleringsplan, for riving av bygningsmasse og oppføring av ny bygningsmasse
13.01.2025 Henvendelse i saken og svar på henvendelse
13.01.2025 Samuel Nikolai Hansensgate 10 A - Foreløpig tilbakemelding i saken - varsel om avslag
22.11.2024 Ønsker administrasjonens innstilling på vedtak
16.09.2024 Ønsker å gjenåpne saksbehandlingen
23.05.2023 Svar på henvendelse om innsyn
19.05.2023 Ber om innsyn
15.05.2023 Epost fra tiltakshaver angående søknad S. N. Hansensgate 10A
15.05.2023 Henvendelse fra Fortidsminneforeningen
15.05.2023 Epost fra tiltakshaver angående Kulturminnevernets befaring i S. N. Hansensgate 10A, LIllesand
15.05.2023 Gnr 47 bnr 224 S.N. Hansensgate 10 A - Ber om at saken settes i ro
12.05.2023 Kulturminnevernets mandat i saken
12.05.2023 Bekrefter at saken settes i ro
24.04.2023 Gnr 47 bnr 224 Samuel Nikolai Hansensgate 10 A - Oversender uttalelse fra kulturminnevernet
03.03.2023 Gnr 47 bnr 224 Samuel Nikolai Hansensgate 10 A - Kulturminnefaglig uttalelse
09.01.2023 Tiltakshaver bekrefter tid for befaring
06.01.2023 Forespørsel om tidspunkt for befaring
06.01.2023 Bekrefter tid for befaring
02.01.2023 Kopi av brev til Fylkeskommunen
16.12.2022 Svar på henvendelse om utsettelse av befaring til etter nyttår
09.12.2022 Gnr 47 bnr 224 Samuel Nikolai Hansensgate 10 A - Forespørsel om å utsette befaring
02.12.2022 Gnr 47 bnr 224 Samuel Nikolai Hansensgate 10 A - Anmodning om felles befaring i saken
02.12.2022 Gnr 47 bnr 224 Samuel Nikolai Hansensgate 10 A - Oversender søknad til uttalelse
28.11.2022 Gnr 47 bnr 224 Hansensgate 10A - Kommentarer til søknaden
18.10.2022 Gnr 47 bnr 224 Hansensgate 10A - Søknad om rammetillatelse