Extension Ferdigattest Enebolig

Oppføring av anneks på Abelværvegen 1091

📍 Abelværvegen 1091 , 7970 KOLVEREID

Nøkkelinfo

Sakstype
Tilbygg
Bygningstype
Enebolig
Bruksareal
41 m²
Boenheter
1
Kommune
Nærøysund
Fylke
Trøndelag - Trööndelage
Gnr / Bnr
32 / 32
Saksnummer
2023/1838
Fase
Ferdigattest

Om byggesaken

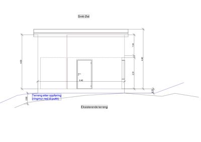
Ny frittstående anneks på eiendommen Abelværvegen 1091, Gnr 32 Bnr 32, bestående av oppholdsrom, soverom og bad/toalett. Bygget har et areal på ca. 6,4 x 6,4 meter og er fundamentert med ringmur ned til pukk. Anneksets tekniske installasjoner inkluderer elektriske varmekabler, nytt sikringsskap, ventilasjon på bad, og tilkobling til kommunalt vann- og avløpsnett via eksisterende slamavskiller. Bygget er oppført som tilbygg til en enebolig og benyttes som fritidsbolig med personlig ansvarsrett som selvbygger. Det foreligger dokumentasjon for avfallshåndtering og samsvarserklæring for elektroarbeid.

Produkter og materialer

Elektro Elektriske varmekabler

Varmekabler i stue og bad

Elektrisk varmesystem med varmekabler i gulv

Fasade Ringmur

🧱 Betong/pukk

Ringmur ned til pukk som fundament

Fundamentering av anneks med ringmur på pukk

Gulv Gulv med varmekabler

Elektriske varmekabler i gulv på stue og bad

Gulvvarme i anneks

Elektro Sikringsskap og installasjon

Antall: 1

Nytt sikringsskap og stigekabling i bakke, komplett ny installasjon med stikk, lys og varme

Elektrisk installasjon for anneks

Ventilasjon Bad ventilasjon

Antall: 1

Ventilasjon bad

Ventilasjonssystem for bad i anneks

Vinduer Fasadevindu

Vinduer i anneks for oppholdsrom og soverom

Tømrer Bygningskonstruksjon anneks

🧱 Tre

Tømrerarbeid for oppføring av anneks med oppholdsrom, soverom og bad

VVS Sanitæranlegg

🧱 PP-rør

Tilkobling til kommunalt vann- og avløpsnett via eksisterende slamavskiller, 110 mm PP-rør

Vann- og avløpsinstallasjon for anneks

Grunnarbeid Grøfting for vann og avløp

Grøft for vann- og avløpsledninger til anneks

Grunnarbeid for tilkobling av vann og avløp

Dører Ytterdør

Antall: 1

Ytterdør til anneks

Hendelser

24.04.2026 32/32 - Øyvind Solbakk - Søknad om tilkobling - Abelværvegen 1091 - gnr 32 bnr 32
10.04.2026 32/32 - Øyvind Solbakk - Søknad om ferdigattest - Oppføring av anneks - Abelværvegen 1091 - gnr 32 bnr 32