Extension UnderBehandling Enebolig

Tilbygg med sekundærleilighet på Ånnerudjordet 43, Asker

📍 Ånnerudjordet 43 , 1383 ASKER

Nøkkelinfo

Sakstype
Tilbygg
Bygningstype
Enebolig
Bruksareal
295 m²
Boenheter
2
Kommune
Asker
Fylke
Akershus
Gnr / Bnr
8 / 94
Saksnummer
20/4764
Fase
Under behandling

Om byggesaken

Ny tilbygg på eksisterende enebolig på Ånnerudjordet 43 i Asker med et samlet areal på ca. 295 m². Tilbygget inkluderer en integrert sekundærleilighet med stue, TV-stue, kjøkken, bad og gangarealer, samt garasjeanlegg under. Bygget har flatt tak og trekledning, to etasjer med gesimshøyde på 4,87 meter, og flere vinduer og dører fordelt på fasadene. Det er planlagt terrengendringer med lysgraver for å bedre dagslysforhold i underetasjen. Prosjektet krever oppfyllelse av TEK17-krav for ny boenhet, inkludert isolasjon, brannsikkerhet, ventilasjon, lydisolasjon og rømningsveier.

Arbeidsomfang

- Oppføring av tilbygg (underbygg) til eksisterende bolig - Utvidelse av boligareal for å skape en sekundærleilighet

Produkter og materialer

Dører Ytterdør og garasjeporter

🧱 tre og metall

Antall: 7

Dører i fasader vest (1 stk), sør (1 stk), samt 2 garasjeporter og flere dører i underetasje

Ytterdører og garasjeporter for tilkomst til tilbygg og garasje

Tømrer Bærende vegger og innvendige vegger

🧱 tre

Bærende og ikke-bærende vegger i tilbygget

Tømrerarbeid for vegger og konstruksjoner i tilbygg

Vinduer Fasadevindu

🧱 tre

Antall: 10

Vinduer i fasader nord (5 stk), vest (2 stk), øst (2 stk), og TV-stue (1 stk) i tilbygget

Fasadevinduer i tre for dagslys og utsyn i tilbygg og sekundærleilighet

Ventilasjon Ventilasjon med ventil i vegg og vindusåpning

Ventilasjon ivaretatt med ventil i vegg og åpning av vinduer

Ventilasjonsløsning for sekundærleilighet i tilbygg

Tak Flatt tak

🧱 ukjent

Antall: 1

Flatt tak over tilbygg med gesimshøyde 4,87 m

Flatt takkonstruksjon for tilbygget

Grunnarbeid Terrengarbeid og lysgraver

Terrengendringer og lysgraver for dagslys i underetasje

Grunnarbeid for tilpasning av terreng og lysforhold i sekundærleilighet

Isolasjon Isolasjon etter TEK17

Isolasjon som oppfyller TEK17 krav for sekundærleilighet

Isolasjon for varme, lyd og fuktsikring i tilbygg

Elektro Elektrisk installasjon

Elektriske installasjoner for belysning, strøm og tekniske anlegg i tilbygg

Fasade Trekledning

🧱 tre

Trekledning på alle fasader (nord, vest, sør, øst)

Trekledning som ytterkledning på tilbygget

Betong Underetasje og garasje

Betongkonstruksjoner for underetasje og garasje

Betongarbeid for fundament, underetasje og garasje

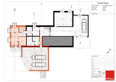
Plantegning

Garasje/Tilbygg 294.7 m²

Etasje 0 294.7 m²

Rom Areal Vinduer Dører
Stue U01 18.8 m² 2 1
Romhøyde U02 24.0 m² 2 1
Kjøkken U03 4.6 m² 0 1
TV stue U04 8.6 m² 1 1
Gang U05 6.6 m² 0 2
Gang U06 8.2 m² 0 2
Gang U07 12.3 m² 0 2
Bad U08 8.1 m² 0 1
Vaskerom U09 6.4 m² 0 1
Sluserom U10 3.3 m² 0 2
Bod U11 33.0 m² 1 1
Garasje U12 68.6 m² 0 1
Garasje U13 70.7 m² 0 1

Fasader

Garasje/Tilbygg

Nord
Materiale
Tre
Taktype
Flatt tak
Høyde
4.9 m
Vinduer
5
Dører
0
Balkonger
2
Synlige etasjer
2
Vest
Materiale
Tre
Taktype
Flatt tak
Høyde
4.9 m
Vinduer
2
Dører
1
Balkonger
1
Synlige etasjer
2
Sør
Materiale
Tre
Taktype
Flatt tak
Høyde
4.9 m
Vinduer
0
Dører
1
Balkonger
1
Synlige etasjer
2
Øst
Materiale
Tre
Taktype
Flatt tak
Høyde
4.9 m
Vinduer
2
Dører
0
Balkonger
1
Synlige etasjer
2

Hendelser

09.04.2026 8/94 Ånnerudjordet 43 Ny frist - Oppføring av tilbygg / sekundærleilighet
01.04.2026 8/94 Ånnerudjordet 43 - Ber om ytterligere utsettelse av frist
29.12.2025 8/94 Ånnerudjordet 43 - Ny frist - Oppføring av tilbygg / sekundærleilighet søknad
22.12.2025 8/94 Ånnerudjordet 43 - Ber om utsatt frist dispensasjon
10.12.2025 8/94 Ånnerudjordet 43 - Nytt varsel om avvisning av sak - Oppføring av tilbygg / sekundærleilighet
20.12.2021 8/94 Varsel om avslutning av sak - Oppføring av tilbygg / sekundærleilighet
05.08.2021 8/94 Mangelbrev - Oppføring av tilbygg / underbygg
27.05.2021 8/94 Svar på mangelbrev og varsel om avslutning av sak - Oppføring av tilbygg / underbygg
14.05.2021 8/94 Varsel om avslutning av sak - Oppføring av tilbygg / underbygg
15.07.2020 8/94 Mangelbrev Oppføring av tilbygg / underbygg
02.07.2020 8/94 Endring av tilatelse byggesak - Oppføring av tilbygg / underbygg