Extension Soeknad Enebolig

Underbygging og bruksendring i kjeller, Årstadgeilen 20, Bergen

📍 Årstadgeilen 20 , 5009 BERGEN

Nøkkelinfo

Sakstype
Tilbygg
Bygningstype
Enebolig
Bruksareal
60 m²
Boenheter
1
Kommune
Bergen
Fylke
Vestland
Gnr / Bnr
163 / 111
Saksnummer
BYGG-2026/12700
Fase
Søknad

Om byggesaken

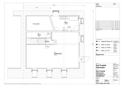
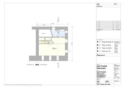
Prosjektet omfatter underbygging av bolighusets underetasje i hjørnet mot sør/øst samt bruksendring av deler av kjelleretasjen fra tilleggsdel til hoveddel. Kjelleretasjen på totalt 60,2 m² inneholder gang, bod, kjellerstue og bad. Kjellerstuen på 44,8 m² får tre nye vinduer og en dør, mens badet på 11,1 m² etableres uten vinduer. Bygget er en to-etasjes enebolig med trekledning og saltak, og tiltaket inkluderer støpt nytt isolert gulv og etablering av våtrom med membran og flislegging. Det er én trapp i kjelleretasjen, og tiltaket påvirker ikke fasadene utvendig.

Produkter og materialer

Mur Grunnmur

🧱 Betong/mur

Underbygging av grunnmur rundt rom U04 (bad)

Etablering av grunnmur for underbygging av kjellerrom

Grunnarbeid Underbygging

Støpt nytt isolert gulv i kjeller, fjerning og plassering av løsmasser ved eiendomsgrense

Grunnarbeid for underbygging av kjelleretasjen i hjørnet mot sør/øst

VVS Sanitærinstallasjon

Sanitærinstallasjon knyttet til bruksendring og våtrom i kjeller

Installasjon av vann og avløp i bad og kjellerstue

Fasade Vinduer

🧱 Tre/aluminium med 3-lags glass

Antall: 3

Tre vinduer i kjellerstue (U03)

Nye vinduer i kjellerstue for dagslys og ventilasjon

Dører Innvendig dører

Antall: 4

Dører til gang, bod, kjellerstue og bad i kjelleretasjen

Innvendige dører i underetasjen

Tømrer Innvendige konstruksjoner

🧱 Tre

Bygningsmessige arbeider knyttet til underbygging og innredning av kjellerrom

Tømrerarbeid for underbygging og innredning av kjellerstue og bad

Bad Våtromsinnredning

🧱 Membran, fliser

Membran og flislegging i bad (U04), ikke inkludert i ansvarsområdet for bygningsmessige arbeider

Etablering av bad med membran og flislegging

Gulv Isolert gulv

🧱 Isolasjon og betong

Nytt isolert gulv i kjelleretasjen

Isolert gulv for bedre inneklima og komfort

Betong Støpt gulv

🧱 Isolert betonggulv

Nytt isolert gulv i kjelleretasjen

Støping av nytt isolert gulv i underetasjen

Elektro El-installasjon

El-installasjon i kjellerstue og bad

Elektriske installasjoner for belysning og strøm i underetasjen

Plantegning

Enebolig 60.2 m²

Etasje 0 60.2 m²

Rom Areal Vinduer Dører
Gang U01 4.2 m² 0 1
Bod U02 4.1 m² 0 1
Kjellerstue U03 44.8 m² 3 1
Bad U04 11.1 m² 0 1

Fasader

Enebolig

Sør-Vest
Materiale
Tre
Taktype
Saltak
Vinduer
10
Dører
1
Synlige etasjer
2
Sør-Øst
Materiale
Tre
Taktype
Saltak
Vinduer
6
Dører
1
Synlige etasjer
2
Nord-Vest
Materiale
Tre
Taktype
Saltak
Vinduer
6
Dører
1
Synlige etasjer
2
Nord-Øst
Materiale
Tre
Taktype
Saltak
Vinduer
6
Dører
1
Synlige etasjer
2

Hendelser

21.04.2026 Årstadgeilen 20 Søknad om tillatelse i ett trinn 163/111