FloorPlan
Etasjeplan (plantegning) som viser romfordeling, arealer og funksjoner i et hus.
1 / 1
Extension
Soeknad
Enebolig
Tilbygg bolig på Åsetvegen 15, Åsmarka
📍 Åsetvegen 15 , 2365 ÅSMARKA
Nøkkelinfo
- Sakstype
- Tilbygg
- Bygningstype
- Enebolig
- Bruksareal
- 37 m²
- Boenheter
- 1
- Kommune
- Ringsaker
- Fylke
- Innlandet
- Gnr / Bnr
- 471 / 8
- Saksnummer
- 26/6511
- Fase
- Søknad
Om byggesaken
Ny tilbygg på eksisterende enebolig på Åsetvegen 15 i Åsmarka med et bruttoareal på ca. 37 m². Tilbygget inkluderer blant annet nye rom som soverom og bad, med tilhørende vinduer og dører. Bygget vil ha en etasje og inneholde trapper. Prosjektet omfatter også nødvendige fasadetegninger og situasjonsplan for plassering på tomten. Tilbygget er planlagt i samsvar med gjeldende reguleringsplaner og tekniske krav.
Produkter og materialer
Gulv
Innvendige gulv
Gulvbelegg eller parkett i tilbygget
Vinduer
Fasadevindu
Antall: 2
Vinduer til soverom og stue i tilbygget
Fasade
Kledning
Fasade for tilbygg, krever kledning og overflatebehandling
Trapper
Innvendig trapp
Antall: 1
Trapp i tilbygget enebolig
Elektro
Elektrisk installasjon
Elektriske installasjoner i tilbygget, inkludert belysning og stikkontakter
Dører
Innvendige dører
Antall: 8
Innvendige dører til soverom, bad, gang, kjøkken og stue i tilbygget
Grunnarbeid
Fundamentering og grunnmur
Grunnarbeid for tilbygg, inkludert fundamentering og eventuell grunnmur
Maling
Innvendig og utvendig maling
Maling av innvendige og utvendige flater i tilbygget
Tak
Taktekking
Taktekking for tilbygg, type og materiale ikke spesifisert
VVS
Sanitærinstallasjoner
VVS-installasjoner for bad og kjøkken i tilbygget
Isolasjon
Vegger og tak
Isolasjon for vegger og tak i tilbygget for å oppfylle energikrav
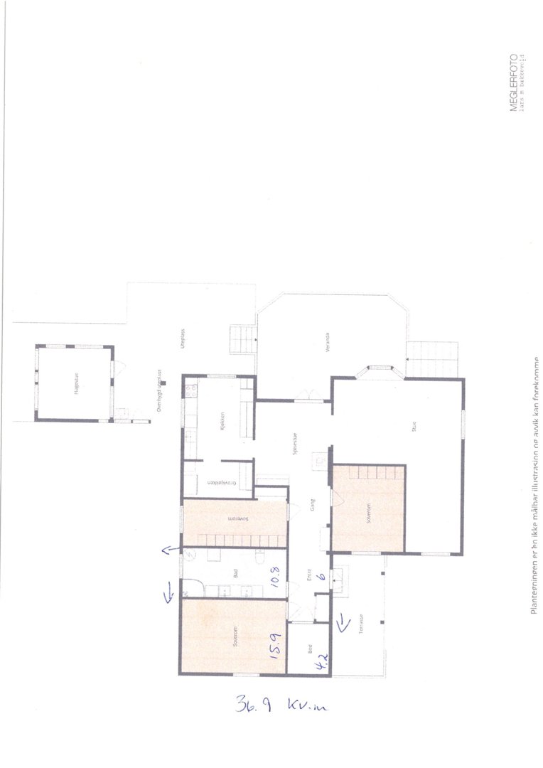
Plantegning
Enebolig 36.9 m²
Etasje 1 36.9 m²
| Rom | Areal | Vinduer | Dører |
|---|---|---|---|
| Soverom 101 | 15.9 m² | 1 | 1 |
| Bad 102 | 4.2 m² | 0 | 1 |
| Soverom 103 | 10.8 m² | 1 | 1 |
| Gang 104 | 0.0 m² | 0 | 2 |
| Entré 105 | 0.0 m² | 0 | 1 |
| Stue 106 | 0.0 m² | 2 | 1 |
| Spisesone 107 | 0.0 m² | 0 | 0 |
| Kjøkken 108 | 0.0 m² | 0 | 1 |
| Gang 109 | 0.0 m² | 0 | 1 |
| Terrasse 110 | 0.0 m² | 0 | 1 |
| Veranda 111 | 0.0 m² | 0 | 1 |
| Uteplass 112 | 0.0 m² | 0 | 1 |
Hendelser
17.04.2026
Supplering av søknad om tilbygg bolig på eiendom gnr 471 bnr 8, Åsetvegen 15, Åsmarka
09.04.2026
Søknad om tillatelse - Tilbygg bolig, Gbnr 471/8, Åsetvegen 15, Åsmarka