Extension UnderBehandling Enebolig

Tilbygg og ny etasje på enebolig i Åslyveien 22, Drammen

📍 Åslyveien 22 , 3023 DRAMMEN

Nøkkelinfo

Sakstype
Tilbygg
Bygningstype
Enebolig
Bruksareal
363 m²
Boenheter
2
Kommune
Drammen
Fylke
Buskerud
Gnr / Bnr
116 / 1340
Saksnummer
25/40813
Fase
Under behandling

Om byggesaken

Ny etasje og tilbygg på eksisterende enebolig i Åslyveien 22, Drammen, med samlet bruksareal på ca. 363 m² inkludert en sekundær boenhet på 59 m² i 2. etasje. Bygget har saltak med tegl taktekking og trekledning på fasadene. Prosjektet inkluderer oppgradering av kjelleradkomst med ny betongtrapp og dør, fasadeendringer, samt etablering av hybel med eget kjøkken i 2. etasje. Totalt elleve soverom planlegges, med moderne og bærekraftige løsninger for ventilasjon og dagslys. Garasje og carport inngår i tomteutnyttelsen, og utearealer er tilrettelagt med takterrasse og uteoppholdsareal. Tiltaket oppfyller krav til sikker byggegrunn, avkjørsel, blågrønn faktor og uteoppholdsareal i henhold til gjeldende planer og forskrifter.

Produkter og materialer

Dører Ytterdører og skyvedør til takterrasse

🧱 Tre og glass

Antall: 12

Inkluderer ny dør til kjeller, skyvedør 3,3x2,2 m til takterrasse, samt dører i fasade og til sekundær boenhet

Ytterdører og terrassedør for adkomst og rømningsvei

Garasjeport Garasjeport til eksisterende garasje

Antall: 1

Garasje på 50 m² med port

Port for biladkomst til garasje

Fasade Trekledning

🧱 Tre

Fasader i tre med samme materialbruk og fargevalg som eksisterende, tilpasset arkitektur

Fasadeendringer og tilbygg med trekledning

Betong Plasstøpte betongkonstruksjoner

🧱 Betong

Betongtrapp til kjeller, fundamenter og bærekonstruksjoner for tilbygg

Betongarbeider for trapp og bærekonstruksjoner

VVS Ventilasjon og sanitærinstallasjoner

Ventilasjon i kjeller, oppgradering av våtrom, nytt kjøkken i sekundær boenhet

VVS-installasjoner for ventilasjon, bad, vaskerom og kjøkken

Vinduer Store fasadevinduer i tre

🧱 Tre med 3-lags energiglass

Antall: 22

Store vinduer i alle etasjer, inkludert store vinduer i kjeller med lysgrav, tilfredsstiller TEK17 krav til dagslys og rømningsvei

Vinduer for alle rom for varig opphold, inkludert kjeller

Trapper Innvendig trapp og betongtrapp til kjeller

🧱 Betong og tre

Antall: 2

Ny betongtrapp til kjeller med tak, samt innvendige trapper mellom etasjer

Trapper for adkomst mellom etasjer og til kjeller

Rekkverk Rekkverk til balkonger og takterrasse

🧱 Tre eller metall

Sikkerhetsrekkverk på balkonger og takterrasse

Rekkverk for sikkerhet og estetikk

Elektro Elektriske installasjoner

Elektrisk anlegg oppgradert i forbindelse med tilbygg og bruksendring

Elektriske installasjoner for belysning, strøm og sikkerhet

Terrasse Takterrasse

🧱 Tre

Antall: 1

Takterrasse på ny etasje med skyvedør 3,3x2,2 m

Utendørs oppholdsareal på tak

Tak Saltak med teglstein

🧱 Teglstein

Antall: 1

Saltak med tegl taktekking, gesimshøyde ca. 6,3-7,5 m, mønehøyde 8,2 m

Nytt tak på påbygg og eksisterende tak opprettholdes

Maling Innvendig og utvendig maling

Maling av fasader og innvendige flater som del av oppgradering

Overflatebehandling for beskyttelse og estetikk

Grunnarbeid Fundamentering og drenering

Fundamentering for tilbygg og trapp, drenering i henhold til krav

Grunnarbeider for stabilitet og fuktsikring

Tømrer Trekonstruksjoner for påbygg og tilbygg

🧱 Tre

Montering av trekonstruksjoner for ny etasje og tilbygg

Tømrerarbeid for konstruksjon og montering

Gulv Innvendige gulvflater

Nye gulv i tilbygg og oppgraderte rom, inkludert vaskerom og teknisk rom

Gulvbelegg og overflater i nye og oppgraderte rom

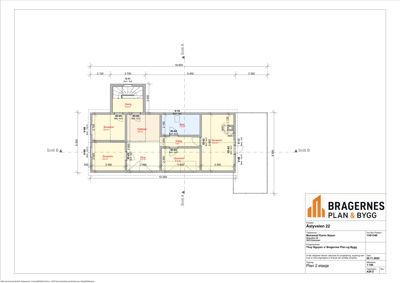
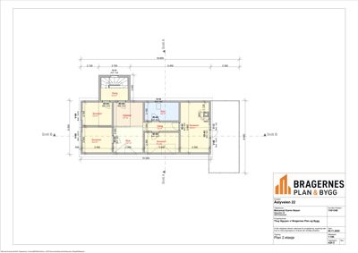
Plantegning

Plan tak etasje 108.4 m²

Etasje 2 108.4 m²

Rom Areal Vinduer Dører
Taketasje 201 108.4 m² 0 0

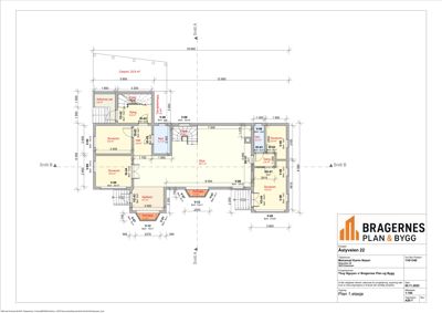
Enebolig 462.6 m²

Etasje 2 108.8 m²

Rom Areal Vinduer Dører
Soverom 201 10.4 m² 1 1
Soverom 202 9.3 m² 1 1
Stue 203 10.7 m² 1 1
Kjøkken 204 9.7 m² 1 1
Gang 205 4.2 m² 0 2
Soverom 206 9.4 m² 1 1
Soverom 207 19.8 m² 1 1
Bad 208 8.6 m² 0 1
Gang 209 6.0 m² 0 1

Etasje 1 226.5 m²

Rom Areal Vinduer Dører
Adkomststue 02 3.9 m² 0 2
Gang 02 5.4 m² 0 3
Soverom 04 9.0 m² 1 1
Soverom 09 10.0 m² 1 1
Kjøkken 03 6.7 m² 1 1
Stue 01 50.7 m² 2 2
Bad 06 4.1 m² 0 1
Hall 03 4.8 m² 0 2
Soverom 04 5.5 m² 1 1
WC 06 2.5 m² 0 1
Gang 03 2.4 m² 0 2
Soverom 04 13.0 m² 1 1
Kamapp 07 1.1 m² 0 0
Kamapp 07 1.1 m² 0 0
spise plass 18.5 18.5 m² 0 1
hall 17.9 17.9 m² 0 1
stue 60.0 60.0 m² 0 1
stue 17.4 17.4 m² 0 1
stue 19.7 19.7 m² 0 1
sove 10.1 10.1 m² 0 1
sove 9.5 9.5 m² 0 1
bad 8.5 8.5 m² 0 1
Stue 101 19.7 m² 2 2
Vaskerom 102 9.5 m² 1 1
Sove 103 9.5 m² 1 1
Sove 104 10.1 m² 1 1
Sove 105 17.4 m² 1 1
Bad 106 8.5 m² 1 2

Etasje 0 127.3 m²

Rom Areal Vinduer Dører
Kjellerstue 001 17.9 m² 0 1
Soverom 002 9.7 m² 1 1
Teknisk rom 003 9.7 m² 0 1
Kjellerstue 004 27.7 m² 0 1
Vaskerom 005 10.2 m² 1 1
Soverom 006 13.2 m² 1 1
Soverom 007 10.0 m² 1 1
Gang 008 3.6 m² 0 1
Trapp 009 3.0 m² 0 0
kjeller 203 20.3 m² 0 1
bod 9.5 9.5 m² 0 1
badstu 4.2 4.2 m² 0 1
bad 15.4 15.4 m² 0 1
kott 9.6 9.6 m² 0 1
mat 2.2 2.2 m² 0 1
wc 1.8 1.8 m² 0 1
trimrom 5.8 5.8 m² 0 1

Fasader

Enebolig

Syd
Materiale
Tre
Taktype
Saltak
Vinduer
4
Dører
1
Balkonger
1
Synlige etasjer
2
Øst
Materiale
Tre
Taktype
Saltak
Høyde
6.3 m
Vinduer
2
Dører
1
Balkonger
1
Synlige etasjer
2
Nord
Materiale
Tre
Taktype
Saltak
Takmat.
Tegl
Høyde
7.5 m
Vinduer
2
Dører
0
Balkonger
1
Synlige etasjer
2
Vest
Materiale
Tre
Taktype
Saltak
Takmat.
Tegl
Vinduer
6
Dører
2
Balkonger
1
Synlige etasjer
2
Sør
Materiale
Tre
Taktype
Saltak
Vinduer
6
Dører
1
Balkonger
1
Synlige etasjer
2

Eksisterende bygg

Sør
Materiale
Tre
Taktype
Saltak
Høyde
7.5 m
Vinduer
4
Dører
1
Synlige etasjer
2

Hendelser

10.04.2026 BYGG-25/02017-9 - Åslyveien 22, tilbakemedling på status i saken
10.04.2026 Åslyveien 22, ber om status i saken
06.03.2026 Åslyveien 22 Supplering av søknad 116/1340
17.02.2026 Åslyveien 22, ønske om utsatt frist innvilges
17.02.2026 Åslyveien 22, ber om utsatt frist
16.01.2026 Åslyveien 22, vi trenger flere opplysninger for å behandle søknaden din
06.01.2026 Åslyveien 22, anmodning om status i saken
25.11.2025 Åslyveien 22, melding om mottatt søknad
24.11.2025 3301-116/1340/0/0 Søknad om tillatelse i ett trinn 116/1340