Extension Ferdigattest Enebolig

Tilbygg og ny garasje på Bergshaven 27 A og B, Lillesand

📍 Bergshaven 27A , 4790 LILLESAND

Nøkkelinfo

Sakstype
Tilbygg
Bygningstype
Enebolig
Bruksareal
96 m²
Boenheter
1
Kommune
Lillesand
Fylke
Agder
Gnr / Bnr
33 / 943
Saksnummer
2022/1592
Fase
Ferdigattest

Om byggesaken

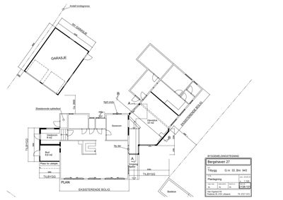
Prosjektet omfatter oppføring av to tilbygg på en eksisterende enebolig på Bergshaven 27 A og B. Det ene tilbygget på 28 m² binder sammen de to separate boligene til en samlet boenhet, mens det andre tilbygget på 18 m² plasseres på vestfasaden og inneholder vaskerom og bod. Eksisterende garasje på 28 m² rives, og det bygges en ny garasje på 49,6 m² med saltak og flatt tak, tilpasset tomtens form og reguleringsbestemmelser. Totalt bebygd areal etter tiltaket blir 95,6 m², og eiendommens utnyttelsesgrad økes til 25,7 %. Bygningene har tre- og saltakskonstruksjoner, og garasjen har trevegger med garasjeport. Tilbygget inkluderer tekniske rom som vaskerom, og det er planlagt nye vinduer og dører i tilbygg og hovedbygg. Prosjektet er planlagt og prosjektert av Olav Eigeland AS, med flere ansvarlige utførende foretak for grunnarbeid, betong, tømrer og rørleggerarbeid.

Produkter og materialer

Maling Innvendig og utvendig maling

Maling av fasader, innvendige vegger og tak i tilbygg og garasje

Overflatebehandling for beskyttelse og estetikk

Fasade Tilbyggsfasader i tre

🧱 Tre

Antall: 2

Tilbygg på 28 m² og 18 m² med gesimshøyde 2,8 m, saltak

Fasadearbeid for to tilbygg som binder sammen eksisterende boliger og vaskerom/bod på vestfasade

VVS Rørleggerarbeid i vaskerom

Rørleggerarbeid utført av EVJEN'S RØRLEGGERSERVICE AS

Installasjon av vann og avløp i vaskerom i tilbygg

Garasjeport Garasjeport i ny garasje

🧱 Tre/standard garasjeport

Antall: 1

Garasje på 49,6 m² med saltak og flatt tak, gesimshøyde 2,3 m, mønehøyde 5,01 m

Ny garasje med plass til to biler, inkludert garasjeport

Terrasse Terrasse ved tilbygg

Oppføring av terrasse som del av tilbyggsprosjektet

Utendørs oppholdsareal knyttet til tilbygg

Vinduer Fasadevindu i tre

🧱 Tre

Antall: 14

Nye vinduer i tilbygg og hovedbygg, inkludert 3 vinduer i stue, 1 i kjøkken, 1 i vaskerom, 1 i soverom, 1 i bad, 1 i gang, 1 i soverom 2. etasje osv.

Nye vinduer i tilbygg og eksisterende bolig for lys og ventilasjon

Tømrer Tømrerarbeid for tilbygg og garasje

🧱 Tre

Tømrerarbeid utført av Olav Eigeland AS

Oppføring av trekonstruksjoner for tilbygg og garasje

Gulv Innvendige gulvflater

Ikke spesifisert, men nødvendig for tilbygg og vaskerom

Gulvbelegg og overflater i tilbygg og vaskerom

Elektro Elektriske installasjoner

Ikke detaljert spesifisert, men nødvendig for nytt tilbygg og garasje

Elektriske installasjoner for belysning, strøm og tekniske anlegg

Dører Ytterdører og innerdører

🧱 Tre

Antall: 15

Dører i tilbygg, vaskerom, bod, inngang og mellom rommene i bolig

Nye dører for adkomst og romavgrensning i tilbygg og bolig

Grunnarbeid Grunnarbeid for tilbygg og garasje

Grunnarbeid utført av STEFFEN FIDJELAND AS

Grunnarbeid for fundamentering av tilbygg og ny garasje

Tak Saltak og flatt tak

🧱 Taktekking ikke spesifisert

Saltak på bolig og garasje, flatt tak på deler av garasje

Taktekking for ny garasje og tilbygg med saltak og flatt tak

Betong Betongarbeid for fundament og dekker

Betongarbeid utført av OMDAL BETONG AS

Betongfundament og dekker for tilbygg og garasje

Plantegning

Enebolig 156.5 m²

Etasje 1 105.0 m²

Rom Areal Vinduer Dører
Stue 101 35.0 m² 3 1
Gang 102 10.0 m² 0 4
Bad 103 10.0 m² 0 1
Vaskerom 104 6.0 m² 0 1
Kjøkken 105 10.0 m² 1 1
Sove 1 106 12.0 m² 1 1
Sove 2 107 12.0 m² 1 1
Sove 3 108 10.0 m² 1 1

Etasje 2 51.5 m²

Rom Areal Vinduer Dører
Sove 1 11 13.5 m² 1 1
Sove 2 12 13.5 m² 1 1
Bad 13 6.5 m² 0 1
Gang 14 10.0 m² 0 2
Toalett 15 1.0 m² 0 1

Fasader

Garasje

Syd-Øst
Materiale
Tre
Taktype
Flatt tak
Vinduer
2
Dører
1
Synlige etasjer
1
Nord-Øst
Materiale
Tre
Taktype
Saltak
Vinduer
1
Dører
0
Synlige etasjer
1
Nord-Vest
Materiale
Tre
Taktype
Flatt tak
Vinduer
0
Dører
0
Synlige etasjer
1
Syd-Vest
Materiale
Tre
Taktype
Saltak
Vinduer
0
Dører
0
Synlige etasjer
1
Nord
Taktype
Saltak
Vinduer
0
Dører
0
Synlige etasjer
1

Hovedbygg

Nord
Materiale
Tre
Taktype
Saltak
Vinduer
6
Dører
0
Synlige etasjer
2
Sør
Materiale
Tre
Taktype
Saltak
Vinduer
5
Dører
0
Synlige etasjer
2

Enebolig

Nord
Taktype
Saltak
Vinduer
4
Dører
1
Synlige etasjer
2
Vest
Taktype
Saltak
Høyde
5.1 m
Mønehøyde
6.0 m
Vinduer
5
Dører
1
Synlige etasjer
2
Øst
Taktype
Saltak
Vinduer
10
Dører
2
Synlige etasjer
2

Hendelser

21.04.2026 Søknad om ferdigattest
27.03.2026 Bergshaven 27A Supplering av søknad 33/943
11.08.2025 Gnr 33 bnr 943 Bergshaven 27 A og B - Vedtak på søknad om igangsettingstillatelse for deler av tiltak
03.07.2025 Søknad om igangsettingstillatelse
18.08.2022 Gnr 33 bnr 943 Bergshaven 27 A og B - Vedtak på søknad om rammetillatelse til oppføring av to tilbygg og riving/oppføring av ny garasje
18.08.2022 Riktige høyder gesims - garasje
16.08.2022 Gnr 33 bnr 943 Bergshaven 27 A og B - Vedtak på søknad om rammetillatelse til oppføring av to tilbygg, riving av eksisterende garasje og oppføring av ny garasje
16.08.2022 Gnr 33 bnr 943 Bergshaven 27 A og B - Vedtak på søknad om dispensasjon fra avsatt arealformål for oppføring av to tilbygg og riving/oppføring av ny garasje
05.07.2022 Foreløpig tilbakemelding og anmodning om noen opplysninger
05.07.2022 Svar på tilbakemelding
25.05.2022 Bergshaven 27A - Søknad om rammetillatelse - 33/943