Extension Soeknad Enebolig

Tilbygg med balkong på enebolig, Bjørndalen 18, Bergen

📍 Bjørndalen 18 , 5009 BERGEN

Nøkkelinfo

Sakstype
Tilbygg
Bygningstype
Enebolig
Bruksareal
0 m²
Boenheter
4
Kommune
Bergen
Fylke
Vestland
Gnr / Bnr
163 / 423
Saksnummer
BYGG-2026/12495
Fase
Søknad

Om byggesaken

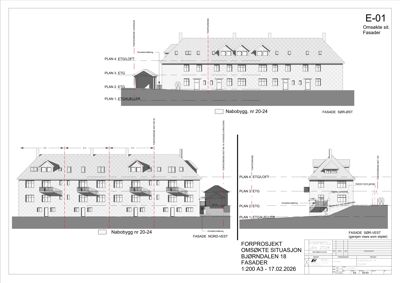
Ny balkong på 1,3 x 2,5 meter med dobbel glassdør som erstatter et eksisterende vindu på sør-øst fasade av en eldre enebolig i Bjørndalen 18. Balkongen har utkraging utover 1 meter og øker bruksarealet med 0,15 m². Bygget er en fire-etasjers boligrekke fra 1920-tallet med saltak, og tiltaket innebærer en fasadeendring som tilpasses byggets opprinnelige arkitektur. Balkongen plasseres 3,7 meter fra nabogrense med nabosamtykke, og tiltaket påvirker ikke boareal, antall boenheter eller tekniske anlegg. Det er ikke behov for dispensasjoner utover nabosamtykke for avstand til nabogrense.

Produkter og materialer

Tak Saltak

Antall: 1

Eksisterende saltak på enebolig

Takform på eksisterende bolig

Grunnarbeid Fundamentering for balkong

Antall: 1

Fundamentering og feste for balkong med utkraging

Grunnarbeid for oppføring av balkong

Pipe Eksisterende pipe

Antall: 1

Eksisterende pipe på enebolig

Pipe i eksisterende bolig

Dører Dobbel glassdør til balkong

🧱 glass med krysspost-inndeling

Antall: 1

Dobbel glassdør som erstatter eksisterende vindu, med krysspost-inndeling som videreføres fra vinduet

Dør ut til balkong som erstatter eksisterende vindu

Vinduer Eksisterende vinduer

Antall: 4

Eksisterende vinduer på sør-øst fasade, 4 stk

Vinduer i eksisterende enebolig som inngår i fasaden

Tømrer Bygging av balkong og montering dør

Tømrerarbeid for balkong og dørmontering

Utførelse av balkong og døråpning i fasade

Fasade Balkong

🧱 tre eller tilsvarende (ikke spesifisert)

Antall: 1

Balkong på 1,3 x 2,5 meter med utkraging utover 1 meter, plassert på sør-øst fasade

Ny balkong med utkraging og tilpasset arkitektur i tråd med eksisterende bygning

Fasader

Enebolig

Sør-Øst
Taktype
Saltak
Vinduer
4
Dører
1
Balkonger
1
Synlige etasjer
2

Nabobygg nr 20-24

Sør-Øst
Materiale
Mur
Taktype
Saltak
Vinduer
18
Dører
4
Synlige etasjer
4
Nord-Vest
Materiale
Mur
Taktype
Saltak
Vinduer
22
Dører
4
Balkonger
4
Synlige etasjer
4
Sør-Vest
Materiale
Mur
Taktype
Valmtak
Vinduer
4
Dører
1
Balkonger
1
Synlige etasjer
3

Hendelser

16.04.2026 Bekreftelse på mottatt søknad
14.04.2026 Bjørndalen 18 Søknad om rammetillatelse 163/423