Extension Ferdigattest Enebolig

Tilbygg over to plan til enebolig i Bloksbergstien 50, Nesbru

📍 Bloksbergstien 48 , 1394 NESBRU

Nøkkelinfo

Sakstype
Tilbygg
Bygningstype
Enebolig
Bruksareal
14 m²
Boenheter
1
Kommune
Asker
Fylke
Akershus
Gnr / Bnr
39 / 61
Saksnummer
22/1853
Fase
Ferdigattest

Om byggesaken

Ny tilbygg over to plan på totalt 14,5 m² BRA til eksisterende enebolig i Bloksbergstien 50, Nesbru. Tilbygget inneholder i 1. etasje vindfang og gjestetoalett, og i 2. etasje et nytt bad med dusj som innlemmer dagens balkong. Bygget er utført i tre med saltak tekket med teglstein, og tilpasset eksisterende hus både i stil og planløsning. Det er ikke foretatt terrengendringer. Tilbygget forbedrer boligstandard og tilrettelegger for livsløpsstandard med nye sanitærrom. Fasader og konstruksjon er godkjent i henhold til TEK17, med unntak av enkelte krav ved døråpninger til eksisterende bygg. Tiltaket er ferdigstilt og det foreligger ferdigattest.

Arbeidsomfang

- Påbygg av tilbygg til eksisterende enebolig (blokkhus) - Installasjon av elektriske varmekabler som varmeforsyning - Utførelse av mindre vesentlige arbeider innen 14 dager etter ferdigattest

Produkter og materialer

Grunnarbeid Fundamentering og grunnmur

🧱 Betong

Fundamentering og grunnmur for tilbygg

Grunnarbeid for nytt tilbygg

Vinduer Fasadevindu

🧱 Tre/Aluminium

Antall: 6

Vinduer i tilbygg, tilpasset eksisterende vindusplassering

Nye fasadevinduer i tilbygg over to plan

Fasade Trepanel

🧱 Tre

Tilbygg i tre som matcher eksisterende fasade

Utvendig kledning i tre som harmonerer med eksisterende enebolig

Ventilasjon Mekanisk ventilasjon

Ventilasjon i bad og toalett i tilbygget

Ventilasjon for sanitærrom i tilbygget

Tak Saltak med teglstein

🧱 Teglstein

Saltak tekket med teglstein som eksisterende bygg

Nytt saltak med teglstein som matcher eksisterende tak

Tømrer Bærende konstruksjoner

🧱 Tre

Bærende trekonstruksjoner for tilbygg over to plan

Tømrerarbeid for rammeverk og konstruksjon

Gulv Vannbåren gulvvarme

Vannbåren gulvvarme installert i tilbygget

Oppvarming av gulv i tilbygget

Bad Sanitærutstyr

Nytt bad med dusj i 2. etasje og gjestetoalett i 1. etasje

Sanitærinstallasjoner for bad og toalett i tilbygget

Dører Ytterdør og innerdører

🧱 Tre

Antall: 3

Ytterdør i vindfang, innerdører til toalett og bad

Dører i tilbygg for adkomst og romavgrensning

Elektro Elektrisk installasjon

Elektrisk anlegg i tilbygget i henhold til TEK17

Elektrisk installasjon for belysning og strøm

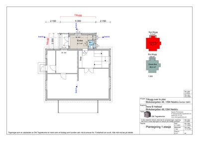
Plantegning

Tilbygg over to plan 205.4 m²

Etasje 1 120.5 m²

Rom Areal Vinduer Dører
Stue 101 42.0 m² 2 1
Soverom 102 12.0 m² 1 1
Vaskerom 103 6.0 m² 0 1
Gang 104 10.0 m² 0 2
Entré 105 6.1 m² 1 1
Wc 106 1.0 m² 0 1
Teknisk rom 107 3.4 m² 0 0
Teknisk rom 108 3.5 m² 0 1
Teknisk rom 109 2.0 m² 0 1

Etasje 2 84.9 m²

Rom Areal Vinduer Dører
Stue 201 0.0 m² 2 2
Soverom 202 0.0 m² 1 1
Soverom 203 0.0 m² 1 1
Bad 204 7.0 m² 0 1
Gang 205 0.0 m² 0 2

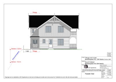
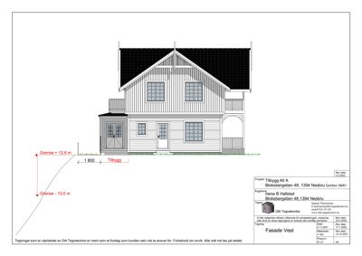
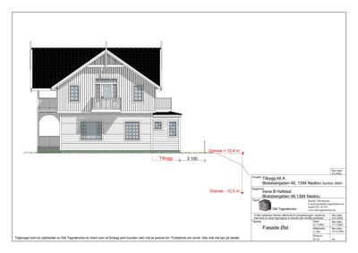
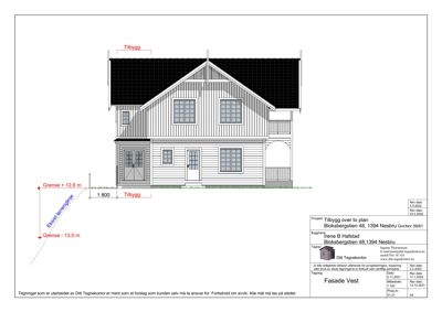
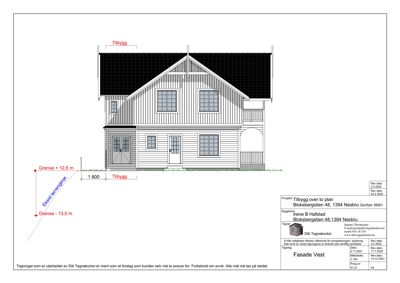
Fasader

Enebolig

Vest
Materiale
Tre
Taktype
Saltak
Takmat.
Tegl
Høyde
4.5 m
Mønehøyde
7.8 m
Vinduer
5
Dører
2
Balkonger
2
Synlige etasjer
2
Øst
Materiale
Tre
Taktype
Saltak
Takmat.
Tegl
Vinduer
6
Dører
1
Balkonger
1
Synlige etasjer
2
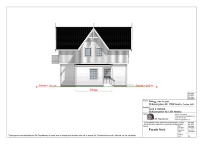
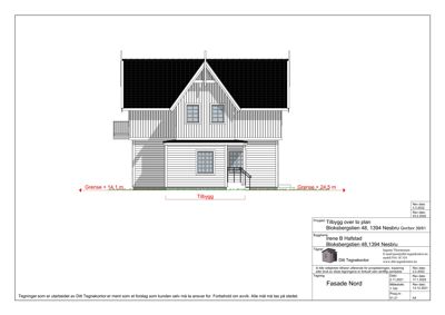
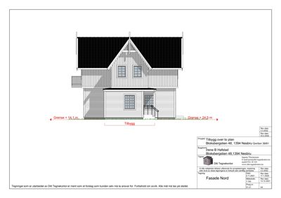
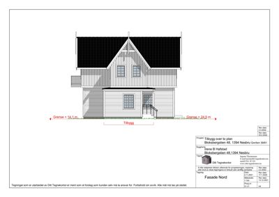
Nord
Materiale
Tre
Taktype
Saltak
Takmat.
Tegl
Høyde
14.1 m
Mønehøyde
24.5 m
Vinduer
4
Dører
1
Balkonger
1
Synlige etasjer
2

Tilbygg over to plan

Øst
Materiale
Tre
Taktype
Saltak
Vinduer
6
Dører
2
Balkonger
1
Synlige etasjer
2

Hendelser

07.04.2026 39/61 Bloksbergstien 50 - Innvending mot gebyr for ferdigattest ferdigattest
25.03.2026 39/61 Bloksbergstien 50 - Ferdigattest - tilbygg bolig ferdigattest
20.03.2026 39/61 Bloksbergstien 48 - Søknad om ferdigattest ferdigattest
10.11.2022 39/61 Informasjon om fravik fra TEK17 - Tilbygg - Enebolig
28.09.2022 39/61 Tillatelse til tiltak i ett trinn - Tilbygg til enebolig byggetillatelse
31.08.2022 39/61 Informasjon om hvilket tiltak som ønskes behandlet - Påbygg - Enebolig
20.06.2022 39/61 Komplett søknad - Påbygg - Enebolig søknad
24.05.2022 39/61 Kvitteringsbrev - Påbygg - Enebolig
23.05.2022 39/61 Informasjon om nabovarsling - Påbygg - Enebolig nabovarsel
23.05.2022 39/61 Informasjon om nabovarsling - Påbygg - Enebolig nabovarsel