Extension Soeknad Enebolig

Tilbygg, fasadeendring og bruksendring på enebolig i Bøneslien 2

📍 Bøneslien 2 , 5155 BØNES

Nøkkelinfo

Sakstype
Tilbygg
Bygningstype
Enebolig
Bruksareal
57 m²
Boenheter
2
Kommune
Bergen
Fylke
Vestland
Gnr / Bnr
20 / 738
Saksnummer
BYGG-2026/00825
Fase
Søknad

Om byggesaken

Ny tilbygg på 57 m² med flatt tak på nordside av eksisterende horisontaldelt tomannsbolig i Bøneslien 2. Tilbygget tilfører begge boenheter ca. 29 m² ekstra areal, med nye rom som inngangsparti, bad, vaskerom, soverom, stue og gjesterom. Eksisterende loft på 33 m² endres fra tilleggsdel til hoveddel og skal brukes som loftstue/lekeareal, med etterisolering og nye takvinduer for økt dagslys og bedre energieffektivitet. Fasadeendringer inkluderer forstørrede vinduer, glassrekkverk og modernisering av byggets uttrykk med mørk trekledning og store vindusflater. Bygget har saltak, tre etasjer og ligger på en tomt på 985,6 m² med eksisterende parkeringsplasser. Tiltaket innebærer også radonmembran, forbedret isolasjon og ventilasjon.

Produkter og materialer

Fasade Glassrekkverk

🧱 Glass og aluminium

Erstatning av eksisterende rekkverk med glassrekkverk for bedre utsikt og moderne uttrykk

Nye glassrekkverk på balkonger og uteområder

Grunnarbeid Fundamentering og drenering

Undersprenging under tilbygg, overvann ledes på egen grunn

Grunnarbeid for tilbygg med radonmembran og drenering

Gulv Innvendige gulv

Nye gulv i tilbygget og oppgraderte gulv i loftstue

Tak Flatt tak på tilbygg

🧱 Isolert tak med U-verdi ≤ 0,13 W/(m2K)

Antall: 57

Tilbygg med flatt tak, etterisolert og oppgradert tak på loft

Isolert flatt tak på tilbygg og etterisolering av eksisterende saltak

VVS Ventilasjon og radonmembran

Tilstrekkelig ventilasjon, radonmembran under tilbygg

Ventilasjonsanlegg og radonmembran for helse og komfort

Isolasjon Yttervegger, tak og gulv

U-verdi yttervegg ≤ 0,18, tak ≤ 0,13, gulv ≤ 0,10 W/(m2K)

Tilleggsisolering av yttervegger, tak og gulv for bedre energieffektivitet

Vinduer Fasadevindu og takvindu

🧱 3-lags energiglass

Forstørrede vindusåpninger i høyden, nye takvinduer i loftsetasje for økt dagslys

Nye og større vinduer i fasade og takvinduer i loft for bedre lysinnslipp

Tømrer Tilbygg og innvendige rom

🧱 Tre

Antall: 57

Oppføring av tilbygg på 57 m² med nye rom som bad, vaskerom, soverom, stue og gjesterom

Bygging av tilbygg og innvendige konstruksjoner

Elektro Belysning og elektrisk anlegg

Elektrisk installasjon i tilbygg og loftstue

Dører Ytterdører og innerdører

Nye dører i tilbygg og oppgraderinger i eksisterende bygg

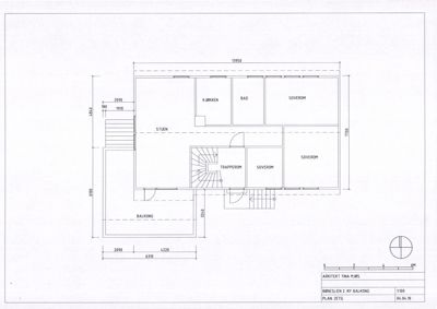
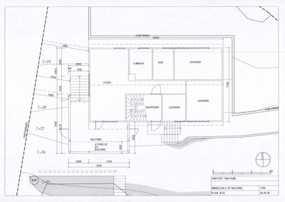
Plantegning

Enebolig 67.5 m²

Etasje 0 0.0 m²

Rom Areal Vinduer Dører
Kjeller KJELLER 0.0 m² 0 0
Blindkjeller BLINDKJELLER 0.0 m² 0 0
Bod 1 BOD 1 11.0 m² 0 1
Bod 2 BOD 2 11.0 m² 0 1

Etasje 2 67.5 m²

Rom Areal Vinduer Dører
Stuen 201 22.0 m² 1 1
Kjøkken 202 10.0 m² 1 1
Bad 203 6.0 m² 0 1
Soverom 204 14.0 m² 1 1
Soverom 205 14.0 m² 1 1
Soverom 206 11.5 m² 1 1
Trapperom 207 4.0 m² 0 0

Etasje 1 0.0 m²

Rom Areal Vinduer Dører
STUEN 101 0.0 m² 0 0
KJØKKEN 102 0.0 m² 0 0
BAD 103 0.0 m² 0 0
SOVEROM 104 0.0 m² 0 0
SOVEROM 105 0.0 m² 0 0
SOVEROM 106 0.0 m² 0 0
TRAPPEROM 107 0.0 m² 0 0

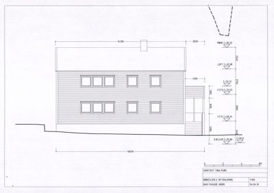
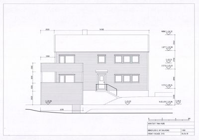
Fasader

Enebolig

Ukjent
Taktype
Saltak
Høyde
6.3 m
Mønehøyde
8.3 m
Vinduer
1
Dører
1
Balkonger
2
Synlige etasjer
3
Nord
Materiale
Tre
Taktype
Saltak
Høyde
6.5 m
Mønehøyde
8.2 m
Vinduer
10
Dører
1
Balkonger
1
Synlige etasjer
2
Sør
Materiale
Tre
Taktype
Saltak
Høyde
6.5 m
Mønehøyde
8.2 m
Vinduer
2
Dører
1
Synlige etasjer
2
Vest
Materiale
Tre
Taktype
Saltak
Høyde
6.5 m
Mønehøyde
8.2 m
Vinduer
4
Dører
1
Synlige etasjer
2
Øst
Materiale
Tre
Taktype
Saltak
Høyde
6.5 m
Mønehøyde
8.2 m
Vinduer
4
Dører
1
Balkonger
1
Synlige etasjer
2

Hendelser

05.02.2026 Bekreftelse på mottatt søknad
04.02.2026 Bøneslien 2 Søknad om rammetillatelse 20/738