Extension Ferdigattest Enebolig

Tilbygg inntil 50 m² på enebolig i Borgeveien 37A, Fredrikstad

📍 Borgeveien 37A , 1654 SELLEBAKK

Nøkkelinfo

Sakstype
Tilbygg
Bygningstype
Enebolig
Bruksareal
40 m²
Boenheter
1
Kommune
Fredrikstad
Fylke
Østfold
Gnr / Bnr
610 / 399
Saksnummer
2023/6261
Fase
Ferdigattest

Om byggesaken

Ny tilbygg på ca. 28-40 m² i én etasje med ringmurfundament, plassert ved gavlvegg mot sør på en eksisterende to-etasjes saltakshus i tre. Tilbygget er oppført i tre bindingsverk med trebjelkelag og støpte punktfundamenter ca. 1 meter under terreng. Det bygges balkong over hele tilbyggets areal. Bygget har flere rom inkludert sommerstue, kjøkken og stue, og er tilpasset eksisterende bolig med saltak og teglstein. Geoteknisk vurdering konkluderer med at grunnforholdene er tilfredsstillende for tiltaket, uten fare for kvikkleire eller områdeskred. Bygget er fundamentert på eksisterende masser med minimal belastning på grunnen.

Produkter og materialer

Dører Ytterdør i tre

🧱 Tre

Antall: 1

Ytterdør til tilbygget, i tre

Ny ytterdør i tilbygget

VVS Vann og avløp

Tilknytning til offentlig vann- og avløpsnett

VVS-installasjoner for tilbygget med tilknytning til offentlig nett

Tak Saltak med teglstein

🧱 Teglstein

Saltak med teglstein som eksisterende bolig

Taktekking med teglstein på saltak, tilpasset eksisterende bygg

Betong Ringmur og punktfundamenter

🧱 Betong

Ringmurfundament og støpte punktfundamenter ca. 1 meter under terreng

Fundamentering av tilbygget med ringmur og punktfundamenter i betong

Terrasse Balkong over tilbygget

🧱 Tre

Antall: 1

Balkong over hele tilbyggets areal

Balkong i tre over tilbygget

Tømrer Bindingsverk og trebjelkelag

🧱 Tre

Tilbygg oppført i tre bindingsverk med trebjelkelag

Bærekonstruksjon i tre for tilbygget

Gulv Innvendig gulv

Innvendige gulv i tilbygget, materialvalg ikke spesifisert

Fasade Trepanelkledning

🧱 Tre

Tilbygg i tre med trepanelkledning, tilpasset eksisterende fasade i tre

Utvendig kledning i tre som matcher eksisterende enebolig

Vinduer Fasadevindu i tre

🧱 Tre

Antall: 1

Vinduer i tilbygget, antall og plassering iht. tegninger

Nye fasadevindu i tilbygget, i tre, tilpasset eksisterende stil

Elektro Elektrisk anlegg

Elektrisk installasjon i tilbygget

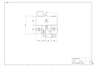
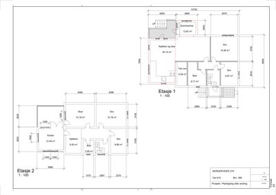
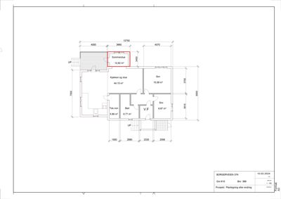
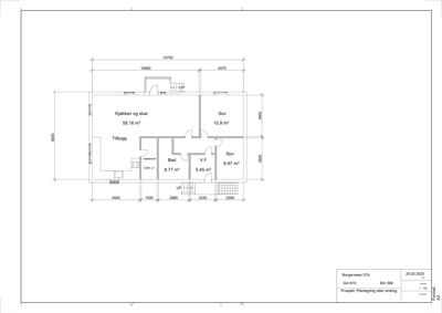
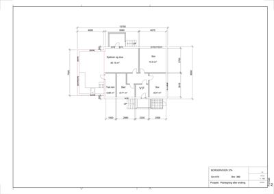
Plantegning

Enebolig 197.4 m²

Etasje 1 120.5 m²

Rom Areal Vinduer Dører
Kjøkken og stue 101 44.1 m² 2 2
Sov 102 15.1 m² 1 1
Sov 103 10.0 m² 1 1
Tek.rom 104 5.9 m² 0 1
Bad 105 8.8 m² 0 1
V.F 106 0.0 m² 0 0
Sommerstue 107 12.6 m² 1 1
Stue S9 34.1 m² 2 1
Kjøkken S10 8.2 m² 1 1
Gang S11 7.2 m² 0 4
Bad S12 2.7 m² 0 1
Soverom S13 10.0 m² 1 1
Vaskerom V.F 0.0 m² 0 1

Etasje 2 76.9 m²

Rom Areal Vinduer Dører
Stue 201 15.2 m² 1 1
Sov 202 15.8 m² 1 1
Kontor 203 12.4 m² 2 1
Kjøkken 204 8.9 m² 0 1
Bod 205 3.1 m² 1 1
Sov 206 8.9 m² 1 1

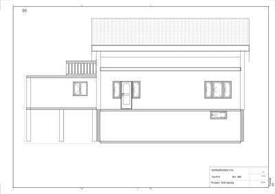
Fasader

Enebolig

Nord
Materiale
Tre
Taktype
Saltak
Takmat.
Tegl
Høyde
3.5 m
Vinduer
5
Dører
1
Balkonger
1
Synlige etasjer
2
Sør
Materiale
Tre
Taktype
Saltak
Takmat.
Tegl
Høyde
2.4 m
Vinduer
4
Dører
1
Balkonger
1
Synlige etasjer
2
Vest
Materiale
Tre
Taktype
Saltak
Takmat.
Tegl
Vinduer
3
Dører
1
Balkonger
1
Synlige etasjer
2
Øst
Materiale
Tre
Taktype
Saltak
Takmat.
Tegl
Vinduer
3
Dører
1
Balkonger
1
Synlige etasjer
2

Hendelser

20.04.2026 Ber om mer dokumentasjon - Borgeveien 37A - tilbygg
20.04.2026 Borgeveien 37A - Angående ferdigattest
06.02.2026 Purring på svar - Borgeveien 37A
03.09.2025 Oversendelse av nabovarsel og nye tegninger - Borgeveien 37A
21.03.2024 Borgeveien 37A - angående ferdigattest
20.02.2024 Tilleggsopplysninger - ferdigattest
14.02.2024 Foreløpig svar - Tilbygg til bolig - Ferdigattest - Borgeveien 37A - Eiendom 610/399
13.02.2024 Søknad om ferdigattest - Borgeveien 37A - Eiendom 610/399 - Tilbygg til bolig
24.04.2023 Sak til matrikkelregistrering
21.04.2023 Tillatelse - Tilbygg inntil 50 m² - Borgeveien 37A - Eiendom 610/399
20.04.2023 Ny løsning
31.03.2023 Ny løsning - Borgeveien 37A
31.03.2023 Bekreftelse på mottatt søknad - Søknad uten ansvarsrett - Tilbygg inntil 50 m² - Borgeveien 37A - Eiendom 610/399
31.03.2023 Sak til uttalelse
28.02.2023 Søknad uten ansvarsrett - Borgeveien 37A - Eiendom 610/399 - Tilbygg inntil 50 m²