Extension Rammetillatelse Enebolig

Tilbygg, riving av garasje og fasadeendring på Bøskredvegen 11

📍 Bøskredvegen 11 , 6884 ØVRE ÅRDAL

Nøkkelinfo

Sakstype
Tilbygg
Bygningstype
Enebolig
Bruksareal
37 m²
Boenheter
1
Kommune
Årdal
Fylke
Vestland
Gnr / Bnr
17 / 240
Saksnummer
2025/193
Fase
Rammetillatelse

Om byggesaken

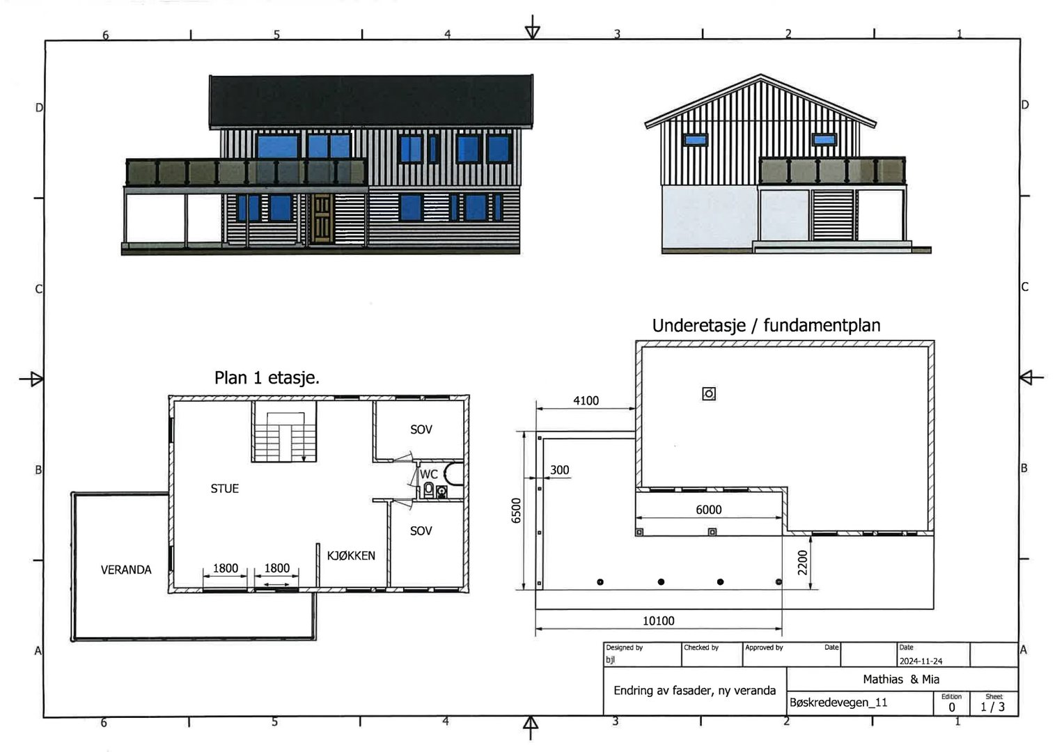
Tiltaket omfatter riving av eksisterende garasje, innbygging av eksisterende altan, oppføring av ny terrasse mot vest og sør, riving av pipe, rehabilitering av eneboligen og drenering rundt bygningen. Bygningen får økt bruksareal med et tilbygg på ca. 37 m², og flere vinduer og dører er skiftet ut. Tomten ligger innenfor reguleringsplan Trondteigen, og tiltaket har fått dispensasjon for overskridelse av maksimal utnyttingsgrad (BYA 15 % til 21,99 %). Tiltaket inkluderer også innvendige endringer og oppgradering til dagens boligstandard. Det er etablert nye parkeringsplasser etter riving av garasje. Tiltaket er godkjent med ansvarlig søker LA-BIM AS og flere utførende entreprenører.

Produkter og materialer

Elektro Oppgradering elektro

Oppgradering i forbindelse med rehabilitering (antatt)

Elektriske installasjoner oppgraderes i forbindelse med rehabilitering

Maling Innvendig og utvendig maling

Maling av fasade og innvendige flater (antatt)

Overflatebehandling av fasade og innvendige vegger

Parkering Parkeringsplass

Antall: 1

Etablering av parkeringsplasser på eiendommen etter riving av garasje

Opparbeidelse av parkeringsareal på tomten

Tømrer Tilbygg og rehabilitering

Tilbygg på ca. 37 m², innbygging av altan, terrasseoppføring, fasadeendring

Tømrerarbeid for tilbygg, fasadeendring og terrasse

Gulv Innvendige overflater

Oppgradering av gulv i forbindelse med rehabilitering (antatt)

Nye gulvflater i rehabiliterte rom

Dører Utskifting av dører

De fleste dører er skiftet ut i forbindelse med rehabilitering

Nye dører for bedre isolasjon og standard

VVS Våtrom og avløp

Etablering av nytt våtrom med flytting av avløp

Oppgradering av våtrom og flytting av avløp i forbindelse med rehabilitering

Grunnarbeid Drenering

Antall: 1

Drenering rundt grunnmur

Drenering for å sikre grunnmur og byggegrunn

Vinduer Utskifting av vinduer

De fleste vinduer er skiftet ut i forbindelse med rehabilitering

Nye vinduer for bedre isolasjon og standard

Fasade Altan og terrasse

Antall: 2

Innbygging av eksisterende altan mot vest, oppføring av ny terrasse mot vest og sør

Bygging av ny terrasse og innbygging av eksisterende altan som del av fasadeendring

Riving Garasje og pipe

Antall: 2

Riving av eksisterende garasje og pipe

Fjerning av garasje og pipe som del av rehabilitering og tilbygg

Hendelser

10.04.2026 Innkalling til møte - gebyr for ulovlege tiltak
27.03.2026 Søknad om reduksjon på faktura Bøskredvegen 11
04.02.2026 Delegert vedtak 26/004 - Løyve til å bygge inn eksisterande altan, føre opp ny terrasse, rive pipe, rehabilitere bustad og drenere på gnr 17 bnr 240, Bøskredvegen 11, 6884 Øvre Årdal
29.12.2025 Vedlegg til søknad - oppdaterte tegninger
03.11.2025 Vedtaksbrev - Søknad om dispensasjon på gnr 17 bnr 240 - Bøskredvegen 11, 6884 Øvre Årdal
30.09.2025 Søknad om dispensasjon på gnr 17 bnr 240 - Bøskredvegen 11, 6884 Øvre Årdal
24.09.2025 Søknad om tillatelse til tiltak - Endring av bygg - utvendig - Fasade
24.09.2025 Søknad om dispensasjon frå reguleringsplan Trondteigen
07.07.2025 Mangelbrev - Søknad om dispensasjon på gnr 17 bnr 240, Bøskredvegen 11
16.06.2025 Søknad om tillatelse til tiltak - Rive garasje, fasadeendring, påbygg
16.06.2025 Søknad om dispensasjon frå reguleringsplan Trondteigen
08.04.2025 Søknad endring av bøskredvegen
08.04.2025 Svar på søknad om utsetting av frist for dispensasjonssøknad og byggjeløyve
28.03.2025 Søknadspliktige tiltak på eigedomen
22.01.2025 Endring av fasade - ny veranda
20.01.2025 Endring av fasade - ny veranda