Extension Soeknad Enebolig

Tilbygg, fasadeendring og bruksendring på Breistølen 27A, Bergen

📍 Breistølen 27A , 5034 BERGEN

Nøkkelinfo

Sakstype
Tilbygg
Bygningstype
Enebolig
Bruksareal
360 m²
Boenheter
1
Kommune
Bergen
Fylke
Vestland
Gnr / Bnr
167 / 136
Saksnummer
BYGG-2026/12600
Fase
Søknad

Om byggesaken

Enebolig på Breistølen 27A i Bergen gjennomgår en omfattende oppgradering som inkluderer oppføring av to tilbygg med samlet areal på ca. 22,3 m², fasadeendringer med nye vinduer, dører og takvinduer, samt bruksendring av bodareal til inngangshall. Bygget får nye bærekonstruksjoner og støttemurer mot terreng. Totalt areal etter tiltaket er ca. 360 m² BRA fordelt på tre etasjer, med saltak og trekledning. Prosjektet omfatter også opparbeidelse av hage og forbedring av lysforhold og ventilasjon i boligen.

Produkter og materialer

Fasade Vinduer

🧱 tre/aluminium

Antall: 14

Nye vinduer for forbedret lysforhold og naturlig ventilasjon, inkludert takvinduer

Nye fasadevinduer og takvinduer for bedre lys og ventilasjon

Tak Takvinduer

Antall: 8

Nye takvinduer i saltak for økt dagslys

Takvinduer for bedre lysinnslipp

Trapper Innvendig trapp

Antall: 1

Ny trapp som forbinder to etasjer internt i boligen

Innvendig trapp for intern forbindelse mellom etasjer

Mur Forstøtningsmur

🧱 betong

Nye støttemurer mot terreng

Oppføring av støttemurer i betong mot terreng

Tømrer Tilbygg

🧱 tre

To tilbygg med samlet areal ca. 22,3 m², inkludert ny inngang og intern trapp

Oppføring av to tilbygg for ny inngang og intern forbindelse mellom etasjer

Fasade Dører

🧱 tre/glass

Antall: 3

Nye foldedører og ytterdører i fasaden for ny inngangssituasjon

Nye ytterdører og foldedører i fasaden

Konstruksjon Bærekonstruksjon

Endringer i bærekonstruksjon som følge av ny planløsning

Endringer i bærekonstruksjon for tilpasning til ny planløsning

Grunnarbeid Graving og massehåndtering

Graving og håndtering av stedlige masser med hensyn til mulig forurenset grunn

Grunnarbeid med massehåndtering i byjordområde med mulig forurensning

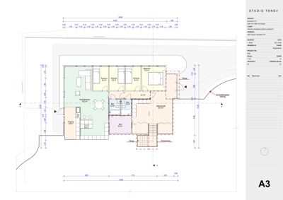
Plantegning

Enebolig 226.9 m²

Etasje 1 187.1 m²

Rom Areal Vinduer Dører
Inngang 101 9.8 m² 0 1
Stue/Spisestue 102 50.3 m² 1 1
Soverom 103 8.2 m² 1 1
Soverom 104 8.2 m² 1 1
Soverom 105 8.2 m² 1 1
Gjesterom 106 12.4 m² 1 1
Bad 107 3.8 m² 0 1
Bad 108 3.5 m² 0 1
Bod 109 9.0 m² 0 1
Adkomst hall 110 44.4 m² 0 2
Teknisk rom 111 6.7 m² 0 1
Soverom 4 112 10.5 m² 1 1
Soverom 5 113 9.5 m² 1 1
Soverom 6 114 8.5 m² 1 1
Soverom 7 115 7.5 m² 1 1
Soverom 8 116 6.5 m² 1 1
Soverom 9 117 5.5 m² 1 1
Soverom 10 118 4.5 m² 1 1
Soverom 11 119 3.5 m² 1 1
Soverom 12 120 2.5 m² 1 1
Soverom 13 121 1.5 m² 1 1
Soverom 14 122 0.5 m² 1 1

Etasje 2 31.3 m²

Rom Areal Vinduer Dører
Stue/Spisestue 201 76.1 m² 0 1
Soverom 202 8.2 m² 1 1
Soverom 203 8.2 m² 1 1
Soverom 204 8.2 m² 1 1
Soverom 205 24.9 m² 1 1
Bad 206 4.2 m² 0 1
Bad 207 8.8 m² 0 1
Matbod 208 5.5 m² 0 1
Walking closet 209 10.6 m² 0 1
Trapperom 210 11.3 m² 0 1
Soverom 3 211 11.0 m² 1 1
Soverom 4 212 10.5 m² 1 1
Soverom 5 213 9.5 m² 1 1
Soverom 6 214 8.5 m² 1 1
Soverom 7 215 7.5 m² 1 1
Soverom 8 216 6.5 m² 1 1
Soverom 9 217 5.5 m² 1 1
Soverom 10 218 4.5 m² 1 1
Soverom 11 219 3.5 m² 1 1
Soverom 12 220 2.5 m² 1 1
Soverom 13 221 1.5 m² 1 1
Soverom 14 222 0.5 m² 1 1

Etasje 3 8.5 m²

Rom Areal Vinduer Dører
Loft 301 8.5 m² 0 0

Fasader

Enebolig

Vest
Materiale
Tre
Taktype
Saltak
Høyde
6.5 m
Mønehøyde
8.2 m
Vinduer
5
Dører
1
Balkonger
1
Synlige etasjer
2
Øst
Materiale
Tre
Taktype
Saltak
Høyde
6.5 m
Mønehøyde
8.2 m
Vinduer
4
Dører
1
Synlige etasjer
2

Hendelser

20.04.2026 Bekreftelse på mottatt søknad
16.04.2026 Breistølen 27A Søknad om rammetillatelse 167/136