Extension Ferdigattest Enebolig

Tilbygg og ombygging av enebolig i Bruvollveien 16, Bleik

📍 Bruvollveien 16 , 8481 BLEIK

Nøkkelinfo

Sakstype
Tilbygg
Bygningstype
Enebolig
Bruksareal
352 m²
Boenheter
1
Kommune
Andøy
Fylke
Nordland - Nordlánnda
Gnr / Bnr
39 / 238
Saksnummer
2023/2342
Fase
Ferdigattest

Om byggesaken

Ny tilbygg og ombygging av eksisterende enebolig på Bruvollveien 16, Bleik, med totalt 351,5 m² BRA fordelt på tre etasjer. Prosjektet inkluderer utvidelse av garasje fra 27 m² til 35,5 m², innbygging av veranda og vindfang, samt oppgradering av boligrom som stue, kjøkken, bad, vaskerom, soverom og kjellerstue. Bygget har trekledning og saltak, med flere nye vinduer og dører i tre etasjer, inkludert pipe og garasjeport. Det er tre trapper i bygget, og tiltaket omfatter også fuktsikring av våtrom med uavhengig kontroll. Prosjektet er gjennomført med ansvarlige foretak for prosjektering, utførelse og kontroll, og det er søkt om ferdigattest for fullført tiltak.

Produkter og materialer

Gulv Innvendige gulv

Gulv i boligrom, vaskerom og kjellerstue

Gulvbelegg og overflater i bolig og tilbygg

Tømrer Bygningsmessige arbeider

🧱 Tre

Bygningsmessige arbeider for tilbygg, ombygging og garasje

Tømrerarbeid for konstruksjon, kledning og innredning

Bad Våtromsbelegg

Fuktsikring av våtrom med uavhengig kontroll

Våtromsbelegg og fuktsikring i bad og vaskerom

Garasjeport Garasjeport

Antall: 1

Garasjeport i tilbygg med saltak

Garasjeport til utvidet garasje på 35,5 m²

Betong Grunnmur og fundament

🧱 Betong

Grunnarbeid og fundament for tilbygg og garasje

Betongfundament og grunnmur for nybygg og tilbygg

Tak Saltak

🧱 Tre og taktekking

Saltak med pipe på bolig og tilbygg

Taktekking og konstruksjon for saltak

Dører Ytterdører og innerdører

🧱 Tre

Antall: 20

Ytterdører og innerdører i tre, inkludert garasjeport og vindfangsdør

Dører til bolig og garasje, inkludert vindfang og innvendige dører

Fasade Trekledning

🧱 Tre

Fasade i tre med saltak, inkludert nye vinduer og dører

Trekledning for fasader på tilbygg og ombygging, saltak med pipe

VVS Sanitærinstallasjoner

Sanitærinstallasjoner i bad, vaskerom og våtrom

VVS-installasjoner for våtrom og sanitær

Elektro Elektriske installasjoner

Elektriske installasjoner i bolig og tilbygg

El-installasjoner for belysning, strøm og varme

Trapper Innvendige trapper

Antall: 3

Tre trapper i bolig, inkludert endringer i trappeløp

Innvendige trapper mellom etasjer

Isolasjon Etterisolasjon

Etterisolasjon lagt til i vegger og tak

Isolasjon for energieffektivitet i tilbygg og ombygging

Vinduer Fasadevindu

🧱 Tre

Antall: 21

Vinduer i fasader nord (5), vest (4), sør (4), øst (4) og i etasjer (totalt 21 vinduer)

Nye og endrede vinduer i tilbygg og ombygging

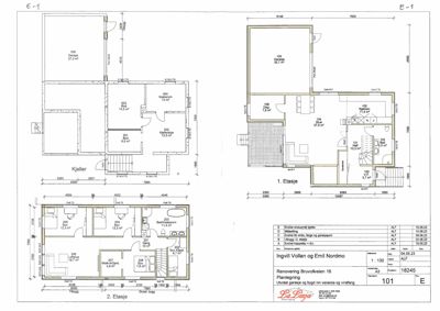
Plantegning

Enebolig 351.5 m²

Etasje 0 100.4 m²

Rom Areal Vinduer Dører
Bod 001 7.7 m² 0 1
Kjellerstue 002 15.4 m² 2 1
Bod 003 18.3 m² 0 1
Vaskerom 004 11.2 m² 1 1
Garage 005 27.0 m² 0 1

Etasje 1 148.5 m²

Rom Areal Vinduer Dører
V.F. 100 5.7 m² 0 1
Hall 101 10.3 m² 0 2
Bad 102 5.5 m² 0 1
Stue 104 43.0 m² 2 1
Kjøkken 105 13.0 m² 1 1
Disp. 106 8.7 m² 1 1
Garasje 100 35.5 m² 1 1

Etasje 2 102.6 m²

Rom Areal Vinduer Dører
Gang 201 10.0 m² 0 4
Sov./Gjest. 202 6.7 m² 1 1
Bad/Vaskerom 203 12.8 m² 1 1
Sov. 204 13.8 m² 1 1
Sov. 205 15.6 m² 1 1
Lofstue 206 21.8 m² 1 0
Walk-InGard. 207 4.9 m² 0 1
Sov. 208 7.6 m² 1 1

Fasader

Enebolig

Nord
Materiale
Tre
Taktype
Saltak
Vinduer
5
Dører
1
Balkonger
1
Synlige etasjer
2
Vest
Materiale
Tre
Taktype
Saltak
Vinduer
4
Dører
1
Synlige etasjer
2
Sør
Materiale
Tre
Taktype
Saltak
Vinduer
4
Dører
1
Synlige etasjer
2
Øst
Materiale
Tre
Taktype
Saltak
Vinduer
4
Dører
1
Synlige etasjer
2

Hendelser

20.04.2026 Søknad ferdigattest - purring
19.03.2026 Melding om mottatt søknad
17.02.2026 Søknad om ferdigattest
10.10.2023 Behov for tilleggsdokumentasjon - Gnr 39 bnr 238 - Bruvollveien 16 - Søknad om igangsettingstillatelse
28.09.2023 Melding om mottatt søknad - Gnr 39 bnr 238 - Bruvollveien 16
25.09.2023 Søknad om igangsettingstillatelse
22.09.2023 Rammetillatelse - gnr 39 bnr 238 - Bruvollveien 16 - Tilbygg og ombygging bolig
21.09.2023 Foreløpig svar - Purring på byggesøknad ang. Bruvollveien 16, Bleik
21.09.2023 Varsel om forlenget saksbehandlingstid - Gnr 39 bnr 238 - Bruvollveien 16
21.09.2023 Purring på byggesøknad ang. Bruvollveien 16, Bleik
13.07.2023 Søknad om rammetillatelse