Extension Ferdigattest Enebolig

Tilbygg og bruksendring av bolig med garasje i Busebakken 7, Hyggen

📍 Busebakken 7 , 3442 HYGGEN

Nøkkelinfo

Sakstype
Tilbygg
Bygningstype
Enebolig
Bruksareal
218 m²
Boenheter
1
Kommune
Asker
Fylke
Akershus
Gnr / Bnr
261 / 70
Saksnummer
20/2778
Fase
Ferdigattest

Om byggesaken

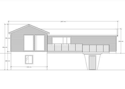
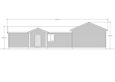
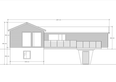
Ny bolig med tilbygg og bruksendring av eksisterende fritidsbolig til bolig på eiendommen Busebakken 7 i Hyggen. Tilbygget er på 77 m² BYA fordelt på to plan, hvor underetasjen er delvis nedgravd i terreng. Det oppføres også en frittliggende garasje på 49 m² med flatt tak og betongmateriale. Eiendommen er på 940 m² med en samlet utnyttelsesgrad på 23 %. Eksisterende bygg får ny ytterkledning, og tilbygget bygges i henhold til dagens tekniske krav. Det er etablert privat vann- og avløpsanlegg med godkjent utslippstillatelse. Det foreligger tinglyst veirett for adkomst over naboeiendom. Tiltaket er ferdigbehandlet med tillatelse gitt, men ferdigattest er ennå ikke utstedt.

Arbeidsomfang

- Tilbygg: Nytt rom eller utvidelse av eksisterende boligstruktur (detaljert areal og plassering ikke spesifisert i dokumentet). - Bruksendring: Endring av funksjon eller innredning innenfor boligen. - Avløpsanlegg: Oppføring av nytt avløpsanlegg tilknyttet boligen.

Produkter og materialer

Tak Flatt tak

🧱 Betong

Antall: 1

Flatt tak på garasje

Taktekking for garasje

Tømrer Bygningsmessige arbeider

Utførelse av tilbygg og ombygging, samt garasjeoppføring

Tømrerarbeid for tilbygg, ombygging og garasje

Tak Valmtak

🧱 Ikke spesifisert

Valmtak på enebolig, saltak på hovedbygg

Taktekking for boligbygg

Betong Kjellervegger

🧱 Betong

Delvis nedgravd underetasje i tilbygg

Betongvegger i kjeller under tilbygg

Dører Ytterdører

🧱 Tre

Antall: 3

Ytterdører i bolig og tilbygg

Ytterdører for bolig

Elektro Elektrisk opplegg

Nytt sikringsskap og inntakskabel som tilfredsstiller nye krav

Elektrisk anlegg for bolig

Vinduer Isolerglassvinduer

🧱 Isolerglass

Antall: 5

Vinduer med isolerglass i eksisterende bygg og tilbygg

Vinduer for bolig

VVS Avløpsanlegg

Antall: 1

Privat avløpsanlegg med godkjent utslippstillatelse datert 6.3.2019

Avløpsanlegg for bolig

Garasjeport Garasjeport

Antall: 1

Garasjeport på frittliggende garasje

Garasjeport for ny garasje

Fasade Ytterkledning

🧱 Tre

Ny utlektet ytterkledning i samme stil som tilbygget

Ytterkledning for eksisterende bygg og tilbygg

Trapper Innvendig trapp

Antall: 1

Innvendig trapp i enebolig

Trapp i bolig

Grunnarbeid Fundamentering og grunnmur

🧱 Betong

Fundamentering for tilbygg og garasje

Grunnarbeid for tilbygg og garasje

Isolasjon Vegger og tak

🧱 150 mm isolasjon i eksisterende bygg, dagens krav i tilbygg

150 mm isolasjon i eksisterende bygg, tilbygg utføres i henhold til TEK17

Isolasjon for vegger og tak

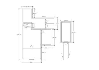
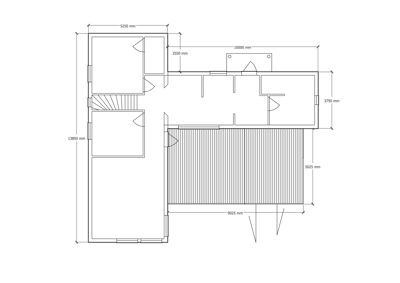
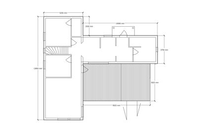
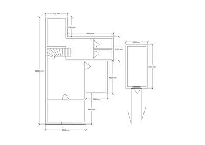
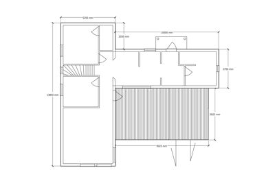
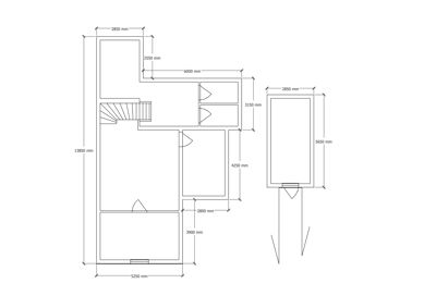
Plantegning

Enebolig 108.5 m²

Etasje 1 108.5 m²

Rom Areal Vinduer Dører
Stue 101 37.5 m² 1 2
Sovegang 102 12.5 m² 0 1
Sovegang 103 12.5 m² 0 1
Bad 104 6.2 m² 0 1
Gang 105 12.5 m² 0 2
Kjøkken 106 12.5 m² 1 1
Vaskerom 107 6.2 m² 0 1

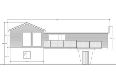
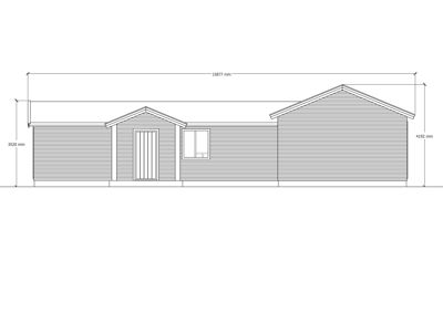
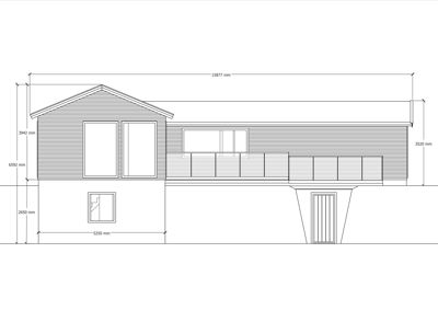
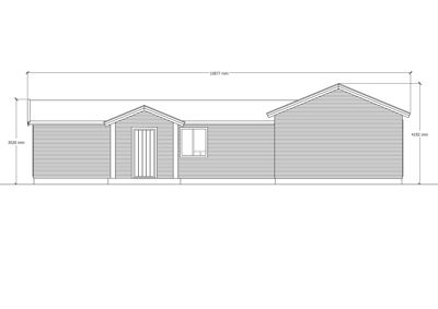
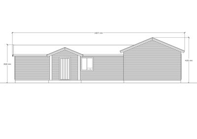
Fasader

Garasje

Sør
Materiale
Betong
Taktype
Flatt tak
Vinduer
0
Dører
0
Synlige etasjer
1

Enebolig

Vest
Materiale
Tre
Taktype
Valmtak
Vinduer
3
Dører
1
Balkonger
1
Synlige etasjer
2

Hovedbygg

Ukjent
Materiale
Tre
Taktype
Saltak
Høyde
6.6 m
Mønehøyde
8.6 m
Vinduer
3
Dører
1
Balkonger
1
Synlige etasjer
2

Hendelser

01.04.2026 261/70 - Ber om forlenget frist for tilbakemelding
25.03.2026 261/70 Tilbygg og bruksendring - Bolig og avløpsanlegg - Manglende ferdigattest eller midlertidig brukstillatelse ferdigattest
11.05.2020 261/70 Tillatelse til tiltak - Tilbygg og bruksendring byggetillatelse
11.05.2020 261/70 Tilsvar mangelbrev - Tilbygg og bruksendring - Bolig og avløpsanlegg
28.04.2020 261/70 Mangler i søknad - Tilbygg og bruksendring - Bolig og avløpsanlegg søknad
22.04.2020 261/70 Ber om status - Tilbygg og bruksendring - Bolig og avløpsanlegg
01.04.2020 261/70 Kvitteringsbrev - Tilbygg og bruksendring - Bolig og avløpsanlegg
30.03.2020 261/70 Søknad om tilbygg og bruksendring - Bolig og avløpsanlegg søknad