Extension Soeknad Enebolig

Tilbygg, overbygg og fasadeendring på enebolig, Dragsundråsa 5

📍 Dragsundråsa 5 , 6080 GURSKØY

Nøkkelinfo

Sakstype
Tilbygg
Bygningstype
Enebolig
Bruksareal
201 m²
Boenheter
1
Kommune
Herøy (Møre og Romsdal)
Fylke
Møre og Romsdal
Gnr / Bnr
45 / 158
Saksnummer
2026/6986
Fase
Søknad

Om byggesaken

Ny tilbygg på 5,5 x 3,3 meter på sørøstside av eneboligen, samt et overbygg til terrasse på 5,1 x 3,1 meter på samme side. I tillegg utføres fasadeendring på sørvestside med innbygging av terrasse, som medfører endring fra BYA til BRA. Eneboligen har saltak og trekledning, med totalt 201,3 m² fordelt på to etasjer. Prosjektet inkluderer oppgradering av fasader og utvidelse av oppholdsareal med tilbygg og overbygg.

Produkter og materialer

Vinduer Fasadevindu

Antall: 6

6 vinduer på sørøstfasade, totalt 17 vinduer i bygget

Vinduer til fasadeendring og tilbygg

Fasade Trekledning

🧱 Tre

Fasadeendring med trekledning på sørvestside

Materialer for fasadeendring og utvidelse av fasade med trekledning

Tak Saltak

🧱 Tre, taktekking ikke spesifisert

Saltak på eksisterende og nye bygningsdeler

Taktekking og konstruksjon for tilbygg og overbygg med saltak

Grunnarbeid Fundamentering for tilbygg og overbygg

Grunnarbeid og fundamentering for nytt tilbygg og overbygg

Terrasse Overbygg terrasse

Antall: 1

Overbygg terrasse 5,1 x 3,1 meter på sørøstside

Konstruksjon for overbygg av terrasse

Tømrer Bygging av tilbygg og overbygg

🧱 Tre

Tømrerarbeid for oppføring av tilbygg og overbygg i trekonstruksjon

Dører Ytterdører

Antall: 2

2 dører på sørvestfasade, 2 dører på sørøstfasade

Ytterdører til tilbygg og fasadeendring

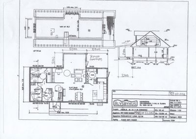
Plantegning

Enebolig 201.3 m²

Etasje 1 133.0 m²

Rom Areal Vinduer Dører
Stue/kjøkken 101 61.0 m² 4 2
Soverom 102 11.6 m² 1 1
Soverom 103 12.9 m² 1 1
Bad 104 6.0 m² 0 1
Vaskerom 105 4.0 m² 0 1
Korridor 106 10.0 m² 0 2
Gang 107 10.0 m² 0 1
Terrasse overbygg 108 18.5 m² 0 0

Etasje 2 68.3 m²

Rom Areal Vinduer Dører
Kaldt loft 201 68.3 m² 0 1

Fasader

Enebolig

Nordvest
Materiale
Tre
Taktype
Saltak
Vinduer
5
Dører
1
Balkonger
1
Synlige etasjer
1
Nordøst
Materiale
Tre
Taktype
Saltak
Vinduer
2
Dører
1
Balkonger
1
Synlige etasjer
1
Sørøst
Materiale
Tre
Taktype
Saltak
Vinduer
6
Dører
0
Synlige etasjer
2
Sørvest
Materiale
Tre
Taktype
Saltak
Vinduer
4
Dører
2
Balkonger
1
Synlige etasjer
2

Hendelser

22.04.2026 Søknad - gnr 45 bnr 158