Facade
Fasadetegning som viser bygningens utside, inkludert vinduer, tak, fasadematerialer og en bil parkert foran.
1 / 14
Extension
UnderBehandling
Enebolig
Tilbygg vinterhage på eksisterende veranda, Dyrda 19
📍 Dyrda 19
Nøkkelinfo
- Sakstype
- Tilbygg
- Bygningstype
- Enebolig
- Bruksareal
- 17 m²
- Boenheter
- 1
- Kommune
- Vestnes
- Fylke
- Møre og Romsdal
- Gnr / Bnr
- 25 / 23
- Saksnummer
- 2020/2407
- Fase
- Under behandling
Om byggesaken
Ny vinterhage på ca. 17 m² bygges som tilbygg på eksisterende veranda på sørvestsiden av eneboligen på Dyrda 19. Tilbygget er en del av boligens første etasje og har tre vinduer og en dør. Bygget er i tre med saltak, og tilbyggarealet øker boligens bruksareal fra 183 m² til 200 m². Tiltaket er estetisk tilpasset eksisterende bygg og tilfredsstiller krav til sikring mot vindkrefter. Eiendommen har offentlig vann og avløp, og tilbyggingen medfører ingen endring i tilkomst eller parkeringsforhold.
Produkter og materialer
Fasade
Trevegger
🧱 Tre
Tilbygg i tre som matcher eksisterende fasade
Kledning og bærende konstruksjon i tre for tilbygg vinterhage
Grunnarbeid
Fundamentering
Fundamentering for tilbygg på veranda
Tømrer
Bygningskonstruksjon
🧱 Tre
Tømrerarbeid for oppføring av tilbygg vinterhage
Dører
Ytterdør i vinterhage
Antall: 1
Dør i tilbygg vinterhage
Isolasjon
Vegger og tak
Isolasjon for vegger og tak i vinterhage
Vinduer
Vindu i vinterhage
Antall: 3
Tre vinduer i tilbygg vinterhage
Elektro
Elektrisk anlegg
Elektrisk installasjon i tilbygg vinterhage
Maling
Utvendig og innvendig maling
Maling av treflater utvendig og innvendig i tilbygg vinterhage
Tak
Saltak
🧱 Tre med taktekking
Saltak som matcher eksisterende bygg
Tak med saltak for tilbygg vinterhage
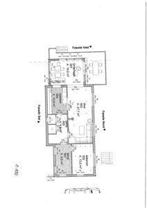
Plantegning
Enebolig 95.3 m²
Etasje 1 95.3 m²
| Rom | Areal | Vinduer | Dører |
|---|---|---|---|
| Vinterhage 001 | 16.6 m² | 3 | 1 |
| Leikerom 002 | 13.0 m² | 2 | 1 |
| Stue 003 | 27.7 m² | 2 | 1 |
| Kjøkken 004 | 10.4 m² | 1 | 1 |
| Gang 005 | 8.0 m² | 0 | 2 |
| Gang 007 | 9.6 m² | 2 | 1 |
| Stue 101 | 30.7 m² | 6 | 2 |
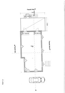
Fasader
Enebolig
Nord
- Materiale
- Tre
- Taktype
- Saltak
- Høyde
- 5.4 m
- Vinduer
- 10
- Dører
- 2
- Balkonger
- 1
- Synlige etasjer
- 2
Vest
- Materiale
- Tre
- Taktype
- Saltak
- Høyde
- 5.4 m
- Vinduer
- 5
- Dører
- 1
- Balkonger
- 1
- Synlige etasjer
- 2
Sør
- Materiale
- Tre
- Taktype
- Saltak
- Vinduer
- 1
- Dører
- 0
- Synlige etasjer
- 1
Hendelser
20.04.2026
Søknad om ferdigattest - gnr 25 bnr 23
17.03.2026
Purring på søknad om ferdigattest - Tilbygg på eksisterande veranda - Dyrda 19 - gnr 25 bnr 23
23.10.2020
Fakturagrunnlag sakshandsaming - Tilbygg på eksisterande veranda - Dyrda 19 - gnr 25 bnr 23
23.10.2020
Løyve til tiltak - Tilbygg på eksisterande veranda - Dyrda 19 - gnr 25 bnr 23
22.10.2020
Situasjonskart og teikningssett i målestokk
22.10.2020
Kvittering for nabovarsel
16.10.2020
Tilbakemelding om manglar - Tilbygg på eksisterande veranda - Dyrda 19 - gnr 25 bnr 23
06.10.2020
Søknad om løyve til tiltak utan ansvarsrett