Extension Soeknad Enebolig

Tilbygg og fasadeendring på enebolig i Dyrhaugen 38, Bergen

📍 Dyrhaugen 38 , 5236 RÅDAL

Nøkkelinfo

Sakstype
Tilbygg
Bygningstype
Enebolig
Bruksareal
323 m²
Boenheter
1
Kommune
Bergen
Fylke
Vestland
Gnr / Bnr
40 / 717
Saksnummer
BYGG-2026/12540
Fase
Søknad

Om byggesaken

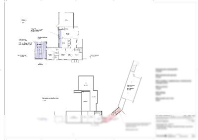
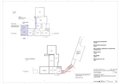
Ny tilbygg på 32,6 m² erstatter eksisterende anneks på 9,5 m² ved eneboligen i Dyrhaugen 38. Tilbygget har gesimshøyde på 3,4 meter og mørk kledning for visuell underordning. Fasadeendringer inkluderer tilbakeføring av gesimskasser til opprinnelig design, visuelle oppbrytninger som gjenskaper opprinnelig arkitektur, samt fjerning av tette felt for å bevare teglfasaden. Det legaliseres også en utvidelse av spisestue og kjøkken på 8,2 m². En ny underjordisk kulvert på 14,2 m² etableres mellom garasje og kjeller for intern gangforbindelse. Eksisterende pipe og anneks rives. Bygget har totalt BRA på ca. 323 m² etter tiltaket, med uendret møne- og gesimshøyde. Tiltaket er tilpasset eksisterende arkitektur og byantikvarens anbefalinger.

Produkter og materialer

Dører Ytterdører og dører til kulvert

Antall: 9

Dører i eksisterende bolig, tilbygg og kulvert, inkludert dør til kulvert under terreng

Dører for adkomst til bolig og kulvert

VVS Eksisterende tilknytning vann og avløp

Eksisterende tilknytning til vann og avløp opprettholdes, ingen endring i belastning

VVS-tilknytning for bolig og tilbygg

Fasade Gesimskasse i tre

🧱 Tre

Gesimskasse tilbakeført til opprinnelig design med 50 cm bredde i tråd med arkitekt Dogger og Djurhuus originale tegninger

Tilbakeføring av gesimskasse som arkitektonisk element på fasaden

Betong Fundamenter og kulvertkonstruksjon

🧱 Betong

Betongkonstruksjon for underjordisk kulvert og fundamenter for tilbygg

Betongarbeid for kulvert og tilbygg

Vinduer Fasadevindu

Antall: 7

Vinduer i eksisterende og nytt tilbygg, inkludert hevede vinduer i vestfasade på tilbygget, i tråd med opprinnelige arkitekttegninger

Vinduer til fasadeendring og tilbygg, tilpasset opprinnelig arkitektur

Maling Utvendig maling/kledning

Mørk utvendig kledning på tilbygg for visuell kontrast og underordning

Overflatebehandling av fasade på tilbygg

Fasade Teglfasade

🧱 Tegl

Bevaring av eksisterende teglfasade, fjerning av tette felt mellom vinduer for å bevare opprinnelig uttrykk

Fasadeendring for å bevare og tilpasse teglfasade til opprinnelig arkitektur

Tilbygg Tilbygg til enebolig

🧱 Trekonstruksjon med mørk kledning

Tilbygg på 32,6 m² med gesimshøyde 3,4 m, mørk kledning, inntrukket ca. 20 cm fra eksisterende langvegg, visuell underordning

Nytt tilbygg som erstatter anneks, tilpasset eksisterende bygg og byantikvarens anbefalinger

Elektro Elektrisk installasjon

Elektriske installasjoner i tilbygg og fasadeendringer, tiltakshaver har elektrokompetanse

Elektroarbeid for nytt tilbygg og endringer

Trapper Innvendige trapper

Antall: 2

To trapper i bolig, en i hovedetasje og en i kjeller/garasjeplan

Innvendige trapper i eneboligen

Tømrer Trekonstruksjoner for tilbygg

🧱 Tre

Trekonstruksjoner for nytt tilbygg og fasadeendringer

Tømrerarbeid for oppføring av tilbygg og fasadeendringer

Grunnarbeid Underjordisk kulvert

🧱 Betong

Ny underjordisk kulvert på 14,2 m² mellom garasje og kjeller for intern gangforbindelse

Kulvert under terreng som forbinder garasje og bolig

Riving Riving av anneks og pipe

Riving av eksisterende anneks på 9,5 m² og sekundærpipe som vist på fasadetegning

Fjerning av eksisterende anneks og pipe som del av tiltaket

Plantegning

Enebolig 276.3 m²

Etasje 1 214.5 m²

Rom Areal Vinduer Dører
Stue 101 35.4 m² 1 1
Spisestue 102 30.8 m² 1 1
Kjøkken 103 12.8 m² 1 1
Gang 104 28.1 m² 0 4
Soverom 1 105 14.0 m² 1 1
Soverom 2 106 12.5 m² 1 1
Soverom 3 107 10.0 m² 1 1
Bad 1 108 5.2 m² 0 1
Bad 2 109 3.0 m² 0 1
Bad 3 110 3.1 m² 0 1
WC 111 1.8 m² 0 1
Kjeller 112 31.0 m² 0 1

Etasje 0 61.8 m²

Rom Areal Vinduer Dører
Blindkjeller 001 12.3 m² 0 1
Vaskerom 002 12.7 m² 0 1
Gang 003 14.4 m² 0 2
Krykkjeller 004 21.4 m² 0 1

Hendelser

15.04.2026 Dyrhaugen 38 Søknad om tillatelse i ett trinn 40/717