Extension Soeknad Enebolig

Tilbygg og bruksendring på enebolig i Egil Hålandsvei 7, Drammen

📍 Egil Hålandsvei 7 , 3055 KROKSTADELVA

Nøkkelinfo

Sakstype
Tilbygg
Bygningstype
Enebolig
Bruksareal
124 m²
Boenheter
1
Kommune
Drammen
Fylke
Buskerud
Gnr / Bnr
238 / 119
Saksnummer
26/11074
Fase
Søknad

Om byggesaken

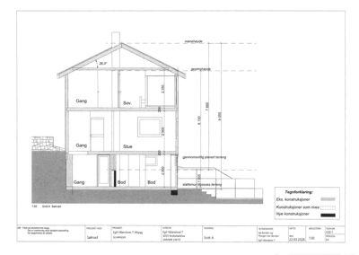
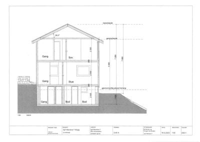
Ny tilbygg på eksisterende enebolig i Egil Hålandsvei 7, Drammen, med et tilbygg på ca. 75,5 m² som inkluderer inngangsparti, to soverom og kjellerstue i underetasjen, samt stue med terrasse og bod i hovedetasjen. Tilbygget har saltak med teglstein og tre som fasademateriale, og tilpasses eksisterende bygningsstil med større vindusflater i stuedelen. Det planlegges også bruksendring i kjeller fra bod til bad på 10 m², med installasjon av mekanisk avtrekk og gulvvarme. Totalt areal etter utbygging blir ca. 124,5 m² BYA for boligen, med gesims- og mønehøyde på henholdsvis 6,15 m og 7,85 m. Det etableres ny hovedinngang i underetasjen for bedre adkomst fra garasje. Prosjektet inkluderer også overbygget terrasse og tilpasning til terreng med støttemur.

Produkter og materialer

Vinduer Store vindusflater i stuedel

Antall: 17

Moderne vindusflater tilpasset boligens arkitektur, totalt 17 vinduer i tilbygg og eksisterende

Vinduer i tilbygg og eksisterende bygg, inkludert større vindusflater i stue

Elektro Elektrisk installasjon for belysning og varme

Elektrisk installasjon for nytt bad, belysning og varme i tilbygg

Elektriske arbeider knyttet til tilbygg og bruksendring

Isolasjon Isolasjon i vegger, tak og gulv

Isolasjon i henhold til TEK17 for tilbygg og bruksendring

Isolasjon for å oppfylle energikrav i tilbygg og bruksendring

Grunnarbeid Støttemur og terrengtilpasning

Støttemur tilpasset terreng rundt tilbygg

Grunnarbeid for tilpasning av terreng og støttemur rundt tilbygg

Fasade Trepanel

🧱 Tre, malt hvit

Fasade i tre med hvit farge, tilpasset eksisterende bygg

Utvendig kledning i tre som matcher eksisterende fasade

Terrasse Overbygget terrasse

Antall: 1

Overbygget terrasse på 8,7 m² i tilbyggets hovedetasje

Ny overbygget terrasse som gir gode uteoppholdsarealer

VVS Bad med mekanisk avtrekk og gulvvarme

Antall: 1

Bad i kjeller med mekanisk avtrekk og installasjon av gulvvarme

Oppgradering av bad i kjeller med ventilasjon og varme

Tak Saltak med teglstein

🧱 Teglstein

Saltak med teglstein, gesimshøyde 6,15 m, mønehøyde 7,85 m

Nytt saltak med teglstein som matcher eksisterende tak

Dører Ytterdører og terrassedører

Antall: 10

Nye ytterdører i underetasje og terrassedører til terrasse på hovedetasje

Dører for ny hovedinngang i underetasje og terrassedører til uteareal

Tømrer Bygging av tilbyggets konstruksjon

🧱 Tre

Tømrerarbeid for oppføring av tilbygg i tre

Konstruksjon og innredning av tilbygg i tre

Gulv Gulvvarme på bad

Antall: 1

Gulvvarme installert på bad i kjeller

Varmeinstallasjon i gulv på bad i kjeller

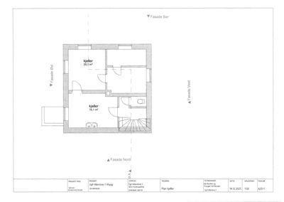
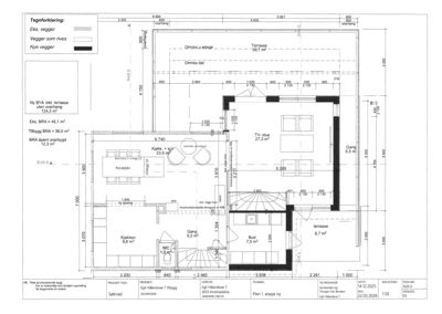
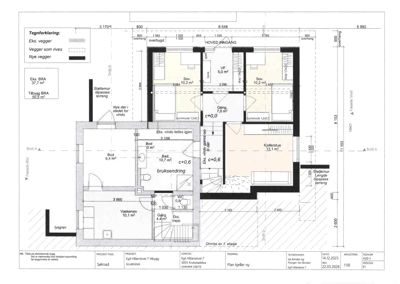
Plantegning

Enebolig 245.2 m²

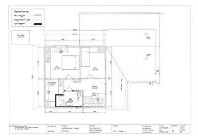
Etasje 0 100.1 m²

Rom Areal Vinduer Dører
Kjellerstue 001 13.1 m² 0 1
Gang 002 4.4 m² 0 1
Vaskerom 003 10.1 m² 0 1
WC 004 0.8 m² 0 1
Bad 005 10.7 m² 0 1
Bod 006 9.4 m² 0 1
Kjeller kjeller 20.7 m² 1 1

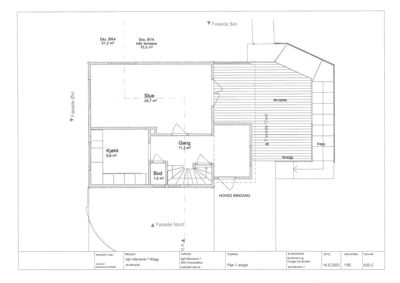
Etasje 1 100.0 m²

Rom Areal Vinduer Dører
Gang 101 7.0 m² 0 4
Sov 102 10.2 m² 1 1
Sov 103 10.2 m² 1 1
VF 104 5.0 m² 0 0
WC 105 1.0 m² 0 1
Bod 106 7.5 m² 1 1
Terrasse 107 8.7 m² 0 0
Terrasse 108 39.7 m² 0 0

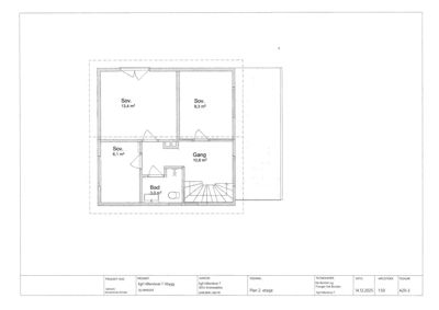
Etasje 2 45.1 m²

Rom Areal Vinduer Dører
Sov. 1 201 13.4 m² 1 1
Sov. 2 202 9.3 m² 1 1
Gang 203 10.0 m² 0 2
Bad 204 4.7 m² 0 1
Garderobe 205 4.8 m² 0 1

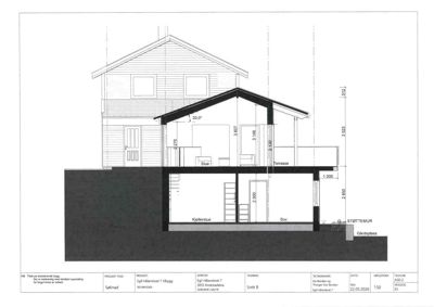
Fasader

Enebolig

Sør
Materiale
Tre
Taktype
Saltak
Takmat.
Tegl
Høyde
6.2 m
Mønehøyde
7.8 m
Vinduer
5
Dører
2
Balkonger
1
Synlige etasjer
2
Nord
Materiale
Tre
Taktype
Saltak
Takmat.
Tegl
Høyde
6.2 m
Mønehøyde
7.8 m
Vinduer
4
Dører
1
Synlige etasjer
2
Vest
Materiale
Tre
Taktype
Saltak
Takmat.
Tegl
Høyde
6.2 m
Mønehøyde
7.8 m
Vinduer
3
Dører
1
Balkonger
1
Synlige etasjer
2
Øst
Materiale
Tre
Taktype
Saltak
Høyde
6.2 m
Mønehøyde
7.8 m
Vinduer
4
Dører
0
Balkonger
1
Synlige etasjer
2

Hendelser

20.04.2026 Egil Hålandsvei 7, søknad om tillatelse til tiltak