Extension UnderBehandling Enebolig

Tilbygg og ombygging av restaurant og bolig, Eidsgata 8

📍 Eidsgata 8 , 6770 NORDFJORDEID

Nøkkelinfo

Sakstype
Tilbygg
Bygningstype
Enebolig
Bruksareal
144 m²
Boenheter
1
Kommune
Stad
Fylke
Vestland
Gnr / Bnr
45 / 93
Saksnummer
2025/1794
Fase
Under behandling

Om byggesaken

Eksisterende bygning på Eidsgata 8 består av en kombinert nærings- og boligbygning med restaurant i 1. etasje og bolig i 2. etasje. Prosjektet omfatter bruksendring av deler av bygget til restaurantformål, hovedombygging, fasadeendring og oppføring av tilbygg på totalt ca. 83 m² (70 m² mot nord og 13 m² mot sør). Tilbygget mot nord har flatt tak og erstatter tidligere planlagt 2-etasjes tilbygg med skråtak, mens tilbygget mot sør også har flatt tak og øker avstanden til nabogrense. Bygget får ny fasade med tre som hovedmateriale og saltak på nord- og vestfasade, mens sørfasaden har flatt tak. Innvendig inneholder bygget restaurantarealer, kjøkken, lager, WC, HCWC, garderobe, teknisk rom og boligrom. Det er én trapp i bygget. Prosjektet inkluderer også oppgradering av bygningskroppen og tilpasning til branntekniske krav i TEK17. Det er planlagt ventilasjon, sanitærinstallasjoner, grunnarbeid og tømrerarbeid som del av prosjektet. Parkering løses via frikjøpsavtale, og det foreligger dispensasjon fra avstandskrav til nabogrense. Arbeidstilsynet har gitt samtykke til tiltaket med visse avvik fra standardkrav til personalrom og HCWC, men dette er godkjent for denne lille virksomheten.

Produkter og materialer

Maling Innvendig og utvendig maling

Maling av fasader, innvendige vegger og tak

Maling for fasade og innvendige overflater

Tømrer Tømrerarbeid

🧱 Tre

Tømrerarbeid for tilbygg og ombygging

Tømrerarbeid for oppføring av tilbygg og ombygging av eksisterende bygg

Fasade Trepanel

🧱 Tre

Trepanel på fasader, saltak med tegl på nord- og vestfasade, flatt tak på sørfasade

Fasadeendring med ny trepanel og taktekking som tilpasses tilbyggenes utforming

Tak Saltak og flatt tak

🧱 Tegl på saltak, membran på flatt tak

Saltak med tegl på nord- og vestfasade, flatt tak på sørfasade

Nytt tak på tilbygget og eksisterende deler med saltak og flatt tak

Vinduer Fasadevindu

🧱 Tre/aluminium

Antall: 16

8 vinduer på nordfasade, 4 på vestfasade, 4 på sørfasade

Nye og endrede fasadevinduer i tilbygget og eksisterende bygg

Trapper Innvendig trapp

Antall: 1

Eksisterende trapp opprettholdes

Innvendig trapp mellom etasjer

Grunnarbeid Grunnarbeid og fundamentering

Omlegging av vann- og avløpsledninger i grunnen, fundamentering for tilbygg

Grunnarbeid for tilbygg og omlegging av infrastruktur

Rekkverk Rekkverk på trapper og balkonger

Rekkverk iht. TEK17 krav på trapp og eventuelle utvendige områder

Sikring med rekkverk på trapp og uteområder

Elektro Elektriske installasjoner

Elektriske installasjoner for belysning, strøm til kjøkken og tekniske rom

Elektriske installasjoner i hele bygget

Betong Fundament og gulv

🧱 Betong

Betongfundament og gulv i tilbygget

Betongarbeid for fundament og gulv i tilbygget

Ventilasjon Mekanisk ventilasjon

Ventilasjonsanlegg for restaurant og arbeidsplasser, dokumentert med luftmengdeberegning

Mekanisk ventilasjon for tilfredsstillende inneklima i restaurant og personalrom

Dører Ytterdører og innerdører

🧱 Tre/metal

Antall: 9

Ytterdør på vestfasade, flere innerdører i restaurant og bolig

Nye ytter- og innerdører i tilbygget og ombygde arealer

Gulv Gulvbelegg

Gulvbelegg i restaurant, kjøkken, WC og bolig

Gulvbelegg tilpasset bruk i restaurant og bolig

VVS Sanitærinstallasjoner og VA

Sanitærinstallasjoner i restaurant og bolig, tilknytning til offentlig vann og avløp

Sanitærinstallasjoner for nytt kjøkken, WC, HCWC og garderobe

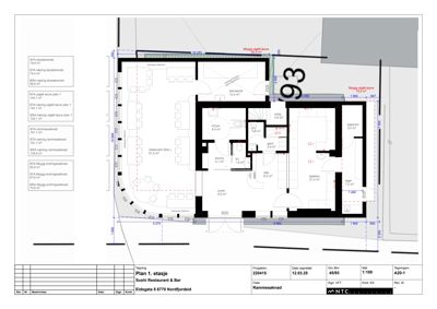
Plantegning

Sushi Restaurant & Bar 144.1 m²

Etasje 1 144.1 m²

Rom Areal Vinduer Dører
restaurant 101 51.2 m² 0 1
entré 102 9.5 m² 0 1
forrom 103 3.1 m² 0 1
HCwc 104 6.4 m² 0 0
WC 105 1.8 m² 0 1
gard 106 2.6 m² 0 1
disk 107 8.2 m² 0 0
kjøkken 108 21.2 m² 0 1
lager 109 7.2 m² 0 1
kjølerom 110 3.0 m² 0 1
bolig 111 2.6 m² 0 1
teknisk/bk 112 12.4 m² 0 1

Fasader

Sushi Restaurant & Bar

Nord
Materiale
Tre
Taktype
Saltak
Høyde
3.7 m
Vinduer
8
Dører
0
Synlige etasjer
2
Vest
Materiale
Tre
Taktype
Saltak
Takmat.
Tegl
Høyde
3.7 m
Mønehøyde
8.2 m
Vinduer
4
Dører
1
Synlige etasjer
2

Enebolig

Sør
Materiale
Tre
Taktype
Flatt tak
Høyde
4.5 m
Vinduer
4
Dører
2
Synlige etasjer
2

Hendelser

15.04.2026 Kopi til Stad kommune - Vurdering av samtykke - veiledning
13.10.2025 Søknad om dispensasjon - frikjøp av parkering
30.09.2025 Arkivsak 2025/1794: Tilbygg Eidsgata 8, søknad om dispensasjon fra frikjøpsavtale
19.09.2025 Omgjering av vedtak utan klage - vilkår i rammeløyve
15.09.2025 Angåande frikjøpsavtale
20.08.2025 Kopi til Stad kommune - Vi innvilger søknaden om samtykke
01.08.2025 Kopi til Stad kommune - Vi trenger flere opplysninger for å behandle søknaden – varsel om avslag på søknad
01.07.2025 Dialog, rammeløyve
24.06.2025 Dispensasjon og rammeløyve - bruksendring, ombygging og fasadeendring
09.04.2025 Eidsgata 8 Søknad om rammetillatelse 45/93