Extension UnderBehandling Enebolig

Tilbygg og ombygging av enebolig i Engelsvikenveien 108

📍 Engelsvikenveien 108 , 1628 ENGELSVIKEN

Nøkkelinfo

Sakstype
Tilbygg
Bygningstype
Enebolig
Bruksareal
308 m²
Boenheter
1
Kommune
Fredrikstad
Fylke
Østfold
Gnr / Bnr
113 / 21
Saksnummer
2024/29649
Fase
Under behandling

Om byggesaken

Prosjektet omfatter tilbygg og ombygging av en eksisterende enebolig på Engelsvikenveien 108 i Fredrikstad kommune. Tilbygget inkluderer en lav kjeller med bodareal, og økt bruksareal i første og andre etasje, totalt ca. 307,5 m². Bygget har saltak og trekledning, med flere nye og endrede vinduer og dører i fasadene. Det er etablert solcellepanel på taket, og det er planlagt utvendige trapper og terrasser som ikke er ferdigstilt. Kjelleren har egen inngang og er delvis oppgradert med nye kjellervinduer. Prosjektet inkluderer også tekniske installasjoner som brannsikkert skap for el-installasjon og solceller. Det er en trapp i bygget, og fasadene har flere balkonger og en garasjeport.

Produkter og materialer

Elektro El-installasjon og brannsikkert skap

Brannsikkert skap for el-installasjon i kjeller, solcelleanlegg tilknyttet elektrisk system.

Elektriske installasjoner inkludert solcelleanlegg og brannsikkerhet.

Tak Saltak med solcellepanel

🧱 Takstein med integrerte solcellepaneler

Saltak med ca. 28° takvinkel, solcellepanel montert på takflaten mot sør.

Tak med integrerte solcellepaneler for energiproduksjon.

Garasjeport Port til garasje

Antall: 1

Garasjeport på vestfasade.

Garasjeport tilknyttet bolig.

Dører Ytterdører og kjellerdør

🧱 Tre eller isolert dør antatt

Antall: 8

Dører i fasader og kjeller, inkludert kjellerinngangsdør.

Nye og eksisterende ytterdører og kjellerdør for adkomst.

Vinduer Fasadevindu og kjellervindu

🧱 3-lags energiglass antatt

Antall: 14

Endringer i vindusstørrelser, inkludert flytting av vindu fra sør til øst, og mindre vindusendringer i fasader. Nye kjellervinduer for lys i kjellerbod.

Nye og endrede vinduer i fasader og kjeller for lys og ventilasjon.

Fasade Trekledning

🧱 Tre

Fasader i tre med flere balkonger og endringer i vindusplassering.

Trekledning på fasader med balkonger og dører.

Terrasse Utvendig terrasse og platting

🧱 Tre antatt

Terrasse på fasade mot sør ikke ferdigstilt, planlagt plattinger.

Utvendig terrasse og platting som gjenstår å bygge.

Trapper Innvendig trapp og utvendige trapper

🧱 Tre og betong antatt

Antall: 1

Innvendig trapp i huset, utvendige trapper på fasade øst og terrasser ikke ferdigstilt.

Innvendig trapp i bolig og planlagte utvendige trapper som gjenstår.

Mur Grunnmur og kjellervegger

🧱 Betong og mur

Kjellervegger og grunnmur mot fjell, lav høyde krypkjeller under tilbygg.

Kjellervegger og grunnmur for tilbygg og eksisterende bolig.

Gulv Innvendige gulvflater

Standard gulvflater i bolig, inkludert kjellerbod.

Innvendige gulv i bolig og kjeller.

VVS Varme- og ventilasjonssystem

Varmeforsyning med elektrisitet, muligens varmepumpe, og ventilasjon iht. TEK17.

Varme- og ventilasjonsinstallasjoner i bolig.

Rekkverk Balkongrekkverk

🧱 Tre eller metall antatt

Rekkverk på balkonger i flere fasader.

Rekkverk for balkonger på fasader.

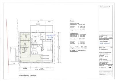
Plantegning

Enebolig 307.5 m²

Etasje 0 120.5 m²

Rom Areal Vinduer Dører
Kjeller 001 40.0 m² 0 1
Kryp kjeller 002 40.0 m² 0 0
Kryp kjeller 003 40.5 m² 0 0

Etasje 1 145.0 m²

Rom Areal Vinduer Dører
Entre 101 16.0 m² 0 2
Stue 102 35.0 m² 2 1
Kjøkken 103 15.0 m² 1 1
Bad 104 4.0 m² 0 1
Sov 105 11.0 m² 1 1
Gard 106 9.0 m² 1 1
Bod/Gard 107 10.0 m² 0 1

Etasje 2 42.0 m²

Rom Areal Vinduer Dører
Sov 201 21.0 m² 1 1
Bod 202 4.0 m² 0 1
Hjemmekontor 203 8.0 m² 0 1
Sov 204 21.0 m² 1 1

Fasader

Enebolig

Øst
Materiale
Tre
Taktype
Saltak
Vinduer
4
Dører
2
Balkonger
1
Synlige etasjer
2
Nord
Materiale
Tre
Taktype
Saltak
Vinduer
3
Dører
0
Synlige etasjer
2
Vest
Materiale
Tre
Taktype
Saltak
Vinduer
2
Dører
0
Balkonger
1
Synlige etasjer
2
Sør
Materiale
Tre
Taktype
Saltak
Vinduer
3
Dører
1
Balkonger
1
Synlige etasjer
2

Hendelser

21.04.2026 Tilbakemelding - Foreløpig svar på søknad om midlertidig brukstillatelse - Engelsvikenveien 108 - Eiendom 113/21
21.04.2026 Tilleggsdokumentasjon - Søknad om midlertidig brukstillatelse - Engelsvikenveien 108 - Eiendom 113/21 - Tilbygg og ombygging av eksisterende bolighus
20.04.2026 Foreløpig svar på søknad om midlertidig brukstillatelse - Engelsvikveien 108 - Eiendom 113/21
20.04.2026 Søknad om midlertidig brukstillatelse - Engelsvikveien 108
31.03.2026 Foreløpig tilbakemelding på søknad om ferdigattest - Tilbygg/påbygg, samt ombygging av eksisterende bolig - Engelsvikenveien 108 - Eiendom 113/21
19.03.2026 Søknad om ferdigattest - Engelsvikenveien 108 - Eiendom 113/21 - Tilbygg og ombygging av eksisterende bolighus
12.05.2025 Melding om endring av ansvarsrett - Engelsvikenveien 108 - Eiendom 113/21
15.11.2024 Tillatelse - Tilbygg og ombygging av eksisterende bolighus - Engelsvikenveien 108 - Eiendom 113/21
13.11.2024 Bekreftelse på mottatt søknad - Ett-trinns søknad - Tilbygg og ombygging av eksisterende bolighus - Engelsvikenveien 108 - Eiendom 113/21
01.11.2024 Ett-trinns søknad - Engelsvikenveien 108 - Eiendom 113/21 - Tilbygg og ombygging av eksisterende bolighus