Extension Soeknad Enebolig

Tilbygg til enebolig på Erikstadveien 29, Fauske

📍 Erikstadveien 29 , 8206 FAUSKE

Nøkkelinfo

Sakstype
Tilbygg
Bygningstype
Enebolig
Bruksareal
50 m²
Boenheter
1
Kommune
Fauske - Fuossko
Fylke
Nordland - Nordlánnda
Gnr / Bnr
104 / 44
Saksnummer
2026/1184
Fase
Søknad

Om byggesaken

Ny tilbygg på totalt 50 m² fordelt på to etasjer til eksisterende enebolig på Erikstadveien 29. Tilbygget inkluderer blant annet større gang og bod i første etasje og soverom i andre etasje. Bygget har saltak og trekledning som matcher eksisterende fasade. Tilbygget vil erstatte et eksisterende overbygg og tilpasses med nye vinduer og dører i treverk. Fasaden har flere balkonger og vinduer fordelt på alle fire sider, og bygget har totalt to etasjer.

Produkter og materialer

Tak Saltak

Antall: 1

Saltak som eksisterende bygg

Tak med saltak til tilbygg

Fasade Trekledning

🧱 tre

Trekledning som matcher eksisterende fasade

Kledning til tilbyggets yttervegger i tre for å matche eksisterende bygg

Grunnarbeid Fundamentering og grunnmur

Antall: 1

Grunnarbeid for tilbyggets fundament og grunnmur

Betong Fundament og gulvstøp

Betongarbeid for fundament og gulv i tilbygg

VVS Vann og avløp, varme

VVS-installasjoner for tilbygg, inkludert vann, avløp og eventuell varme

Dører Ytterdør i tre

🧱 tre

Antall: 1

Ytterdør til tilbygg

Tømrer Bærende konstruksjoner og innvendig arbeid

🧱 tre

Tømrerarbeid for reisverk, takstoler og innvendige konstruksjoner i tilbygg

Maling Innvendig og utvendig maling

Maling av innvendige og utvendige flater i tilbygg

Elektro Elektrisk installasjon

Elektriske installasjoner i tilbygg, inkludert belysning og stikkontakter

Vinduer Fasadevindu i tre

🧱 tre

Antall: 5

Nye fasadevindu i tre til tilbygg

Gulv Innvendige gulvflater

Gulvbelegg eller parkett til innvendige gulv i tilbygg

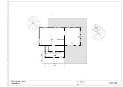
Plantegning

Enebolig 107.2 m²

Etasje 1 107.2 m²

Rom Areal Vinduer Dører
Stue 31 29.8 m² 3 1
STUE/KJØKKEN 34 48.1 m² 3 1
Soverom 33 11.1 m² 1 1
Bad 35 4.3 m² 0 1
Gang 36 3.9 m² 0 2
Stue 101 35.5 m² 3 1
Sove 102 28.8 m² 2 1
Gang 103 0.0 m² 0 0

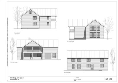
Fasader

Enebolig

Øst
Materiale
Tre
Taktype
Saltak
Vinduer
5
Dører
0
Balkonger
1
Synlige etasjer
2
Vest
Materiale
Tre
Taktype
Saltak
Vinduer
6
Dører
0
Balkonger
1
Synlige etasjer
2
Nord
Materiale
Tre
Taktype
Saltak
Vinduer
3
Dører
1
Balkonger
1
Synlige etasjer
2
Sør
Materiale
Tre
Taktype
Saltak
Vinduer
6
Dører
1
Synlige etasjer
2

Hendelser

20.04.2026 104/44 - Jørn Espen Wågan - Byggesøknad om tilbygg