Extension Rammetillatelse Enebolig

Tilbygg til enebolig på Feråsen 99, Bergen

📍 Feråsen 99 , 5253 SANDSLI

Nøkkelinfo

Sakstype
Tilbygg
Bygningstype
Enebolig
Bruksareal
10 m²
Boenheter
1
Kommune
Bergen
Fylke
Vestland
Gnr / Bnr
38 / 501
Saksnummer
BYGG-2026/11088
Fase
Rammetillatelse

Om byggesaken

Ny tilbygg på ca. 10 m² til eksisterende enebolig på Feråsen 99 i Bergen. Tilbygget inkluderer et nytt soverom og endring av takvinkel samt heving av eksisterende bod/takoverbygg for å tilpasse taket til tilbygget. Bygningen er i tre med saltak tekket med teglstein. Eksisterende bolig har to etasjer med totalt 164,8 m², og tilbygget integreres i denne strukturen. Fasader er i tre, med flere vinduer og dører, og det er pipe i bygget. Prosjektet omfatter også nødvendige grunnarbeider og tekniske tilpasninger for tilbygg.

Produkter og materialer

Tak Saltak med teglstein

🧱 Teglstein

Saltak tekket med teglstein, tilpasset eksisterende takvinkel og hevet bod/takoverbygg

Nytt tak på tilbygget med teglstein, inkludert endring av takvinkel

Gulv Innvendig gulv

Innvendige gulv i tilbygget, tilpasset eksisterende gulvtype

Tømrer Bygging av tilbyggs konstruksjon

🧱 Tre

Tømrerarbeid for oppføring av tilbygget i tre

Elektro Elektrisk installasjon

Elektriske installasjoner i tilbygget, inkludert belysning og stikkontakter

VVS Varme og ventilasjon

VVS-installasjoner i tilbygget, eventuelt varme og ventilasjon til nytt rom

Dører Innvendig og utvendig dør

Antall: 1

Dør til tilbygget, sannsynligvis innvendig dør til nytt rom

Fasade Trepanel

🧱 Tre

Fasade i tre, malt eller behandlet, med saltak i teglstein

Utvendig kledning i tre for tilbygget, tilpasset eksisterende fasade

Grunnarbeid Fundamentering og grunnmur

Grunnarbeid for tilbygget, inkludert fundamentering og eventuell grunnmur

Vinduer Fasadevindu

Antall: 1

Nytt vindu i tilbygget, tilpasset eksisterende vindustype

Maling Innvendig og utvendig maling

Maling av innvendige og utvendige flater i tilbygget

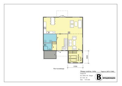
Plantegning

Enebolig 164.8 m²

Etasje 1 60.0 m²

Rom Areal Vinduer Dører
Stue 101 35.0 m² 3 2
Soverom 102 9.2 m² 1 1
Kjøkken 103 10.0 m² 1 1
Bad 104 4.0 m² 0 1
Gang 105 1.8 m² 0 0
Bod 106 5.1 m² 0 1
Peisestue 107 14.0 m² 1 0
Entré 108 10.3 m² 0 1

Etasje 2 104.8 m²

Rom Areal Vinduer Dører
Sov 201 10.0 m² 1 1
Sov 202 11.7 m² 1 1
Sov 203 14.0 m² 1 1
Bad 204 6.8 m² 0 1
Bod 205 7.6 m² 0 1
Opphold 206 14.8 m² 0 0
Opphold/Gang 207 17.2 m² 0 1
Balkong 208 0.0 m² 0 0

Fasader

Enebolig

Sør
Materiale
Tre
Taktype
Saltak
Takmat.
Tegl
Vinduer
4
Dører
1
Balkonger
1
Synlige etasjer
2
Vest
Materiale
Tre
Taktype
Saltak
Vinduer
3
Dører
0
Synlige etasjer
2
Øst
Materiale
Tre
Taktype
Saltak
Vinduer
2
Dører
0
Synlige etasjer
2
Nord
Materiale
Tre
Taktype
Saltak
Vinduer
2
Dører
1
Synlige etasjer
1

Hendelser

13.04.2026 Rammetillatelse, 38/501, Feråsen 99
29.03.2026 Feråsen 99 Supplering av søknad 38/501
27.03.2026 Behov for tilleggsopplysninger
17.02.2026 Bekreftelse på mottatt søknad - 38/501/0/0 Feråsen 99, tilbygg bolig
15.02.2026 Feråsen 99 Søknad om rammetillatelse 38/501