Extension Soeknad Enebolig

Tilbygg og garasje ved Fjellveien 16, Øksnes

📍 Fjellveien 16A , 8430 MYRE

Nøkkelinfo

Sakstype
Tilbygg
Bygningstype
Enebolig
Bruksareal
56 m²
Boenheter
1
Kommune
Øksnes
Fylke
Nordland - Nordlánnda
Gnr / Bnr
65 / 303
Saksnummer
2026/528
Fase
Søknad

Om byggesaken

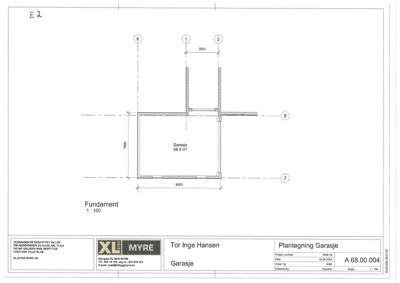
Ny tilbygg til eksisterende enebolig i Fjellveien 16 med tilhørende frittstående garasje på ca. 56 m². Tilbygget vil bli oppført i trekonstruksjon med saltak, tilpasset eksisterende bygningsmaterialer og fasade. Garasjen plasseres i tilknytning til huset, med dispensasjon for byggegrense og utnyttelsesgrad. Bygget får flere vinduer og dører i tre, og fasaden vil ha trepanel. Prosjektet omfatter fundamentering, bærende trekonstruksjoner, taktekking med saltak, samt tekniske installasjoner i henhold til gjeldende forskrifter.

Produkter og materialer

Gulv Innvendig gulvbelegg

Innvendige gulv i tilbygg

Gulvbelegg eller parkett i tilbygg

Fasade Trepanel

🧱 Tre

Fasade i tre, tilpasset eksisterende enebolig

Utvendig kledning i trepanel for tilbygg og garasje

Tømrer Bærende trekonstruksjoner

🧱 Tre

Bærende trekonstruksjoner for tilbygg og garasje

Tømrerarbeid med bærende trekonstruksjoner

Garasjeport Port til frittstående garasje

Antall: 1

Garasjeport til ny garasje på ca. 56 m²

Garasjeport for bilinnkjøring

Tak Saltak

🧱 Takstein eller tilsvarende

Saltak på tilbygg og garasje, tilpasset eksisterende bygg

Taktekking med saltak på tilbygg og garasje

Vinduer Fasadevindu i tre

🧱 Tre med 3-lags glass

Antall: 12

Vinduer i tre, antall basert på fasadeanalyse (2 nord, 3 vest, 6 sør, 1 øst)

Fasadevinduer til tilbygg og garasje

Isolasjon Vegger og tak

Isolasjon i vegger og tak for tilbygg

Isolasjon for å oppnå forskriftsmessig varmeisolering

Elektro Elektrisk installasjon

Elektriske installasjoner i tilbygg og garasje

Elektroinstallasjoner iht. gjeldende forskrifter

VVS Vann og avløp

VVS-installasjoner for tilbygg, inkludert vann og avløp

VVS-installasjoner iht. gjeldende forskrifter

Maling Utvendig og innvendig maling

Maling av trepanel utvendig og innvendig overflater

Overflatebehandling av treverk og innvendige flater

Grunnarbeid Fundamentering

Fundament for tilbygg og garasje iht. tegninger

Grunnarbeid og fundamentering for tilbygg og garasje

Dører Ytterdør i tre

🧱 Tre

Antall: 3

Ytterdører i tre, fordelt på fasader (1 nord, 1 vest, 1 sør)

Ytterdører til tilbygg og garasje

Fasader

Enebolig

Nord
Materiale
Tre
Taktype
Saltak
Vinduer
2
Dører
1
Balkonger
1
Synlige etasjer
2
Vest
Materiale
Tre
Taktype
Saltak
Vinduer
3
Dører
1
Balkonger
1
Synlige etasjer
2
Sør
Materiale
Tre
Taktype
Saltak
Vinduer
6
Dører
1
Balkonger
1
Synlige etasjer
2
Øst
Materiale
Tre
Taktype
Saltak
Vinduer
1
Dører
0
Balkonger
1
Synlige etasjer
2

Hendelser

22.04.2026 Søknad om tillatelse til tiltak gbnr. 65/303 - Tilbygg