Extension Soeknad Enebolig

Tilbygg til enebolig i Flakstadveien 23, Flakstad

๐Ÿ“ Flakstadveien 23 , 8382 NAPP

Nรธkkelinfo

Sakstype
Tilbygg
Bygningstype
Enebolig
Bruksareal
85 mยฒ
Boenheter
1
Kommune
Flakstad
Fylke
Nordland - Nordlánnda
Gnr / Bnr
37 / 241
Saksnummer
26/89
Fase
Søknad

Om byggesaken

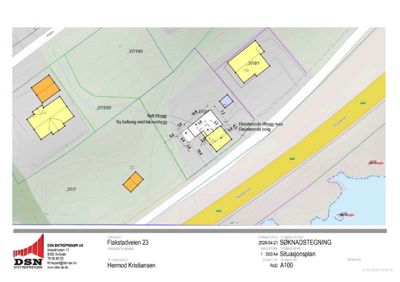
Ny enetasjes tilbygg på 85 m² til eksisterende enebolig i Flakstadveien 23, Flakstad. Tilbygget inneholder soverom, bad og entre, og har takterrasse over. Et eksisterende tilbygg på baksiden av huset på 17 m² rives for å gi plass til det nye tilbygget. Bygget får ny balkong med takoverbygg. Tilbygget bygges med mur- og tømrerarbeider inkludert taktekking, og tilknyttes offentlig vann og avløp. Grunnarbeider, sanitærinstallasjoner og uavhengig kontroll av våtrom er planlagt og organisert med ansvarlige foretak.

Produkter og materialer

VVS Vann og avløp tilknytning

Tilknytning til offentlig vann og avløp

Vann- og avløpsinstallasjoner for tilbygget

Gulv Innvendige gulv

Ikke spesifisert, men nødvendig for soverom, bad og entre

Gulvbelegg i tilbygget, inkludert våtromsgulv

Tak Takterrasse og taktekking

Takterrasse over tilbygget, taktekking utført av DSN Entreprenør AS

Takterrasse på tilbygget med nødvendig taktekking

Sanitærinstallasjoner Bad og sanitærinstallasjoner

Utføres av Lofoten Rørleggerservice AS, tiltaksklasse 1

Sanitærinstallasjoner for bad i tilbygget

Bad Bad med våtromsstandard

Uavhengig kontroll av våtrom av Lofottakst AS

Bad med sanitærinstallasjoner og våtromsstandard

Elektro Elektriske installasjoner

Ingen spesifikke detaljer, men vanlig for tilbygg

Elektriske installasjoner i tilbygget

Mur Murarbeider for tilbygg

Utføres av DSN Entreprenør AS, inkludert taktekking

Murarbeider i tilbygget, inkludert taktekking

Fasade Fasadeendringer og ny balkong med takoverbygg

Nytt tilbygg med balkong og takoverbygg

Fasadeendringer med ny balkong og takoverbygg over balkong

Grunnarbeid Grunnarbeider for tilbygg

Ansvarlig foretak Rasmussen Anlegg AS, tiltaksklasse 1

Grunnarbeider for fundamentering og grunnarbeid til tilbygget

Tømrer Tømrerarbeider for tilbygg

Utføres av DSN Entreprenør AS

Tømrerarbeider i tilbygget, inkludert vegger, tak og innvendige arbeider

Hendelser

21.04.2026 Søknad om tillatelse i ett trinn 37/241
18.03.2026 Nabovarsel for til FLAKSTAD KOMMUNE (863320852) - alle vedlegg
11.03.2026 Nabovarsel - Tilbygg til enebolig - gnr. 37 bnr. 241 - Flakstad kommune