Extension UnderBehandling Enebolig

Tilbygg og fasadeendring på enebolig i Fredensborgveien 100A, Bodø

📍 Fredensborgveien 100A , 8005 BODØ

Nøkkelinfo

Sakstype
Tilbygg
Bygningstype
Enebolig
Bruksareal
6 m²
Boenheter
1
Kommune
Bodø
Fylke
Nordland - Nordlánnda
Gnr / Bnr
2025 / 8174
Saksnummer
2026/651
Fase
Under behandling

Om byggesaken

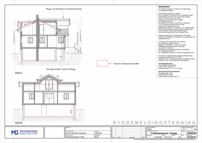
Ny to-etasjes tilbygg på eksisterende enebolig i Fredensborgveien 100A med et samlet areal på ca. 6 m² BYA. Tilbygget omfatter en utvidelse av inngangspartiet i første etasje og en overbygd balkong i andre etasje. Mønehøyden på tilbygget er 7,2 meter, lik eksisterende bolig, med gesimshøyde på 6,2 meter. En mindre del av kjelleren under tilbygget utgraves, uten boareal. Fasaden får stående trepanel, saltak med takvinkel 27°, og nye vinduer og dører tilpasses eksisterende stil. Det planlegges også stålrekkverk på eksisterende trapp og endringer i vindusomramming. Prosjektet inkluderer dispensasjonssøknad for avstand til nabogrense på 3,1 meter, noe som er 10 cm nærmere enn dagens situasjon og under kravet på 4 meter. Nabomerknader er mottatt og kommentert, og det pågår dialog om tilpasninger.

Produkter og materialer

Ventilasjon

Ventilasjonsanlegg med avtrekks- og tilluftsventiler

Ventilasjon i tilbygget

Grunnarbeid Utgraving kjeller

Utgraving av mindre del av kjeller under tilbygget, ikke boareal

Grunnarbeid for fundamentering av tilbygget

Dører Ytterdør

Antall: 1

Dør i utvidet inngangsparti

Ny ytterdør i tilbygget inngangsparti

Tømrer Oppføring av tilbygg

Oppføring av tilbygg over to etasjer inkludert utvidelse av inngangsparti og balkong

Tømrerarbeid for bygging av tilbygget

Tak Saltak med takvinkel 27°

🧱 Takstein eller tilsvarende

Saltak med mønehøyde 7,2 m, gesimshøyde 6,2 m, takvinkel 27°

Tak på tilbygget med saltak som matcher eksisterende bolig

Rekkverk Stålrekkverk

🧱 Stål

Stålrekkverk på eksisterende trapp og eventuelt balkong

Sikring og estetisk rekkverk i tilknytning til trapp og balkong

Isolasjon

Isolasjon iht. energidokumentasjon og TEK17 krav

Isolasjon i vegger, tak og gulv i tilbygget

Vinduer Fasadevindu

Antall: 3

Vinduer med barnesikring over 3,3 m over terreng, tilpasset eksisterende stil

Nye fasadevinduer i tilbygget

Fasade Stående trepanel

🧱 Tre

Stående panel som eksisterende bolig

Kledning av tilbygget i stående trepanel for å matche eksisterende fasade

Balkong Overbygd balkong

🧱 Tre og stålrekkverk

Antall: 1

Overbygd balkong med takutstikk over inngangsparti, stålrekkverk på eksisterende trapp

Takoverbygd balkong i andre etasje over inngangsparti

Elektro

Plassering av avtrekks- og tilluftsventiler, kombiboks iht. ventilasjonsleverandør

Elektroinstallasjoner for ventilasjon og belysning i tilbygget

Maling

Maling av utvendig kledning og detaljer

Overflatebehandling av fasade og detaljer

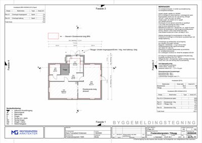
Plantegning

Enebolig 207.2 m²

Etasje 0 63.7 m²

Rom Areal Vinduer Dører
Vaskerom VASK 7.1 m² 0 1
Gang GANG 2.0 m² 0 2
Bod BOD 5.6 m² 0 1
Bod BOD 15.0 m² 0 1
Bod BOD 19.0 m² 0 1
Bod BOD 15.0 m² 0 1

Etasje 1 73.9 m²

Rom Areal Vinduer Dører
Kjøkken KJØK 20.6 m² 1 1
Stue STUE 29.1 m² 2 1
Gang GANG 3.9 m² 0 2
Hall HALL 7.2 m² 0 2
Vaskerom V.F. 4.9 m² 0 1
Entré 101 10.4 m² 0 1
Gang 102 9.8 m² 0 2
Bad 103 4.6 m² 0 1
Kjøkken 104 19.9 m² 1 1
Stue 105 28.2 m² 2 1

Etasje 2 69.6 m²

Rom Areal Vinduer Dører
Bad BAD 8.1 m² 0 1
Soverom SOV 12.9 m² 1 1
Soverom SOV 12.3 m² 1 1
Soverom SOV 12.9 m² 1 1
Hall/Loftstue HALL/LOFTSTUE 24.1 m² 0 2

Fasader

Enebolig

Ukjent
Materiale
Tre
Taktype
Saltak
Høyde
6.2 m
Vinduer
3
Dører
0
Synlige etasjer
2

Eksisterende bolig

1
Vinduer
0
Dører
0
Synlige etasjer
0
2
Vinduer
0
Dører
0
Synlige etasjer
0
3
Vinduer
0
Dører
0
Synlige etasjer
0
4
Vinduer
0
Dører
0
Synlige etasjer
0

Eksisterende bygning

Ukjent
Materiale
Tre
Taktype
Saltak
Vinduer
3
Dører
1
Synlige etasjer
1

Hendelser

09.04.2026 Etterspør status i sak
18.02.2026 Tilsvar foreløpig svar - ber om utsatt frist til 17.03.2026
28.01.2026 Foreløpig svar - behov for tilleggsdokumentasjon
22.01.2026 Bekreftelse på mottatt søknad - Fredensborgveien 100A
06.01.2026 Ett-trinns søknad - Fredensborgveien 100A