Facade
Fasadetegning som viser bygningens utseende fra siden, inkludert vinduer, takform og mål.
1 / 4
Extension
Ferdigattest
Enebolig
Tilbygg med bad, vaskerom og soverom i Frøvikveien 307
📍 Frøvikveien 307 , 7994 LEKA
Nøkkelinfo
- Sakstype
- Tilbygg
- Bygningstype
- Enebolig
- Bruksareal
- 45 m²
- Boenheter
- 1
- Kommune
- Leka
- Fylke
- Trøndelag - Trööndelage
- Gnr / Bnr
- 8 / 29
- Saksnummer
- 2025/111
- Fase
- Ferdigattest
Om byggesaken
Ny tilbygg på 45 m² til enebolig i Frøvikveien 307 med livsløpsstandard som inkluderer bad (11,9 m²), vaskerom (12,2 m²), soverom (13,5 m²) og gang (9,1 m²). Tilbygget er oppført i samme stil som eksisterende bolig med trekledning og saltak/pulttak. Bygget har totalt 2 vinduer i vaskerom og soverom, samt flere dører. Arealet er isolert og kledd med ny bordkledning. Bygget er godkjent og ferdigstilt med tilhørende sluttdokumentasjon og ferdigattest.
Produkter og materialer
Dører
Innvendige dører
Antall: 5
Dører til bad, vaskerom, soverom og gang
Gulv
Gulvbelegg
Gulvbelegg i bad, vaskerom, soverom og gang
Tak
Saltak og pulttak
Saltak på østfasade, pulttak på nordfasade
Taktype for tilbygget
Fasade
Trekledning
🧱 tre
Ny bordkledning på hele tilbygget og isolering
Utvendig trekledning og isolasjon for tilbygget
Isolasjon
Vegger og tak
Isolering av hele tilbygget
Isolasjon for vegger og tak i tilbygget
Bad
Sanitærutstyr og fliser
Innredning og overflater for bad på 11,9 m²
VVS
Vann og avløp til bad og vaskerom
VVS-installasjoner for bad og vaskerom
Grunnarbeid
Fundamentering og grunnmur
Grunnarbeid for tilbyggets fundamentering
Tømrer
Rammeverk og konstruksjon
🧱 tre
Tømrerarbeid for reisverk og konstruksjon av tilbygget
Vinduer
Vanlige fasadevindu
Antall: 2
Vinduer i vaskerom og soverom
Elektro
Elektrisk anlegg
Elektrisk installasjon i tilbygget
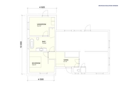
Plantegning
Enebolig 46.7 m²
Etasje 1 46.7 m²
| Rom | Areal | Vinduer | Dører |
|---|---|---|---|
| Vaskerom 101 | 12.2 m² | 1 | 1 |
| Bad 102 | 11.9 m² | 0 | 1 |
| Soverom 103 | 13.5 m² | 1 | 1 |
| Gang 104 | 9.1 m² | 0 | 2 |
Fasader
Enebolig
Øst
- Materiale
- Tre
- Taktype
- Saltak
- Høyde
- 4.0 m
- Vinduer
- 4
- Dører
- 0
- Synlige etasjer
- 2
Nord
- Materiale
- Tre
- Taktype
- Pulttak
- Høyde
- 3.9 m
- Vinduer
- 4
- Dører
- 1
- Synlige etasjer
- 1
Hendelser
21.04.2026
8/29 - Oddmund Engan Haug - Ferdigattest tilbygg bolig
21.04.2026
8/29 - Oddmund Engan Haug - Ferdigattest tilbygg bolig - 8/29
20.04.2026
Oddmund Engan Haug - Frøvikveien 307 Søknad om ferdigattest 8/29
13.03.2025
Oddmund Engan Haug - Frøvikveien 307 - Tillatelse til tiltak uten ansvarsrett 8/29 - Tilbygg bolig
10.03.2025
8/29 - Trine Olsen - Nabovarsel tilbygg bolig
06.03.2025
Oddmund Engan Haug - Frøvikveien 307 - Søknad om tillatelse til tiltak uten ansvarsrett 8/29 - Tilbygg bolig