Extension Soeknad Enebolig

Tilbygg og ombygging av enebolig i Furuveien 19, Narvik

📍 Furuveien 19 , 8517 NARVIK

Nøkkelinfo

Sakstype
Tilbygg
Bygningstype
Enebolig
Bruksareal
120 m²
Boenheter
1
Kommune
Narvik
Fylke
Nordland - Nordlánnda
Gnr / Bnr
39 / 1875
Saksnummer
26/1295
Fase
Søknad

Om byggesaken

Ny tilbygg på ca. 33 m² til eksisterende enebolig i Furuveien 19, med ombygging av carport/biloppstillingsplass. Tilbygget inneholder nye rom som soverom, vaskerom, bod og gang, samt endring av inngangsparti. Bygget har saltak og trekledning, med to etasjer og flere fasadevinduer og dører. Totalt areal etter tiltaket er ca. 120,5 m². Fasaden består av tre med saltak, og det er etablert nye vinduer og dører i tilbygget. Prosjektet inkluderer også endringer i fasade og snitt som tilpasses eksisterende bebyggelse.

Produkter og materialer

Tak Saltak

🧱 Takstein eller tilsvarende

Saltak på tilbygget og eksisterende bygg

Taktekking med saltak for tilbygget

Gulv Innvendige gulv

Gulv i nye rom som soverom, vaskerom, bod og gang

Vinduer Fasadevindu

Antall: 6

Nye vinduer i tilbygget og fasadeendringer

Fasadevinduer i tilbygget og ombygde fasader

Grunnarbeid Fundamentering og grunnmur

Grunnarbeid for nytt tilbygg og fundamentering

Fasade Trekledning

🧱 Tre

Trekledning på fasader med saltak

Fasadebekledning i tre for tilbygget og ombygde deler

Elektro Elektriske installasjoner

Elektriske installasjoner i tilbygget og ombygde deler

VVS Vaskerom og sanitærinstallasjoner

VVS-installasjoner for vaskerom og bad

Tømrer Tilbygg og ombygging

Tømrerarbeid for oppføring av tilbygg og ombygging av eksisterende carport og bolig

Bad Badromsinnredning

Antall: 1

Innredning og overflater for bad på 8,4 m²

Dører Ytterdører og balkongdører

Antall: 3

Dører i tilbygget, inkludert balkongdør

Ytterdører og balkongdør til tilbygget

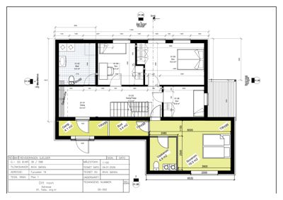
Plantegning

Enebolig 120.5 m²

Etasje 1 120.5 m²

Rom Areal Vinduer Dører
Gang 01.01 6.4 m² 0 2
Bad 01.02 8.4 m² 0 1
Gang/Trapp 01.03 11.0 m² 0 1
Sov 01.04 9.4 m² 0 1
Sov 01.05 14.5 m² 1 1
Sov 01.06 6.8 m² 0 1
Gang Gang 4.1 m² 0 1
Bod Bod 3.4 m² 0 1
Vaskerom Vaskerom 4.9 m² 0 1
Soverom Soverom 19.5 m² 0 1

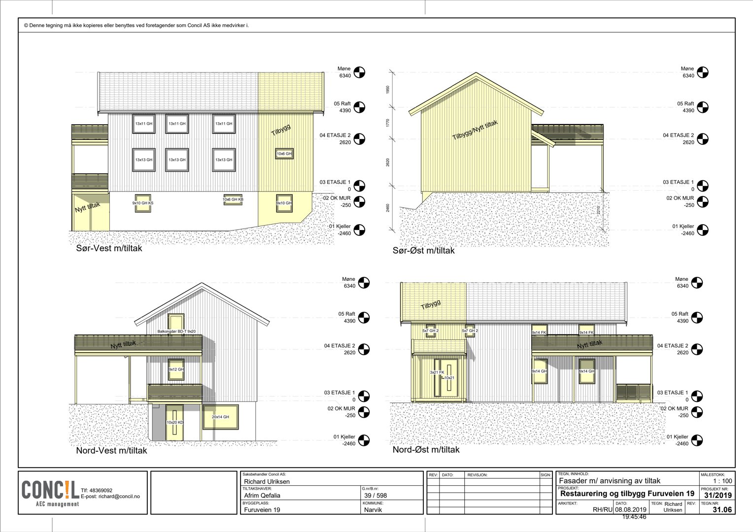
Fasader

Enebolig

Sør-Vest
Materiale
Tre
Taktype
Saltak
Høyde
6.5 m
Mønehøyde
8.2 m
Vinduer
6
Dører
1
Balkonger
1
Synlige etasjer
2
Sør-Øst
Materiale
Tre
Taktype
Saltak
Høyde
6.5 m
Mønehøyde
8.2 m
Vinduer
1
Dører
1
Synlige etasjer
2
Nord-Vest
Materiale
Tre
Taktype
Saltak
Høyde
6.5 m
Mønehøyde
8.2 m
Vinduer
2
Dører
1
Balkonger
1
Synlige etasjer
2
Nord-Øst
Materiale
Tre
Taktype
Saltak
Høyde
6.5 m
Mønehøyde
8.2 m
Vinduer
4
Dører
1
Synlige etasjer
2
Nord
Materiale
Tre
Taktype
Saltak
Høyde
5.9 m
Mønehøyde
8.3 m
Vinduer
6
Dører
1
Balkonger
1
Synlige etasjer
2
Sør
Materiale
Tre
Taktype
Saltak
Høyde
5.9 m
Mønehøyde
8.3 m
Vinduer
2
Dører
1
Synlige etasjer
2
Vest
Materiale
Tre
Taktype
Saltak
Høyde
5.9 m
Mønehøyde
8.3 m
Vinduer
4
Dører
0
Balkonger
1
Synlige etasjer
2
Øst
Materiale
Tre
Taktype
Saltak
Høyde
5.9 m
Mønehøyde
8.3 m
Vinduer
3
Dører
0
Balkonger
1
Synlige etasjer
2

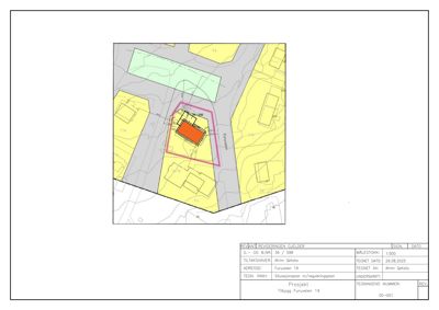
Hendelser

14.04.2026 Søknad om dispensasjon for byggegrense langs offentlig vei gbnr. 39/598, Furuveien 19