Extension UnderBehandling Enebolig

Tilbygg og ny boenhet i enebolig, Gamle Riksvei 263

📍 Gamle Riksvei 263 , 3055 KROKSTADELVA

Nøkkelinfo

Sakstype
Tilbygg
Bygningstype
Enebolig
Bruksareal
234 m²
Boenheter
2
Kommune
Drammen
Fylke
Buskerud
Gnr / Bnr
240 / 6
Saksnummer
24/21413
Fase
Under behandling

Om byggesaken

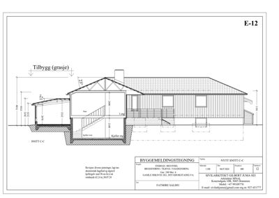
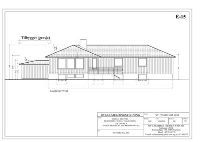
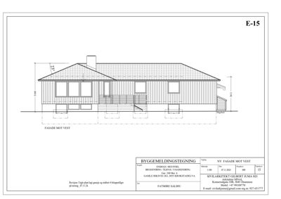
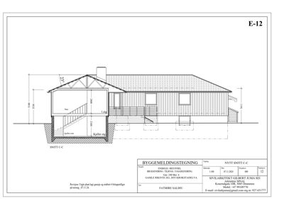
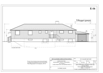
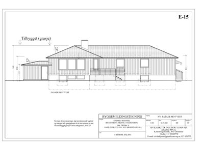
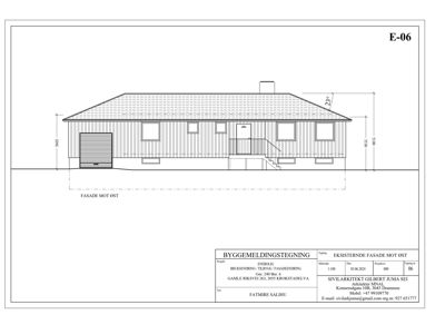
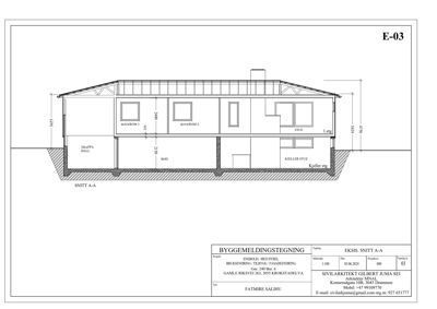
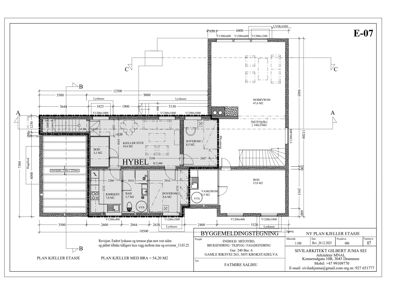
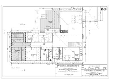
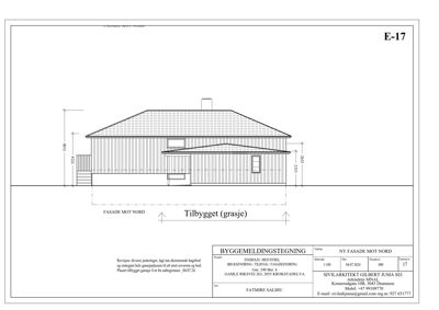
Prosjektet omfatter ombygging, tilbygg og bruksendring av en eksisterende enebolig på Gamle Riksvei 263, Drammen. Det bygges en ny boenhet (hybel) i kjelleretasjen med et bruksareal på ca. 49,5 m², inkludert 2 soverom, kjøkken, bad, bod og kjellerstue. Kjelleretasjen får økt romhøyde til 2,4 meter. Eksisterende garasje i første etasje ombygges til soverom og bod, og det etableres et tilbygg med garasje på ca. 23,6 m². Fasadeendringer inkluderer nye og endrede vinduer med lyskasser, samt endring av garasjeport til vindu. Det er etablert ny trapp mellom første etasje og kjeller. Utearealet er på ca. 841,5 m² med krav til parkeringsplasser og uteoppholdsareal. Tiltaket krever sikring mot flom og kvikkleire, og det foreligger geotekniske vurderinger og flomnotat. Det er også gjennomført støyvurdering og nabovarsling. Bygningen har saltak og trekledning, med gesimshøyde ca. 3,5-3,6 m og mønehøyde ca. 5,0-5,1 m. Totalt areal for eneboligen er ca. 234,5 m², og garasjen er på 23,6 m².

Produkter og materialer

Rekkverk Terrasserekkverk

🧱 Tre

Rekkverk på terrasse og lyskasser

Sikkerhetsrekkverk på utearealer

Gulv Parkett og fliser

🧱 Eikeparkett og fliser

Gulv i oppholdsrom og våtrom med eikeparkett og fliser

Innvendige gulvflater i bolig og hybel

Annet Støytiltak

Lydisolerte vinduer med dobbel lag glass, støyrapport og tiltak i henhold til støykrav

Støytiltak for å tilfredsstille krav i gul støysone

Vinduer Lyskassevinduer og fasadevinduer

🧱 Tre/aluminium med 3-lags energiglass

Antall: 14

Lyskassevinduer 1,2m x 1,2m, lydisolerte vinduer i kjeller og første etasje

Nye og endrede vinduer med lyskasser for bedre lysforhold og lydisolasjon

Tak Saltak

🧱 Tretak med takstein

Eksisterende saltak opprettholdes, tak over inngangsparti til sekundær boenhet

Takstruktur for bolig og tilbygg

VVS Avløp med tilbakeslagssikring

Avløp og vannforsyning med tilbakeslagssikring mot flom

Teknisk installasjon for vann og avløp med sikring mot tilbakeslag

Bad Bad i hybel og hovedbolig

Antall: 2

Bad med sanitærutstyr i kjellerhybel og hovedbolig

Bad med nødvendige overflater og installasjoner

Terrasse Terrasse på terreng

🧱 Tre

Antall: 1

Eksisterende terrasse 20-28 m², 0,8 m over terreng, med rekkverk

Uteoppholdsareal tilknyttet bolig

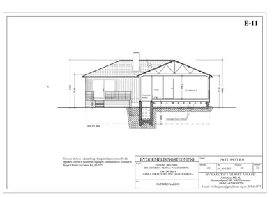
Trapper Innvendig trapp mellom etasjer

🧱 Tre/stål

Antall: 1

Ny trapp fra første etasje til kjellerhybel

Trapp for intern adkomst mellom boenheter

Elektro Belysning og elektriske installasjoner

Elektriske installasjoner i ny boenhet og tilbygg

El-installasjoner for bolig og hybel

Grunnarbeid Grunnundersøkelser og fundamentering

Grunnundersøkelser for kvikkleire og flomfare, fundamentering tilpasset grunnforhold

Sikring av byggegrunn mot kvikkleire og flom

Garasjeport Garasjeport erstattet med vindu

🧱 Tre/kompositt

Antall: 1

Garasjeport i første etasje omgjort til vindu

Endring av garasje til boligrom

Dører Ytterdører og branndører

🧱 Tre/kompositt

Antall: 10

Branndører REI-30 mellom hybel og resten av kjeller, inngangsdører til hybel og bolig

Dører for adkomst og brannsikring mellom boenheter

Fasade Trekledning

🧱 Tre

Fasadeendringer med ny trekledning og endrede vinduer

Fasadeoppgradering og endring av fasadeuttrykk

Betong Vanntett kjellerkonstruksjon

🧱 Vanntett betong

Vanntett konstruksjon i kjeller for å hindre fuktinntrengning ved flom

Kjellervegger og gulv med vanntett betong og membran

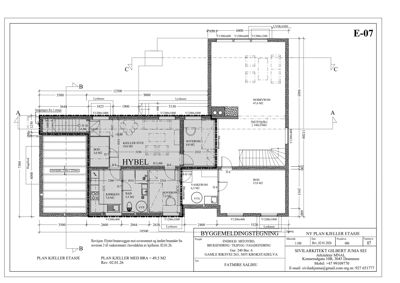
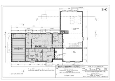
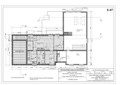
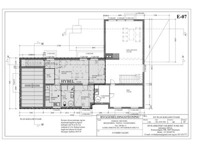
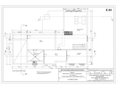
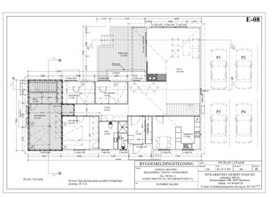
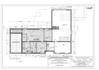
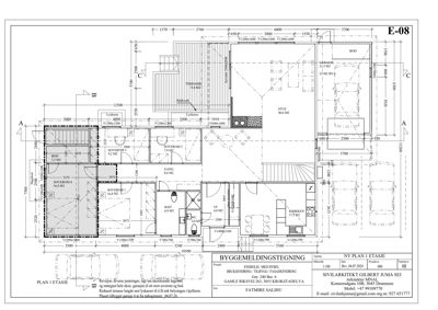
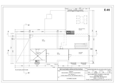
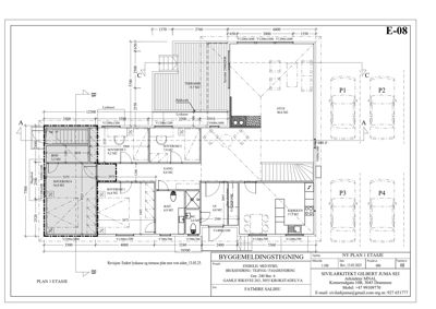
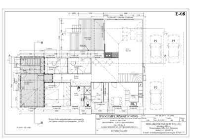
Plantegning

Enebolig 234.5 m²

Etasje 0 49.5 m²

Rom Areal Vinduer Dører
Kjeller stue 001 19.0 m² 1 2
Kjøkken 002 7.0 m² 0 1
Bad 003 5.3 m² 0 1
Soverom 004 7.2 m² 0 1
Bod 005 3.0 m² 0 1
Vaskerom 006 6.5 m² 0 1
Hugebod 007 15.8 m² 0 1
Bod 008 15.8 m² 1 1
Kjeller stue 009 52.6 m² 3 1
Hybel 010 19.4 m² 2 1

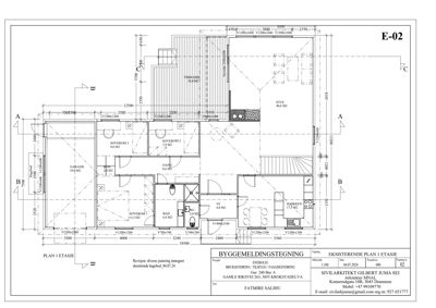
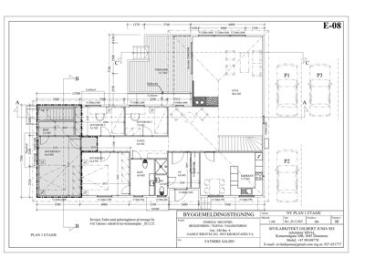
Etasje 1 185.0 m²

Rom Areal Vinduer Dører
Stue 101 40.6 m² 3 1
Kjøkken 102 17.5 m² 2 1
Gang 103 8.6 m² 0 3
Soverom 1 104 16.8 m² 1 1
Soverom 2 105 7.9 m² 1 1
Soverom 3 106 9.2 m² 1 1
Soverom 4 107 16.4 m² 1 1
Bad 108 6.9 m² 0 1
WC 109 2.0 m² 0 1
Vaskerom 110 4.0 m² 1 1
Garderobe 111 0.0 m² 0 1
Bod 112 3.2 m² 0 1
Teknisk rom 113 0.0 m² 0 1

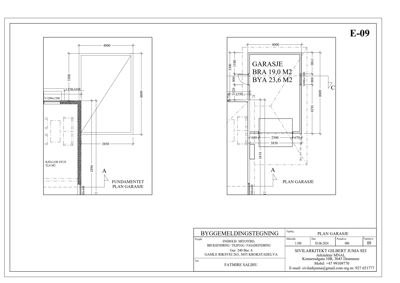
Garasje 23.6 m²

Etasje 1 23.6 m²

Rom Areal Vinduer Dører
Garasje U01 23.6 m² 0 1

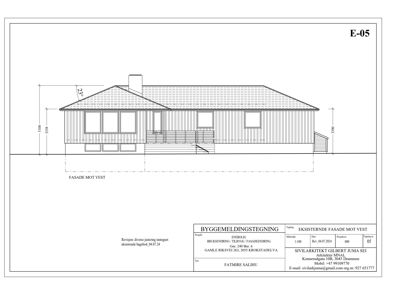
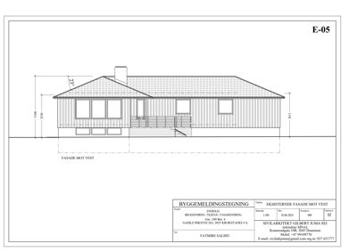
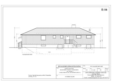
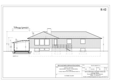
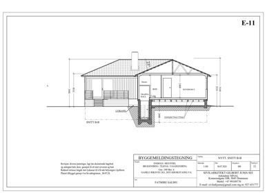
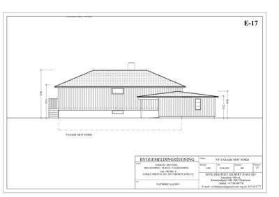
Fasader

Enebolig

Vest
Materiale
Tre
Taktype
Saltak
Høyde
3.6 m
Mønehøyde
5.1 m
Vinduer
5
Dører
1
Balkonger
1
Synlige etasjer
1
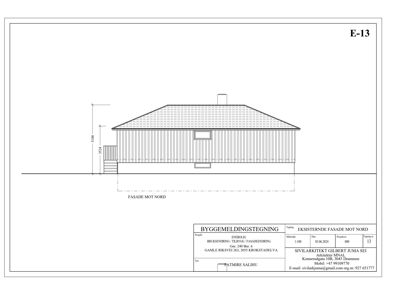
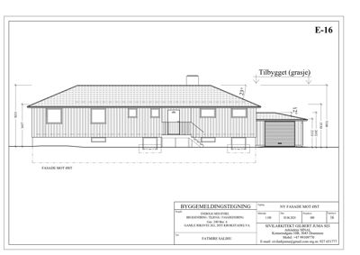
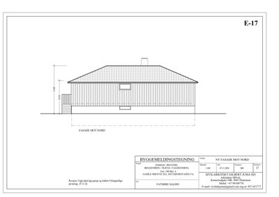
Nord
Materiale
Tre
Taktype
Saltak
Høyde
3.5 m
Mønehøyde
5.1 m
Vinduer
1
Dører
1
Synlige etasjer
1
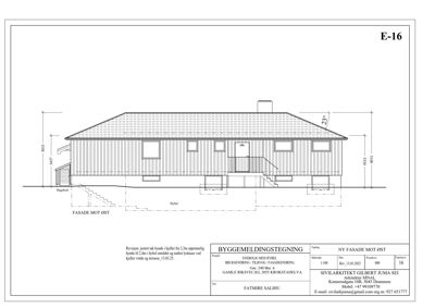
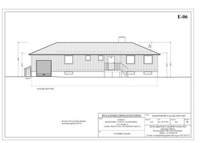
Øst
Materiale
Tre
Taktype
Saltak
Høyde
3.5 m
Mønehøyde
5.0 m
Vinduer
5
Dører
1
Synlige etasjer
1
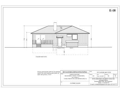
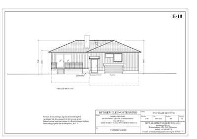
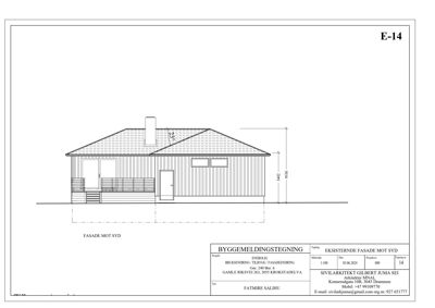
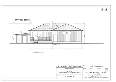
Sør
Materiale
Tre
Taktype
Saltak
Høyde
3.5 m
Mønehøyde
5.1 m
Vinduer
3
Dører
2
Balkonger
1
Synlige etasjer
1

Hovedbygg

Ukjent
Materiale
Tre
Taktype
Saltak
Høyde
5.1 m
Vinduer
5
Dører
1
Balkonger
1
Synlige etasjer
1

Hendelser

09.04.2026 Gamle Riksvei 263, vedrørende utsatt frist
09.04.2026 Gamle Riksvei 263, ber om utsatt frist innsending av dokumentasjon
18.03.2026 Gamle Riksvei 263, vi trenger flere opplysninger for å behandle søknaden din
11.02.2026 Gamle Riksvei 263, redegjørelse for aktsomhetsområde
05.01.2026 Gamle Riksvei 263, erstatning av e-post 27.12.2025. vedlagt reviderte tegninger, situasjonskart og følgebrev
29.12.2025 Gamle Riksvei 263, tegninger og følgebrev
17.10.2025 Gamle Riksvei 263, fristutsettelse
10.09.2025 Gamle Riksvei 263, fristutsettelse
14.08.2025 Gamle Riksvei 263, ber om forlengelse av frist
16.07.2025 Gamle Riksvei 263, fristutsettelse og informasjon om ny kommuneplan
07.07.2025 Gamle Riksvei 263, anmodning om utsettelse av frist
11.06.2025 Gamle Riksvei 263, vi trenger flere opplysninger for å behandle søknaden din
12.05.2025 Gamle Riksvei 263, tilleggsopplysninger til søknad om bruksendring og etablering av ny boenhet
09.04.2025 Gamle Riksvei 263, vi trenger flere opplysninger for å behandle søknaden din
21.03.2025 Gamle Riksvei 263 - Avkjørselstillatelse for 240/6
20.03.2025 Gamle Riksvei 263, Kopi: Avkjørselstillatelse
19.03.2025 Gamle Riksvei 263, supplerende dokumentasjon - svar på mangelbrev
19.02.2025 Gamle Riksvei 263, Tilbakemelding om mangler i søknad
19.02.2025 Gamle Riksvei 263, fristutsettelse for søknad
10.02.2025 Gamle Riksvei 263, ekstra opplysninger og bilder
06.02.2025 Gamle Riksvei 263, vi vurderer å avslå søknaden din
17.01.2025 Gamle Riksvei 263, Redegjørelse for støy
06.01.2025 Gamle Riksvei 263, fristutsettelse for søknad
30.12.2024 Gamle Riksvei 263, ber om ny fristutsettelse
18.12.2024 Gamle Riksvei 263, spørsmål
25.11.2024 Gamle Riksvei 263, etterspurt dokumentasjon
31.10.2024 Gamle Riksvei 263, fristutsettelse for søknad
28.10.2024 Gamle Riksvei 263, Ber om forlengelse av frist
04.10.2024 Gamle Riksvei 263, fristutsettelse for søknad
04.10.2024 Gamle Riksvei 263, forespørsel om utsettelse av frist
30.08.2024 Gamle Riksvei 263, vi trenger flere opplysninger for å behandle søknaden din
09.07.2024 Gamle Riksvei 263, ettersendt dokumentasjon til søknad
13.06.2024 Gamle Riksvei 263, vi trenger flere opplysninger for å behandle søknaden din
05.06.2024 Gamle Riksvei 263, melding om mottatt søknad
03.06.2024 Gamle Riksvei 263, byggesøknad, tilbygg og bruksendring