Extension Ferdigattest Enebolig

Tilbygg og omlegging av avløpsledning på enebolig, Gårdsveien 98

📍 Gårdsveien 98 , 8481 BLEIK

Nøkkelinfo

Sakstype
Tilbygg
Bygningstype
Enebolig
Bruksareal
187 m²
Boenheter
1
Kommune
Andøy
Fylke
Nordland - Nordlánnda
Gnr / Bnr
39 / 331
Saksnummer
2023/4061
Fase
Ferdigattest

Om byggesaken

Ny tilbygg på cirka 50 m² til eksisterende enebolig på Gårdsveien 98, Bleik, med ombygging og fasadeendringer. Tilbygget har saltak og er utført i tre, med justerte vindusstørrelser for å tilpasse bygningen til det bevaringsverdige bygningsmiljøet i området. Prosjektet inkluderer også omlegging av privat avløpsledning gjennom kjeller i tilbygget, med ny trase og forsterkning rundt rørene. Bygget har to etasjer pluss kjeller, med totalt ca. 187 m² BRA. Det er to balkonger, ett trapperom og flere boder i kjeller. Vinduer og dører er tilpasset kulturminnefaglige krav, med blant annet nedjusterte vindusstørrelser på nord- og østfasade. Prosjektet er ferdig prosjektert, utført og søker om ferdigattest.

Produkter og materialer

Vinduer Fasadevindu

🧱 Tre med vertikal og horisontal sprosse

Antall: 19

Vinduer med justerte størrelser i nord- og østfasade for kulturminnetilpasning, inkludert store panoramavinduer med brystningshøyde tilpasset etter fylkeskommunens anbefalinger

Fasadevinduer i tre med tilpasning til bevaringsområde, inkludert nedjustering av vindusstørrelser og opprettholdelse av høyde i 1. etasje nordfasade

Tak Saltak

🧱 Tre med taktekking ikke spesifisert

Antall: 1

Saltak på tilbygg og eksisterende bolig, i tre

Saltak som takform på tilbygg og eksisterende bolig

Sanitær/VVS Avløpsledning og sanitærinstallasjoner

🧱 Plastrør for avløp

Omlegging av privat avløpsledning med nytt plastrør, stakeluke i kjeller, utført av Nilsson Haras AS

Sanitærinstallasjoner og omlegging av avløpsledning gjennom kjeller i tilbygg

Grunnarbeid Graving og fundamentering

Gravearbeider for tilbygg og omlegging av avløpsledning, inkludert forsterkning rundt nye rør i kjeller

Grunnarbeider for tilbygg og omlegging av avløpsledning med ny trase gjennom kjeller

Gulv Innvendige gulv

Gulv i tilbygg og eksisterende bolig, ikke detaljert spesifisert

Innvendige gulv i tilbygg og ombygget bolig

Trapper Innvendig trapp

Antall: 1

Innvendig trapp mellom etasjer i bolig

Trapp i bolig mellom etasjer

Maling Utvendig og innvendig maling

Maling av trefasader og innvendige overflater, ikke detaljert spesifisert

Maling av fasader og innvendige flater i tilbygg og bolig

Bad Våtromsinnredning

Antall: 2

Bad i 1. og 2. etasje, med våtromsinnredning og sanitærutstyr

Bad og vaskerom i tilbygg og eksisterende bolig

Dører Ytterdører

🧱 Tre

Antall: 7

Ytterdører i tre, inkludert balkongdører og inngangsdør i tilbygg og eksisterende bolig

Ytterdører i tre tilpasset fasade og funksjon, inkludert balkongdører

Betong Fundament og kjellervegger

🧱 Betong

Betongarbeider for fundament og kjeller i tilbygg

Betongfundament og kjellervegger i tilbygg

Balkong Balkong med rekkverk

🧱 Tre

Antall: 2

To balkonger i tilbygg/eksisterende bolig, med trerekkverk

Balkonger tilknyttet bolig med rekkverk i tre

Elektro Elektriske installasjoner

Elektriske installasjoner i tilbygg og eksisterende bolig, ikke detaljert spesifisert

Elektroinstallasjoner for nytt tilbygg og ombygging

Tømrer Snekkerarbeid og konstruksjon

🧱 Tre

Tømrerarbeid for tilbygg, inkludert vegger, takstoler og innvendige konstruksjoner

Tømrerarbeid for oppføring av tilbygg og ombygging

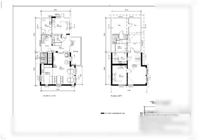
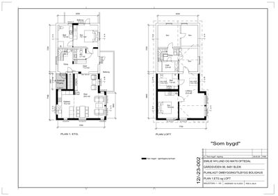
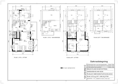
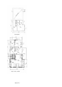
Plantegning

Enebolig 187.1 m²

Etasje 1 120.5 m²

Rom Areal Vinduer Dører
Stue 101 29.5 m² 3 1
Kjøkken 102 10.2 m² 1 1
Gang 103 0.0 m² 0 2
Bad 104 7.8 m² 0 1
WC 105 2.7 m² 0 1
Sov 106 13.1 m² 1 1
Gard 107 11.2 m² 0 1
Balkong 108 0.0 m² 0 1
Balkong 109 0.0 m² 0 1

Etasje 2 66.6 m²

Rom Areal Vinduer Dører
Sov 201 13.0 m² 1 1
Sov 202 0.0 m² 1 1
Sov 203 0.0 m² 1 1
Sov 204 0.0 m² 1 1
Bad/vask 205 11.7 m² 0 1
Gang 206 0.0 m² 0 2
Lofstue 207 23.9 m² 2 1

Etasje 0 0.0 m²

Rom Areal Vinduer Dører
Dispo 001 17.7 m² 1 1
Trapperom 002 4.0 m² 0 0
Bod 003 3.6 m² 0 1
Bod 004 5.3 m² 0 1

Etasje 3 0.0 m²

Rom Areal Vinduer Dører

Etasje 4 0.0 m²

Rom Areal Vinduer Dører

Etasje 5 0.0 m²

Rom Areal Vinduer Dører

Etasje 6 0.0 m²

Rom Areal Vinduer Dører

Etasje 7 0.0 m²

Rom Areal Vinduer Dører

Etasje 8 0.0 m²

Rom Areal Vinduer Dører

Etasje 9 0.0 m²

Rom Areal Vinduer Dører

Etasje 10 0.0 m²

Rom Areal Vinduer Dører

Etasje 11 0.0 m²

Rom Areal Vinduer Dører

Etasje 12 0.0 m²

Rom Areal Vinduer Dører

Etasje 13 0.0 m²

Rom Areal Vinduer Dører

Etasje 14 0.0 m²

Rom Areal Vinduer Dører

Etasje 15 0.0 m²

Rom Areal Vinduer Dører

Etasje 16 0.0 m²

Rom Areal Vinduer Dører

Etasje 17 0.0 m²

Rom Areal Vinduer Dører

Etasje 18 0.0 m²

Rom Areal Vinduer Dører

Etasje 19 0.0 m²

Rom Areal Vinduer Dører

Etasje 20 0.0 m²

Rom Areal Vinduer Dører

Etasje 21 0.0 m²

Rom Areal Vinduer Dører

Etasje 22 0.0 m²

Rom Areal Vinduer Dører

Etasje 23 0.0 m²

Rom Areal Vinduer Dører

Etasje 24 0.0 m²

Rom Areal Vinduer Dører

Etasje 25 0.0 m²

Rom Areal Vinduer Dører

Etasje 26 0.0 m²

Rom Areal Vinduer Dører

Etasje 27 0.0 m²

Rom Areal Vinduer Dører

Etasje 28 0.0 m²

Rom Areal Vinduer Dører

Etasje 29 0.0 m²

Rom Areal Vinduer Dører

Etasje 30 0.0 m²

Rom Areal Vinduer Dører

Etasje 31 0.0 m²

Rom Areal Vinduer Dører

Etasje 32 0.0 m²

Rom Areal Vinduer Dører

Etasje 33 0.0 m²

Rom Areal Vinduer Dører

Etasje 34 0.0 m²

Rom Areal Vinduer Dører

Etasje 35 0.0 m²

Rom Areal Vinduer Dører

Etasje 36 0.0 m²

Rom Areal Vinduer Dører

Etasje 37 0.0 m²

Rom Areal Vinduer Dører

Etasje 38 0.0 m²

Rom Areal Vinduer Dører

Etasje 39 0.0 m²

Rom Areal Vinduer Dører

Etasje 40 0.0 m²

Rom Areal Vinduer Dører

Etasje 41 0.0 m²

Rom Areal Vinduer Dører

Etasje 42 0.0 m²

Rom Areal Vinduer Dører

Etasje 43 0.0 m²

Rom Areal Vinduer Dører

Etasje 44 0.0 m²

Rom Areal Vinduer Dører

Etasje 45 0.0 m²

Rom Areal Vinduer Dører

Etasje 46 0.0 m²

Rom Areal Vinduer Dører

Etasje 47 0.0 m²

Rom Areal Vinduer Dører

Etasje 48 0.0 m²

Rom Areal Vinduer Dører

Etasje 49 0.0 m²

Rom Areal Vinduer Dører

Etasje 50 0.0 m²

Rom Areal Vinduer Dører

Etasje 51 0.0 m²

Rom Areal Vinduer Dører

Etasje 52 0.0 m²

Rom Areal Vinduer Dører

Etasje 53 0.0 m²

Rom Areal Vinduer Dører

Etasje 54 0.0 m²

Rom Areal Vinduer Dører

Etasje 55 0.0 m²

Rom Areal Vinduer Dører

Etasje 56 0.0 m²

Rom Areal Vinduer Dører

Etasje 57 0.0 m²

Rom Areal Vinduer Dører

Etasje 58 0.0 m²

Rom Areal Vinduer Dører

Etasje 59 0.0 m²

Rom Areal Vinduer Dører

Etasje 60 0.0 m²

Rom Areal Vinduer Dører

Etasje 61 0.0 m²

Rom Areal Vinduer Dører

Etasje 62 0.0 m²

Rom Areal Vinduer Dører

Etasje 63 0.0 m²

Rom Areal Vinduer Dører

Etasje 64 0.0 m²

Rom Areal Vinduer Dører

Etasje 65 0.0 m²

Rom Areal Vinduer Dører

Etasje 66 0.0 m²

Rom Areal Vinduer Dører

Etasje 67 0.0 m²

Rom Areal Vinduer Dører

Etasje 68 0.0 m²

Rom Areal Vinduer Dører

Etasje 69 0.0 m²

Rom Areal Vinduer Dører

Etasje 70 0.0 m²

Rom Areal Vinduer Dører

Etasje 71 0.0 m²

Rom Areal Vinduer Dører

Etasje 72 0.0 m²

Rom Areal Vinduer Dører

Etasje 73 0.0 m²

Rom Areal Vinduer Dører

Etasje 74 0.0 m²

Rom Areal Vinduer Dører

Etasje 75 0.0 m²

Rom Areal Vinduer Dører

Etasje 76 0.0 m²

Rom Areal Vinduer Dører

Etasje 77 0.0 m²

Rom Areal Vinduer Dører

Etasje 78 0.0 m²

Rom Areal Vinduer Dører

Etasje 79 0.0 m²

Rom Areal Vinduer Dører

Etasje 80 0.0 m²

Rom Areal Vinduer Dører

Etasje 81 0.0 m²

Rom Areal Vinduer Dører

Etasje 82 0.0 m²

Rom Areal Vinduer Dører

Etasje 83 0.0 m²

Rom Areal Vinduer Dører

Etasje 84 0.0 m²

Rom Areal Vinduer Dører

Etasje 85 0.0 m²

Rom Areal Vinduer Dører

Etasje 86 0.0 m²

Rom Areal Vinduer Dører

Etasje 87 0.0 m²

Rom Areal Vinduer Dører

Etasje 88 0.0 m²

Rom Areal Vinduer Dører

Etasje 89 0.0 m²

Rom Areal Vinduer Dører

Etasje 90 0.0 m²

Rom Areal Vinduer Dører

Etasje 91 0.0 m²

Rom Areal Vinduer Dører

Etasje 92 0.0 m²

Rom Areal Vinduer Dører

Etasje 93 0.0 m²

Rom Areal Vinduer Dører

Etasje 94 0.0 m²

Rom Areal Vinduer Dører

Etasje 95 0.0 m²

Rom Areal Vinduer Dører

Etasje 96 0.0 m²

Rom Areal Vinduer Dører

Etasje 97 0.0 m²

Rom Areal Vinduer Dører

Etasje 98 0.0 m²

Rom Areal Vinduer Dører

Etasje 99 0.0 m²

Rom Areal Vinduer Dører

Etasje 100 0.0 m²

Rom Areal Vinduer Dører

Etasje 101 0.0 m²

Rom Areal Vinduer Dører

Etasje 102 0.0 m²

Rom Areal Vinduer Dører

Etasje 103 0.0 m²

Rom Areal Vinduer Dører

Etasje 104 0.0 m²

Rom Areal Vinduer Dører

Etasje 105 0.0 m²

Rom Areal Vinduer Dører

Etasje 106 0.0 m²

Rom Areal Vinduer Dører

Etasje 107 0.0 m²

Rom Areal Vinduer Dører

Etasje 108 0.0 m²

Rom Areal Vinduer Dører

Etasje 109 0.0 m²

Rom Areal Vinduer Dører

Etasje 110 0.0 m²

Rom Areal Vinduer Dører

Etasje 111 0.0 m²

Rom Areal Vinduer Dører

Etasje 112 0.0 m²

Rom Areal Vinduer Dører

Etasje 113 0.0 m²

Rom Areal Vinduer Dører

Etasje 114 0.0 m²

Rom Areal Vinduer Dører

Etasje 115 0.0 m²

Rom Areal Vinduer Dører

Etasje 116 0.0 m²

Rom Areal Vinduer Dører

Etasje 117 0.0 m²

Rom Areal Vinduer Dører

Etasje 118 0.0 m²

Rom Areal Vinduer Dører

Etasje 119 0.0 m²

Rom Areal Vinduer Dører

Etasje 120 0.0 m²

Rom Areal Vinduer Dører

Etasje 121 0.0 m²

Rom Areal Vinduer Dører

Etasje 122 0.0 m²

Rom Areal Vinduer Dører

Etasje 123 0.0 m²

Rom Areal Vinduer Dører

Etasje 124 0.0 m²

Rom Areal Vinduer Dører

Etasje 125 0.0 m²

Rom Areal Vinduer Dører

Etasje 126 0.0 m²

Rom Areal Vinduer Dører

Etasje 127 0.0 m²

Rom Areal Vinduer Dører

Etasje 128 0.0 m²

Rom Areal Vinduer Dører

Etasje 129 0.0 m²

Rom Areal Vinduer Dører

Etasje 130 0.0 m²

Rom Areal Vinduer Dører

Etasje 131 0.0 m²

Rom Areal Vinduer Dører

Etasje 132 0.0 m²

Rom Areal Vinduer Dører

Etasje 133 0.0 m²

Rom Areal Vinduer Dører

Etasje 134 0.0 m²

Rom Areal Vinduer Dører

Etasje 135 0.0 m²

Rom Areal Vinduer Dører

Etasje 136 0.0 m²

Rom Areal Vinduer Dører

Etasje 137 0.0 m²

Rom Areal Vinduer Dører

Etasje 138 0.0 m²

Rom Areal Vinduer Dører

Etasje 139 0.0 m²

Rom Areal Vinduer Dører

Etasje 140 0.0 m²

Rom Areal Vinduer Dører

Etasje 141 0.0 m²

Rom Areal Vinduer Dører

Etasje 142 0.0 m²

Rom Areal Vinduer Dører

Etasje 143 0.0 m²

Rom Areal Vinduer Dører

Etasje 144 0.0 m²

Rom Areal Vinduer Dører

Etasje 145 0.0 m²

Rom Areal Vinduer Dører

Bolighus 40.7 m²

Etasje 0 40.7 m²

Rom Areal Vinduer Dører
Trapperom 001 4.2 m² 0 1
Bod 002 3.6 m² 0 1
Bod 003 5.3 m² 0 1
Disp. 004 17.7 m² 0 0

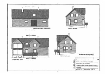
Fasader

Enebolig

Nord
Materiale
Tre
Taktype
Saltak
Vinduer
6
Dører
0
Balkonger
1
Synlige etasjer
2
Sør
Materiale
Tre
Taktype
Saltak
Vinduer
3
Dører
1
Synlige etasjer
2
Øst
Materiale
Tre
Taktype
Saltak
Vinduer
4
Dører
0
Balkonger
1
Synlige etasjer
2
Vest
Materiale
Tre
Taktype
Saltak
Vinduer
4
Dører
0
Balkonger
1
Synlige etasjer
2

Hendelser

20.04.2026 Søknad ferdigattest - purring
19.03.2026 Melding om mottatt søknad
02.03.2026 Søknad om ferdigattest
19.09.2025 Gnr 39 bnr 331 - Gårdsveien 98 - Igangsettingstillatelse - Tilbygg
18.09.2025 Gårdsveien 98, Bleik - reviderte tegninger
10.09.2025 Uttalelse - Ettersendte fasadetegninger med justerte vindusstørrelser - Gnr 39 bnr 331 - Gårdsveien 98
02.09.2025 Uttalelse - Reviderte fasadetegninger til tilbygg - gnr 39 bnr 331
01.09.2025 Gnr 39 bnr 331 - Gårdsveien 98 - Høringsbrev - Ettersendte fasadeteninger med justerte vindusstørrelser
28.08.2025 Gårdsveien 98, Bleik - Ettersendte fasadetegninger etter nedjustering av vindusstørrelser
22.08.2025 Gnr 39 bnr 331 - Gårdsveien 98 - Tilbygg - Forhåndsvarsel om avslag og anmodning om omprosjektering
01.08.2025 Gnr 39 bnr 331 - Gårdsveien 98 - Endring av gitt tillatelse - Omlegging av avløpsledning
29.07.2025 Gnr. 39 bnr 331, Gårdsveien 98, Bleik - Søknad om endring av gitt tillatelse
15.07.2025 Gnr 39 bnr 331 - Gårdsveien 98, Bleik - Igangsettingstillatelse
10.07.2025 Gnr 39 bnr 331 - Gårdsveien 98 - Mangelbrev - Igangsettingstillatelse
03.06.2025 Søknad igangsettingstillatelse
06.02.2025 Rammetillatelse - gnr 39 bnr 331 - Gårdsveien 98 - Rammetillatelse - Tilbygg
03.04.2024 Kulturminnefaglig uttalelse - Rammetillatelse - Tilbygg - Gnr 39 bnr 331 - Gårdsveien 98 - Andøy kommune
13.03.2024 Oversender søknad til uttalelse - gnr 39 bnr 331 - Gårdsveien 98 - Rammetillatelse - Tilbygg
12.03.2024 Rammesøknad Gårdsveien 98, Bleik - eksisterende fasader
25.01.2024 Tilbakemelding om mangler - gnr 39 bnr 331 - Gårdsveien 98 - Rammetillatelse - Tilbygg
10.11.2023 Melding om mottatt søknad - Gnr 39 bnr 331 - Gårdsveien 98
06.11.2023 Søknad om tillatelse til tilbygg bolig