Extension Igangsettingstillatelse Enebolig

Endring, tilbygg og garasje på enebolig i Gjerdsvikvegen 369

📍 Gjerdsvikvegen 369 , 6083 GJERDSVIKA

Nøkkelinfo

Sakstype
Tilbygg
Bygningstype
Enebolig
Bruksareal
285 m²
Boenheter
1
Kommune
Sande
Fylke
Møre og Romsdal
Gnr / Bnr
6 / 6
Saksnummer
2025/656
Fase
Igangsettingstillatelse

Om byggesaken

Prosjektet omfatter en omfattende ombygging og modernisering av en eksisterende enebolig med sokkel fra 1952, beliggende i Gjerdsvikvegen 369. Bygget har tre etasjer med totalt bruksareal på ca. 285,4 m². Det planlegges tilbygg som inkluderer en våtromssøyle og funksjonell trapp som knytter sammen alle etasjene, samt en ny garasje på ca. 110 m² med tilstøtende bod. Fasaden får trepanel med saltak, og det legges vekt på å bevare husets klassiske stil med moderne elementer som store vindusflater og arker. Prosjektet inkluderer også tiltak for bedre isolasjon og energieffektivitet, samtidig som det søkes unntak fra enkelte TEK17-krav for eksisterende bygningsmasse. Det foreligger geoteknisk rapport som bekrefter at tomten ligger utenfor aktsomhetsområde for kvikkleireskred. Det er etablert tilknytning til offentlig vann- og avløpsnett, og det er gitt dispensasjon fra kommuneplanens arealformål OP2. Prosjektet er i fase med igangsettingstillatelse.

Produkter og materialer

VVS Sanitærinstallasjoner og vann/avløp

Nye sanitærinstallasjoner, tilknytning til offentlig vann- og avløpsnett, sluktype bestemmes

Sanitærinstallasjoner i våtrom og tilknytning til kommunalt VA-nett

Dører Ytterdører og terrassedører

Antall: 10

Ytterdører i tre, inkludert terrassedører og inngangsdører med modulmål 1 m

Nye og endrede ytterdører i fasader, inkludert trinnfri tilgang til hovedetasje

Trapper Innvendig trapp i L-form

Antall: 1

Funksjonell trapp som knytter sammen kjeller, hovedetasje og loft

Ny trapp som binder sammen alle etasjer i boligen

Garasjeport Garasjeport i tre eller metall

Antall: 1

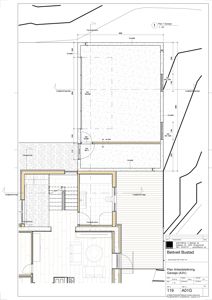
Garasjeport på ny garasje med saltak, ca. 110 m²

Ny garasje med tilstøtende bod, garasjeport iht. tegninger

Isolasjon Vegger og tak

🧱 Mineralull eller tilsvarende

20 cm isolasjon i bindingsverk, 5 cm innvendig påforing, 30 cm isolasjon i tak

Etterisolering av vegger og tak for bedre energieffektivitet

Fasade Trepanel med saltak

🧱 Tre

Fasader i tre med saltak, hvit farge, inkludert arker og nedtrekking av tak

Yttervegger med lys stående trepanel, saltak med taktekking, fasadeendringer med nye vinduer og dører

Gulv Innvendige gulvflater

Gulv i oppholdsrom, bad og vaskerom iht. gjeldende standarder

Innvendige gulvflater i bolig og våtrom

Maling Innvendig og utvendig maling

Maling av fasader og innvendige flater

Overflatebehandling av trepanel og innvendige vegger

Pipe Eksisterende skorstein og røykkanal

🧱 Mur

Antall: 1

Eksisterende skorstein benyttes, tilfredsstiller krav til tetthet og feiing

Skorstein og røykkanal for ildsted i bolig

Elektro Elektriske installasjoner

Elektriske installasjoner iht. gjeldende forskrifter

Elektriske anlegg i bolig og garasje

Varme Varmeinstallasjoner

Varmeinstallasjoner planlegges, varmekilde ikke avklart, unntak fra krav til fossilt brensel

Varme- og kuldeinstallasjoner i bolig

Ventilasjon Balansert ventilasjon

Balansert ventilasjon planlagt, unntak fra krav om uavhengig kontroll av lufttetthet for eksisterende bygg

Ventilasjonssystem for bolig, med fokus på inneklima

Vinduer Store vindusflater og arkvinduer

Antall: 26

Vinduer i fasader nord, sør, øst og vest, inkludert barnesikring og personsikkerhetsglass der relevant

Nye og endrede vinduer i fasader, inkludert arkvinduer, med krav til sikkerhet og dagslys

Betong Fundament og grunnmur

Fundament og grunnmur til tilbygg og garasje, inkl. drenering

Grunnarbeid og fundamentering for tilbygg og garasje

Bad Våtrom med membran og sluk

Våtrom med sluk, fall til sluk, vanntette sjikt og fuktbestandige materialer

Nye og oppgraderte bad med krav til tetthet og fuktsikring

Grunnarbeid Drenering og terrengarbeid

Drenering rundt bygning, terrengplanering med fall bort fra bygg

Grunnarbeid for å sikre god drenering og stabilitet

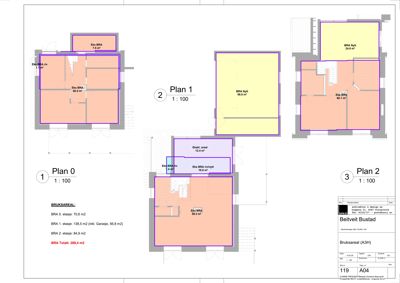
Plantegning

Enebolig 190.3 m²

Etasje 0 0.0 m²

Rom Areal Vinduer Dører
Gang 001 0.0 m² 0 2
Stue 002 0.0 m² 1 1
Kjøkken 003 0.0 m² 1 1
Bad 004 0.0 m² 0 1
Sove 005 0.0 m² 1 1
Sove 006 0.0 m² 1 1
Vaskerom 007 0.0 m² 0 1

Etasje 1 105.4 m²

Rom Areal Vinduer Dører
Stue 101 42.5 m² 2 1
Kjøkken 102 18.2 m² 1 1
Gang 103 8.5 m² 0 2
Bad 104 6.8 m² 0 1
Sove 1 105 12.4 m² 1 1
Sove 2 106 11.0 m² 1 1
Vaskerom 107 4.0 m² 0 1
Soverom 2 108 11.0 m² 1 1
Teknisk rom 109 1.3 m² 0 0
Teknisk rom 110 3.3 m² 0 0
Teknisk rom 111 3.8 m² 0 0
Teknisk rom 112 5.1 m² 0 0
Teknisk rom 113 0.6 m² 0 0
Teknisk rom 114 1.0 m² 0 0
Teknisk rom 115 5.3 m² 0 0

Etasje 2 84.9 m²

Rom Areal Vinduer Dører
Stue 201 35.0 m² 2 1
Kjøkken 202 15.0 m² 1 1
Gang 203 10.0 m² 0 2
Bad 204 5.0 m² 0 1
Soverom 1 205 15.0 m² 1 1
Soverom 2 206 15.0 m² 1 1
Vaskerom 207 4.0 m² 0 1
Teknisk 208 2.0 m² 0 1

Garasje 110.0 m²

Etasje 1 110.0 m²

Rom Areal Vinduer Dører
Garasjerom P01 110.0 m² 2 1

Fasader

Enebolig

Nord
Materiale
Tre
Taktype
Saltak
Vinduer
2
Dører
0
Synlige etasjer
2
Sør
Materiale
Tre
Taktype
Saltak
Vinduer
6
Dører
4
Balkonger
1
Synlige etasjer
2
Aust
Materiale
Tre
Taktype
Saltak
Vinduer
6
Dører
1
Balkonger
1
Synlige etasjer
2
Vest
Materiale
Tre
Taktype
Saltak
Vinduer
4
Dører
2
Balkonger
1
Synlige etasjer
2
Øst
Materiale
Tre
Taktype
Saltak
Vinduer
4
Dører
1
Balkonger
1
Synlige etasjer
2

Hendelser

22.04.2026 Endringsvedtak - Endring av bygg og fasader, tilbygg og garasje - Gjerdsvikvegen 369 - gnr 6 bnr 6
20.04.2026 Gjerdsvikvegen 369 Søknad om endring av gitt tillatelse eller godkjenning 6/6
11.03.2026 Endringsvedtak - Endring av bygg og fasader, tilbygg og garasje - Gjerdsvikvegen 369 - gnr 6 bnr 6
10.03.2026 Gjerdsvikvegen 369 Søknad om endring av gitt tillatelse eller godkjenning 6/6
12.02.2026 Endring av bygg og fasader, tilbygg og garasje - Gjerdsvikvegen 369 - Gnr 6 bnr 6
11.02.2026 Endring av byggeteikningar- Gjerdsvikvegen 369 - Gnr 6 bnr 6
06.11.2025 Igangsetjingsløyve - Endring av bygg og fasader, tilbygg og garasje - Gjerdsvikvegen 369 - gnr 6 bnr 6
05.11.2025 Endringsvedtak - Endring av bygg og fasader, tilbygg og garasje - Gjerdsvikvegen 369 - gnr 6 bnr 6
03.11.2025 Gjerdsvikvegen 369 Søknad om endring av gitt tillatelse eller godkjenning 6/6
21.10.2025 Ang. krav til lufttettheits-kontroll i eksisterande bustader
21.10.2025 Gjerdsvikvegen 369 Søknad om igangsettingstillatelse 6/6
21.10.2025 Rammeløyve - Endring av bygg og fasader, tilbygg og garasje - Gjerdsvikvegen 369 - gnr 6 bnr 6
16.10.2025 Oppdaterte planteikningar med rombenevnelsar - Gnr. 6/ Bnr. 6
02.09.2025 Geologisk rapport til søknaad om løyve: Gnr 6 Bnr. 6
28.07.2025 Endring av bygg og fasader, tilbygg og garasje - Gjerdsvikvegen 369 - gnr 6 bnr 6
23.07.2025 Oppdatering på søknad
23.06.2025 Sande kommune - fv 5868 - gbnr 6/6 - dispensasjon frå byggegrense etter veglova for veranda og tilbygg
23.06.2025 Til uttale - dispensasjon - Sande 6/6 - Gjerdsvikvegen - endring av bygg og fasader - riving / nytt tilbygg - garasje
20.06.2025 Sande kommune - tilbygg til bustad, garasje - gbnr 6/6 - fråsegn til søknad om dispensasjon frå kommuneplan
04.06.2025 Høyring om tiltak - Endring av bygg og fasader, tilbygg og garasje - Gjerdsvikvegen 369 - gnr 6 bnr 6
04.06.2025 Høyring om tiltak - Endring av bygg og fasader, tilbygg og garasje
28.05.2025 Dispensasjon OP2-område, Gjerdsvika
21.05.2025 Gjerdsvikvegen 369 Søknad om rammetillatelse bruksendring
20.05.2025 Fv 5868 - gbnr 6/6 - merknad til nabovarsel
16.05.2025 Nabovarsel