Extension Soeknad Enebolig

Tilbygg og ny terrasse på enebolig i Gluppeveien 25

📍 Gluppeveien 25 , 1614 FREDRIKSTAD

Nøkkelinfo

Sakstype
Tilbygg
Bygningstype
Enebolig
Bruksareal
44 m²
Boenheter
1
Kommune
Fredrikstad
Fylke
Østfold
Gnr / Bnr
210 / 364
Saksnummer
2026/10607
Fase
Søknad

Om byggesaken

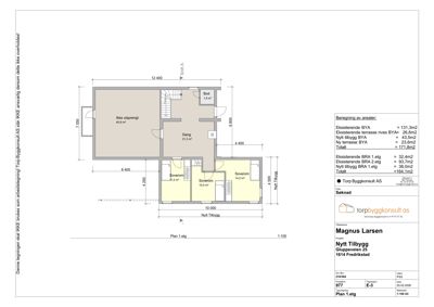
Ny enebolig med et tilbygg på 43,5 m² i én etasje og en ny terrasse på 23,6 m², som erstatter en eksisterende terrasse på 26,6 m². Tilbygget inkluderer rom som soverom, bod og gang, og er utført i trekonstruksjon med flatt tak. Den totale bebygde arealet etter tiltaket blir 171,8 m². Fasader er i tre med flere vinduer og dører, og det er en pipe tilknyttet bygget. Terrassen er plassert i tilknytning til tilbygget og har en flate på 23,6 m².

Produkter og materialer

Elektro Elektriske installasjoner

Elektriske installasjoner i tilbygg og terrassebelysning

Fasade Tre kledning

🧱 Tre

Fasader i tre med flatt tak

Tre kledning til fasader på tilbygg og eksisterende bygg

Vinduer Fasadevindu i tre

🧱 Tre

Antall: 14

Vinduer i fasader på tilbygg og eksisterende bygg

Terrasse Ny terrasse i tre

🧱 Tre

Antall: 1

Ny terrasse på 23,6 m² som erstatter eksisterende terrasse på 26,6 m²

Bygging av ny terrasse i tilknytning til tilbygget

Gulv Innvendige gulvflater

Gulvbelegg eller parkett i tilbyggets rom

Tømrer Bygging av tilbygg og terrasse

Tømrerarbeid for oppføring av tilbygg og terrasse

Tak Flatt tak

Flatt tak på tilbygg og eksisterende bygg

Taktekking og konstruksjon for flatt tak

Dører Ytterdører i tre

🧱 Tre

Antall: 7

Ytterdører til tilbygg og eksisterende bygg

Isolasjon Isolasjon for tilbygg

Isolasjon i vegger, tak og gulv i tilbygg

VVS Sanitærinstallasjoner

VVS-installasjoner for bad, wc og øvrige rom i tilbygg

Grunnarbeid Fundamentering for tilbygg og terrasse

Grunnarbeid og fundamentering for nytt tilbygg og terrasse

Maling Utvendig og innvendig maling

Maling av fasader, dører og innvendige flater i tilbygg

Plantegning

Enebolig 257.8 m²

Etasje 1 164.1 m²

Rom Areal Vinduer Dører
Ikke utsprengt 40.9 m² 1 1
Gang 31.3 m² 0 2
Bod 1.9 m² 0 1
Soverom 11.2 m² 1 1
Soverom 10.0 m² 1 2
Soverom 14.2 m² 2 1

Etasje 2 93.7 m²

Rom Areal Vinduer Dører
Soverom 201 9.3 m² 1 1
Soverom 202 9.9 m² 1 1
Stue/Kjøkken 203 52.7 m² 1 1
Gang 204 1.4 m² 0 1
Gang 205 1.6 m² 0 1
Wc 206 1.3 m² 0 1
Bad/Wc 207 5.8 m² 0 1

Fasader

Enebolig

Vest
Materiale
Tre
Taktype
Flatt tak
Vinduer
5
Dører
1
Balkonger
1
Synlige etasjer
2
Øst
Materiale
Tre
Taktype
Flatt tak
Vinduer
2
Dører
0
Balkonger
1
Synlige etasjer
1
Nord
Materiale
Tre
Taktype
Flatt tak
Vinduer
3
Dører
0
Synlige etasjer
1
Sør
Materiale
Tre
Taktype
Flatt tak
Vinduer
6
Dører
1
Synlige etasjer
2

Hendelser

10.04.2026 Søknad uten ansvarsrett - Gluppeveien 25 - Eiendom 210/364 - Rive eksisterende terrasse/ny terrasse, Nytt tilbygg
10.04.2026 Bekreftelse på mottatt søknad - Søknad uten ansvarsrett - Tilbygg inntil 50 m² - Gluppeveien 25 - Eiendom 210/364