Extension UnderBehandling Enebolig

Tilbygg og oppgradering av enebolig på Grams Alle 18, Drammen

📍 Grams alle 18 , 3039 DRAMMEN

Nøkkelinfo

Sakstype
Tilbygg
Bygningstype
Enebolig
Bruksareal
199 m²
Boenheter
1
Kommune
Drammen
Fylke
Buskerud
Gnr / Bnr
25 / 80
Saksnummer
26/07112
Fase
Under behandling

Om byggesaken

Ny tilbygg og oppgradering av en eksisterende enebolig på totalt 199 m² fordelt på to etasjer. Prosjektet inkluderer en underetasje med hobbyrom, stue/kjøkken, bad/vaskerom, soverom, garasje på 24,4 m² og støttemurer. Første etasje inneholder flere soverom, bad, kjøkken, stue og veranda på 44,8 m². Bygget har trekledning og saltak med flere vinduer og dører fordelt på alle fasader. Det er etablert brannvegg EI30 og nye terrengtilpasninger med støttemurer og trapper til inngangsdør. Prosjektet omfatter også endringer i brannskille og bruksendring av rom i underetasjen.

Produkter og materialer

Tak Saltak

Saltak på hele bygget

Saltak som takkonstruksjon for eneboligen

Trapper Utvendig trapp til inngangsdør

🧱 betong/støttemur

Antall: 1

Støttemur med trapp til inngangsdør, terrengtilpasning

Trapp og støttemur for adkomst til inngangsdør

Brannvern Brannvegg EI30

Antall: 1

Brannvegg EI30 i underetasje

Brannskille i underetasjen for brannsikring

Dører Ytterdør

🧱 tre

Antall: 5

Ytterdører i tre på alle fasader, inkludert inngangsdør med trapp og dør til veranda

Ytterdører i tre til inngang, veranda og garasje

Gulv Gulvbelegg og parkett

Gulvbelegg i alle rom, sannsynlig parkett i stue og soverom

Fasade Trekledning

🧱 tre

Trekledning på alle fasader

Trekledning som ytterkledning på eneboligen

Tømrer Innvendige vegger og dører

🧱 tre

Innvendige vegger, dører til rom som soverom, bad, kjøkken, gang

Innvendige konstruksjoner og dører

Vinduer Fasadevindu

🧱 tre

Antall: 15

Vinduer fordelt på fasader med tre rammer, inkludert 3 vinduer på nord og sør, 4 på øst og vest

Fasadevinduer i tre til eneboligens alle fasader

Garasjeport Garasjeport til frittstående garasje

Antall: 1

Garasje på 24,4 m² med port

Garasjeport til garasje i underetasje

Kjøkken Kjøkkeninnredning

Antall: 2

Kjøkken i underetasje og 1. etasje

Kjøkkeninnredning og tilhørende utstyr

Bad Bad og vaskerom innredning

Antall: 3

Bad/vaskerom i underetasje og 1. etasje, totalt 3 bad/vaskerom

Sanitærutstyr og innredning for bad og vaskerom

Grunnarbeid Støttemur og terrengarbeid

🧱 betong

Støttemurer med høyder 930-2000 mm, terrengtilpasning

Støttemurer og terrengarbeid rundt bygget

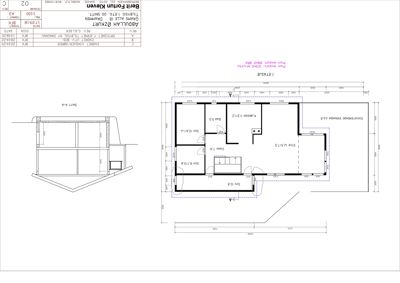
Plantegning

Enebolig 199.0 m²

Etasje 0 96.0 m²

Rom Areal Vinduer Dører
GANG/TRAPE 001 4.7 m² 0 2
BAD/VASK 6,9 002 6.9 m² 0 1
BAD/VASK 6,5 003 6.5 m² 0 1
HOBBYROM 15,0 004 15.0 m² 1 1
STUE/KØKKEN 25,1 005 25.1 m² 3 2
SOV 7,8 006 7.8 m² 1 1
SOV 7,5 007 7.5 m² 1 1
WALK-IN-CLOS. 008 2.6 m² 0 1
GARASJE 24,4 009 24.4 m² 1 1

Etasje 1 103.0 m²

Rom Areal Vinduer Dører
Sov 10.8 10.8 m² 1 1
Sov 8.7/0.6 8.7 m² 1 1
Sov 10.6/1.4 10.6 m² 1 1
Gang 7.9 7.9 m² 0 4
Bad 5.5 5.5 m² 0 1
Kjøkken 11.3/1.2 11.3 m² 1 1
Stue 41.5/7.5 41.5 m² 3 1
Veranda 44.8 44.8 m² 0 1

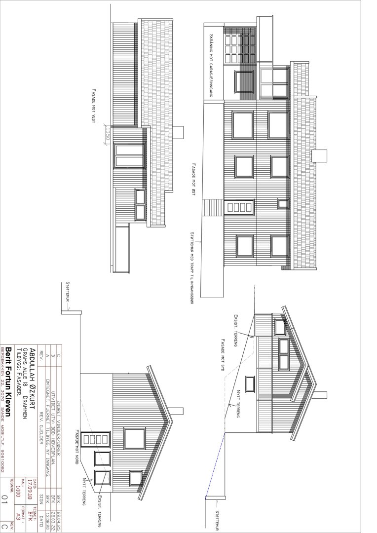
Fasader

Enebolig

Nord
Materiale
Tre
Taktype
Saltak
Vinduer
3
Dører
1
Synlige etasjer
1
Sør
Materiale
Tre
Taktype
Saltak
Vinduer
3
Dører
1
Synlige etasjer
1
Øst
Materiale
Tre
Taktype
Saltak
Vinduer
4
Dører
1
Synlige etasjer
2
Vest
Materiale
Tre
Taktype
Saltak
Vinduer
4
Dører
1
Synlige etasjer
2

Hendelser

21.04.2026 Grams alle 18, kommunen ber om redegjørelse
18.12.2025 Grams Alle 18, ettersendelse av tegninger