Extension Soeknad Enebolig

Tilbygg, fasade- og bruksendring på enebolig i Granstuveien 4

📍 Granstuveien 4 , 1680 SKJÆRHALDEN

Nøkkelinfo

Sakstype
Tilbygg
Bygningstype
Enebolig
Bruksareal
246 m²
Boenheter
1
Kommune
Hvaler
Fylke
Østfold
Gnr / Bnr
3 / 257
Saksnummer
2026/504
Fase
Søknad

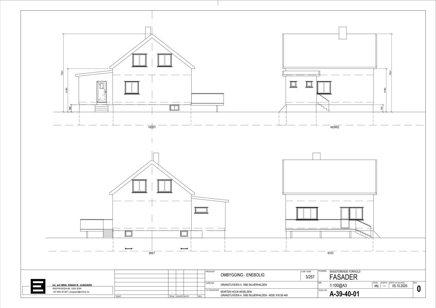
Om byggesaken

Ny tilbygg på eksisterende enebolig i Granstuveien 4 med en samlet bygningsmasse på ca. 246,5 m² fordelt på fire etasjer inkludert kjeller. Tilbygget omfatter blant annet en utvidet terrasse på 35 m², justert tak med saltak og flatt tak, samt fasadeendringer med nye vinduer og dører. Bygget har to trapper og inkluderer rom som vaskerom, lagerrom, verksted, kjøkken, stue, bad og soverom. Det er også en bruksendring som påvirker romfordelingen og funksjonen i boligen. Fasaden har saltak og flatt tak, med gesimshøyde på 4,85 m og mønehøyde på 7,53 m, og det er pipe tilknyttet bygget.

Produkter og materialer

Grunnarbeid Fundamentering og grunnmur

Grunnarbeid for tilbygg og utvidelse av eksisterende bygg

Fundamentering og grunnarbeid for tilbygg

Trapper Innvendige trapper

Antall: 2

To trapper i bygget, inkludert trapp på 10 m² i ny løsning

Innvendige trapper for etasjeadkomst

Gulv Innvendige gulvflater

Nye gulv i tilbygg og ombygde rom, inkludert bad og oppholdsrom

Gulvlegging og overflatebehandling

VVS Sanitær og varme

Oppgradering og tilpasning av bad og vaskerom i forbindelse med tilbygg og bruksendring

VVS-installasjoner for bad, vaskerom og WC

Maling Innvendig og utvendig maling

Maling av nye og endrede fasader samt innvendige overflater

Maling og overflatebehandling

Fasade Vinduer og dører

Antall: 13

Nye vinduer og dører i fasadeendring, inkludert 3 vinduer på vest, 3 vinduer på nord, 2 vinduer og 1 balkongdør på øst, 2 vinduer og 1 dør på sydfasade

Nye fasadevinduer og dører som del av fasadeendringen

Elektro Elektriske installasjoner

Elektriske installasjoner tilpasset ny planløsning og tilbygg

Elektroarbeid for belysning, strøm og sikkerhet

Tømrer Bygging av tilbygg og ombygging

🧱 Treverk

Tømrerarbeid for tilbygg, fasadeendring og innvendige endringer

Tømrerarbeid for konstruksjon og ombygging

Tak Saltak og flatt tak

Antall: 2

Justert tak med saltak og flatt tak, tak over inngangstrapp med samme vinkel som eksisterende utbygg

Taktekking og takkonstruksjon for tilbygg og fasadeendring

Terrasse Utvidet terrasse

Antall: 1

Ny terrasse på 35 m² trukket 300 mm mot huset for å overholde juridisk grense

Terrasseutvidelse som del av tilbygg

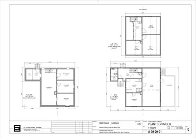
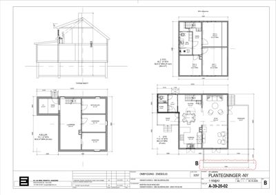
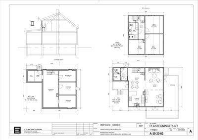
Plantegning

Enebolig 246.5 m²

Etasje 0 60.9 m²

Rom Areal Vinduer Dører
Lagerrom I.U. 3.5 m² 0 1
Gang GANG 3.5 m² 0 1
Matkjeller MATKJELLER 8.1 m² 0 1
Vaskerom VASKEROM 9.3 m² 0 1
Lagerrom LAGERROM 24.4 m² 0 1
Verksted VERKSTED 9.1 m² 0 1

Etasje 1 66.3 m²

Rom Areal Vinduer Dører
Bad BAD 3.6 m² 0 1
Hall HALL 10.4 m² 0 2
Kjøkken KJØKKEN 9.7 m² 1 1
Stue STUE 30.3 m² 2 1
Kammers KAMMERS 9.1 m² 0 1
Kjøkken KJ/ER 10.1 m² 2 1
Allrom ALLROM 16.4 m² 0 0
Vaskerom V.F. 3.6 m² 0 1
Toalett WC 1.8 m² 0 1
Klærrom KL/ER 1.8 m² 0 1
Trapp TRAPP 10.0 m² 0 0

Etasje 2 58.4 m²

Rom Areal Vinduer Dører
Gang GANG 10.4 m² 0 2
Sov 1 SOV 1 12.4 m² 1 1
Sov 2 SOV 2 10.9 m² 1 1
Sov 3 SOV 3 9.9 m² 0 1
Bad BAD 6.5 m² 1 1

Etasje -1 60.9 m²

Rom Areal Vinduer Dører
Lagerrom I.U. 3.5 m² 0 1
Gang GANG 3.5 m² 0 2
Lagerrom LAGERROM 24.4 m² 1 1
Vaskerom VASKEROM 9.3 m² 0 2
Verksted VERKSTED 9.1 m² 1 1

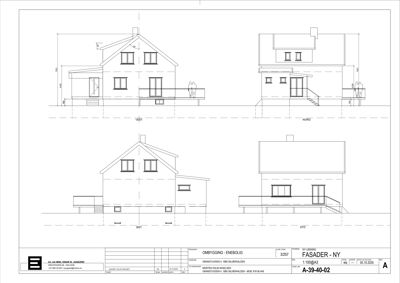
Fasader

Enebolig

Vest
Taktype
Saltak
Høyde
4.8 m
Mønehøyde
7.5 m
Vinduer
3
Dører
1
Synlige etasjer
2
Nord
Taktype
Flatt tak
Høyde
4.8 m
Mønehøyde
7.5 m
Vinduer
3
Dører
0
Synlige etasjer
2
Øst
Taktype
Saltak
Høyde
4.8 m
Mønehøyde
7.5 m
Vinduer
2
Dører
0
Balkonger
1
Synlige etasjer
2
Syd
Taktype
Flatt tak
Høyde
4.8 m
Mønehøyde
7.5 m
Vinduer
2
Dører
1
Balkonger
1
Synlige etasjer
2

Hendelser

30.03.2026 Supplerende dokumentasjon - 3/257 - Granstuveien 4
12.03.2026 Søknad ett-trinn - tilbygg - fasade - bruksendring - 3/257 - Granstuveien 4