Rendering
3D-visualisering av en bygning sett fra siden, med synlig grunnkonstruksjon (stolper) og et blått element som kan være en terrasse eller et tak.
1 / 7
Extension
Ferdigattest
Enebolig
Tilbygg med carport og balkong på enebolig, Harald Skjolds veg 8A
📍 Harald Skjolds veg 8A , 5236 RÅDAL
Nøkkelinfo
- Sakstype
- Tilbygg
- Bygningstype
- Enebolig
- Bruksareal
- 43 m²
- Boenheter
- 1
- Kommune
- Bergen
- Fylke
- Vestland
- Gnr / Bnr
- 40 / 1810
- Saksnummer
- BYGG-2025/12046
- Fase
- Ferdigattest
Om byggesaken
Ny tilbyggsløsning bestående av en kombinert carport og balkong på eksisterende enebolig i Harald Skjolds veg 8A. Carporten har et grunnareal på ca. 21,27 m² med balkong over på ca. 21,27 m², totalt 42,54 m² BRA. Bygget er fundamentert med hensyn til kommunale vann- og avløpsledninger, med krav til minste avstand og tilgjengelighet. Bygget er i to etasjer med gesimshøyde rundt 4-5 meter, og inkluderer nye fasadeelementer som vinduer, dører og balkongrekkverk. Prosjektet er ferdigstilt og har mottatt ferdigattest.
Produkter og materialer
Fasade
Vinduer
Antall: 15
Nye fasadevinduer i tilbygg og balkongfasade
Grunnarbeid
Fundamentering
Fundamentering med minste avstand 1,8 m til kommunale vannledninger, fundament plassert dypere enn bunn grøft
Grunnarbeid og fundamentering tilpasset kommunalt ledningsnett
Balkong
Balkong med rekkverk
Antall: 1
Balkong over carport med rekkverk
Tømrer
Trekonstruksjoner
Trekonstruksjoner for carport og balkong
Fasade
Dører
Antall: 4
Ytterdører til carport og balkongtilbygg
Tak
Taktekking carport
Taktekking på carport
Betong
Betongfundament
Betongfundament for carport og balkong
Rekkverk
Balkongrekkverk
Antall: 1
Rekkverk på balkong over carport
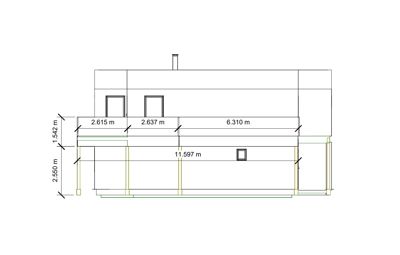
Fasader
Enebolig
Ukjent
- Høyde
- 4.1 m
- Vinduer
- 4
- Dører
- 2
- Balkonger
- 1
- Synlige etasjer
- 2
Nord
- Høyde
- 5.0 m
- Vinduer
- 11
- Dører
- 2
- Balkonger
- 2
- Synlige etasjer
- 2
Hendelser
07.04.2026
Ferdigattest, 40/1810, Harald Skjolds veg 8A
31.03.2026
Søknad om ferdigattest
13.05.2025
Fakturagrunnlag
13.05.2025
Ubw ordre 20669652 Tilbygg/carport
06.05.2025
Tillatelse til tiltak med ansvarsrett, 40/1810, Harald Skjolds veg 8A
05.05.2025
Utnyttingsgrad BRA
05.05.2025
Tilleggsopplysningar
05.05.2025
Tilleggsopplysningar Utnyttingsgrad BRA- 40/1810/0/0 Harald Skjolds veg 8A, carport med balkong oppå
02.05.2025
Bekreftelse på mottatt søknad - Behov for tilleggsopplysninger, 40/1810, Harald Skjolds veg 8A
31.03.2025
Bekreftelse på mottatt søknad
28.03.2025
Harald Skjolds veg 8A Søknad om tillatelse i ett trinn 40/1810
—