Extension Soeknad Enebolig

Tilbygg, bruksendring og fasadeendring på enebolig i Haugefjellveien 42

📍 Haugefjellveien 42 , 1621 GRESSVIK

Nøkkelinfo

Sakstype
Tilbygg
Bygningstype
Enebolig
Bruksareal
234 m²
Boenheter
1
Kommune
Fredrikstad
Fylke
Østfold
Gnr / Bnr
49 / 261
Saksnummer
2026/9281
Fase
Søknad

Om byggesaken

Ny tilbygg på enebolig i Haugefjellveien 42 med et bebygd areal på 95,5 m² og veranda på 17 m². Tilbygget strekker seg 2,1 m mot nord, 5,4 m mot øst og 4,1 m mot sør, og vil gi et samlet bruksareal på 234,5 m². Fasaden endres med ny kledning og nye vinduer, og takkonstruksjonen endres fra saltak til pulttak med høyeste kotehøyde på +29,50. Eksisterende integrert garasje endres til beboelig areal med bruksendring. Ny stålpipe av typen Jøtul NVI 2000+ Combi installeres. Det oppføres også en frittliggende carport med særskilt nabosamtykke for plassering nærmere nabogrense enn 1 meter. Innkjørsel og eiendomsgrenser opprettholdes som før.

Produkter og materialer

Ventilasjon Ventilasjonssystem

Ventilasjon tilpasses i forbindelse med tilbygg og bruksendring

Ventilasjon i tilbygg og ombygde rom

Maling Utvendig maling

Maling av ny kledning og fasadeendringer

Overflatebehandling av fasade

Stål Stålpipe

🧱 Rustfritt stål EN 1.4404

Antall: 1

Jøtul NVI 2000+ Combi stålpipe, helisolert, diameter 190 mm, CE-merket, monteringsanvisning og FDV-dokumentasjon følger

Ny stålpipe som erstatter eksisterende pipe

Grunnarbeid Fundamentering

Grunnarbeid for tilbygg og carport, inkludert fundamentering

Grunnarbeid og fundamentering for nye konstruksjoner

Vinduer Fasadevindu

Antall: 19

Nye vinduer i fasade, størrelser bl.a. 1 m x 0,8 m rømningsvindu, 2,5 m x 0,9 m og 0,9 m x 2,1 m oppholdsromsvinduer

Nye vinduer i tilbygget og fasadeendring

Bad Sanitærinstallasjoner

Antall: 3

Nye bad med sanitærinstallasjoner i tilbygget og bruksendret areal

Bad med sanitærinstallasjoner

Fasade Kledning

🧱 Tre

Ny kledning på fasade i tre, farge rød

Ny tre-kledning på fasade som endrer utseendet på boligen

Tak Pulttak

Takkonstruksjon endres fra saltak til pulttak med høyeste kotehøyde +29,50

Nytt pulttak på tilbygget

Garasjeport Carport

Antall: 1

Frittliggende carport plassert nærmere enn 1 m fra nabogrense med særskilt nabosamtykke

Ny carport inkludert i tiltaket

Rekkverk Verandarekkverk

Rekkverk på veranda i tilbygg

Sikkerhetsrekkverk på veranda

Gulv Innvendige gulv

Nye gulv i tilbygget og bruksendret areal

Gulv i tilbygg og ombygde rom

Terrasse Veranda

Antall: 2

Veranda på 17 m² mot sør og veranda på 62,9 m² i tilbygg

Utendørs verandaer i tilbygg

Elektro Nytt elektrisk anlegg

Nytt elektrisk anlegg installeres av Varden Elektro AS

Elektriske installasjoner i tilbygg og bruksendret areal

VVS Sanitærinstallasjoner

Innvendig sanitærinstallasjoner utføres av Assemblin AS

VVS-installasjoner i tilbygg og bruksendret areal

Tømrer Bygningskonstruksjon

🧱 Tre

Tilbygg med grunnmur, vegger, tak, veranda og innvendige rom som stue, kjøkken, bad, soverom, vaskerom, bod/teknisk rom

Bygningskonstruksjon for tilbygg og ombygging

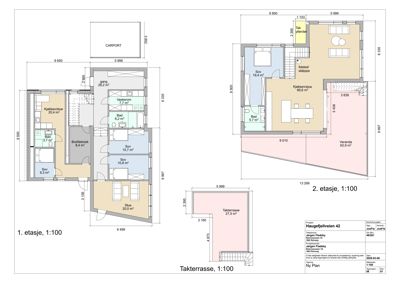
Plantegning

Enebolig 266.6 m²

Etasje 1 120.5 m²

Rom Areal Vinduer Dører
Stue 101 20.0 m² 1 1
Kjøkken/stue 102 20.4 m² 1 1
Bad 103 3.7 m² 0 1
Sov 104 6.3 m² 1 1
Bod/teknisk 105 8.4 m² 0 1
Gang 106 28.2 m² 0 2
Vaskerom 107 7.7 m² 0 1
Bad 108 6.2 m² 0 1
Sov 109 10.7 m² 1 1
Sov 110 10.8 m² 1 1

Etasje 2 118.6 m²

Rom Areal Vinduer Dører
Sov 201 19.4 m² 1 1
Kjøkken/stue 202 66.6 m² 2 1
Bad 203 5.7 m² 0 1
Veranda 204 62.9 m² 1 1
Ildsted/stålpipe 205 2.4 m² 0 0
Veranda 206 16.0 m² 0 1

Etasje 3 27.5 m²

Rom Areal Vinduer Dører
Takterrasse 301 27.5 m² 0 0

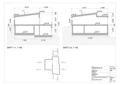
Fasader

Enebolig

Nord
Materiale
Tre
Taktype
Flatt tak
Høyde
6.5 m
Mønehøyde
8.2 m
Vinduer
4
Dører
0
Synlige etasjer
2
Sør
Materiale
Tre
Taktype
Flatt tak
Høyde
6.5 m
Mønehøyde
8.2 m
Vinduer
3
Dører
2
Synlige etasjer
2
Øst
Materiale
Tre
Taktype
Flatt tak
Høyde
6.9 m
Mønehøyde
8.4 m
Vinduer
10
Dører
0
Synlige etasjer
2
Vest
Materiale
Tre
Taktype
Flatt tak
Høyde
6.9 m
Mønehøyde
8.4 m
Vinduer
2
Dører
1
Synlige etasjer
2

Hendelser

20.04.2026 Haugefjellveien 42 - Ønsker å endre sak
24.03.2026 Ett-trinns søknad - Haugefjellveien 42 - Eiendom 49/261 - Tilbygg, bruksendring og fasadeendring