Extension Rammetillatelse Enebolig

Tilbygg med garasje på enebolig i Håvardstunvegen 4A, Bergen

📍 Håvardstunvegen 4A , 5254 SANDSLI

Nøkkelinfo

Sakstype
Tilbygg
Bygningstype
Enebolig
Bruksareal
234 m²
Boenheter
1
Kommune
Bergen
Fylke
Vestland
Gnr / Bnr
116 / 67
Saksnummer
BYGG-2025/14636
Fase
Rammetillatelse

Om byggesaken

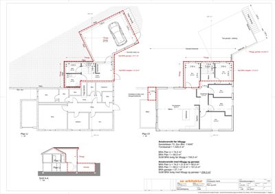
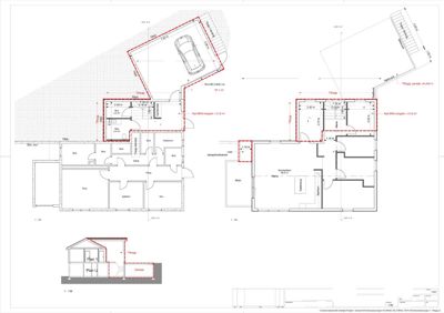
Ny tilbygg på eksisterende enebolig i Håvardstunvegen 4A, Bergen, med et samlet bruttoareal på 234,3 m² inkludert en integrert garasje på 37,1 m². Tilbygget består av boligrom som vindfang, bad og soverom, samt garasje, og har saltak og trepanel som fasademateriale. Bygget er tilpasset eksisterende bolig med tilsvarende materialvalg og arkitektonisk uttrykk. Det er etablert en utvendig trapp og forlengelse av eksisterende altan mot uteoppholdsareal. Prosjektet inkluderer lokal overvannshåndtering, og tiltaket er plassert med dispensasjon fra regulert byggegrense, med nabosamtykke og godkjent av kommunen. Grunnforholdene er dokumentert som bart fjell uten behov for ytterligere geoteknisk utredning. Det er én intern trapp i boligen og flere vinduer fordelt på tilbygget.

Produkter og materialer

Tak Saltak

🧱 Takstein

Antall: 1

Saltak på tilbygget med takstein som matcher eksisterende bolig

Taktekking for tilbygget

Vinduer Fasadevindu

🧱 Tre med 3-lags energiglass

Antall: 9

Vinduer i tilbygget fordelt på fasader: Nord (3), Sør (3), Vest (1), Øst (2)

Fasadevinduer i tre med energiglass for tilbyggets boligrom

Garasjeport Port B3,7xH2,1m

Antall: 1

Garasjeport i tilbygget garasje, dimensjon 3,7 x 2,1 meter

Garasjeport til integrert garasje

Dører Ytterdør

🧱 Tre

Antall: 4

Ytterdører i tilbygget på alle fasader, inkludert garasjeport

Ytterdører i tre til bolig og garasje

Fasade Trepanel

🧱 Tre

Trepanel som kledning på tilbygget, tilpasset eksisterende bolig

Fasademateriale for tilbygget

Grunnarbeid Fundamentering og grunnmur

Fundamentering og grunnmur for tilbygget, tilpasset bart fjell grunnforhold

Grunnarbeid for tilbygg og garasje

VVS Sanitærinstallasjoner

Bad og vaskerom i tilbygget med nødvendige sanitærinstallasjoner

Sanitærinstallasjoner for bad og vaskerom i tilbygget

Trapper Utvendig trapp i terreng

Antall: 1

Utvendig trapp ved tilbygget mot uteoppholdsareal

Trapp i terreng for adkomst til tilbygget

VVS Overvannshåndtering

Lokal overvannshåndtering med takvann ført til terreng og infiltrasjon på egen eiendom

Overvannshåndtering for tilbygg og garasje

Trapper Innvendig trapp

Antall: 1

Innvendig trapp i eneboligen

Innvendig trapp mellom etasjer i bolig

Gulv Innvendige gulv

Gulv i tilbygget tilpasset boligstandard, ikke nærmere spesifisert

Innvendige gulv i tilbygget

Maling Utvendig og innvendig maling

Maling av trepanel og innvendige overflater i tilbygget

Maling for fasade og innvendige flater

Tømrer Bygging av tilbygg og garasje

Tømrerarbeid for oppføring av tilbygg med boligrom og integrert garasje

Tømrerarbeid for hele tilbygget

Plantegning

Enebolig 154.0 m²

Etasje 0 74.0 m²

Rom Areal Vinduer Dører
Stue U01 38.6 m² 1 1
Kjøkken U02 12.3 m² 0 1
Sov U03 12.3 m² 1 1
Bad U04 8.2 m² 0 1
Gang U05 2.8 m² 0 2

Etasje 1 80.0 m²

Rom Areal Vinduer Dører
Sov 101 8.4 m² 1 1
Sov 102 8.1 m² 1 1
Sov 103 6.4 m² 1 1
Bad 104 4.4 m² 0 1
Vaskerom 105 3.7 m² 0 1
Gang 106 12.6 m² 0 2
Bod 107 3.5 m² 0 1
Garderobe 108 1.6 m² 0 1

Fasader

Tilbygg

Nord
Materiale
Tre
Taktype
Saltak
Vinduer
3
Dører
1
Synlige etasjer
1
Sør
Materiale
Tre
Taktype
Saltak
Vinduer
3
Dører
1
Synlige etasjer
1
Vest
Materiale
Tre
Taktype
Saltak
Vinduer
1
Dører
1
Synlige etasjer
1
Øst
Materiale
Tre
Taktype
Saltak
Vinduer
2
Dører
1
Synlige etasjer
1

Hendelser

14.01.2026 Gebyr
14.01.2026 Ubw ordre 20686026
09.01.2026 Rammetillatelse, 116/67, Håvardstunvegen 4A
08.01.2026 Svar på spørsmål om status
07.01.2026 Ber om status i sak- 116/67/0/0 Håvardstunvegen 4A, tilbygg bolig
22.12.2025 Ytrebygda. Gnr 116 Bnr 67, Håvardstunvegen 4 A. Intern høring, tilbygg bolig og avkjørsel. Uttale fra Bymiljøetaten
24.11.2025 Intern høring - Bymiljøetaten v/Veiforvaltningsseksjon
20.11.2025 Håvardstunvegen 4A Supplering av søknad 116/67
18.11.2025 Ytrebygda. Gnr 116 Bnr 67, Håvardstunvegen 4 A. Intern høring, tilbygg bolig. Mangelbrev fra Bymiljøetaten
06.11.2025 Intern høring
02.09.2025 Håvardstunvegen 4A Supplering av søknad 116/67
21.08.2025 Håvardstunvegen 4A, foreløpig tilbakemelding på søknad om tilbygg bolig
16.07.2025 Bekreftelse på mottatt søknad
16.07.2025 Håvardstunvegen 4A Søknad om rammetillatelse 116/67