Extension UnderBehandling Enebolig

Tilbygg på enebolig i Hessvikevegen 267, Ullensvang

📍 Hessvikevegen 267 , 5626 KYSNESSTRAND

Nøkkelinfo

Sakstype
Tilbygg
Bygningstype
Enebolig
Bruksareal
21 m²
Boenheter
1
Kommune
Ullensvang
Fylke
Vestland
Gnr / Bnr
343 / 2
Saksnummer
2024/1842
Fase
Under behandling

Om byggesaken

Ny påbygg på 21,2 m² til eksisterende enebolig i Hessvikevegen 267, Ullensvang kommune. Tilbygget omfatter blant annet et soverom på 10,1 m² og en gang på 11,1 m², med ett vindu i soverommet og to dører i gangen. Bygget har trekledning og saltak med teglstein i grå farge, og er tilpasset eksisterende bolig med to etasjer. Tiltaket inkluderer også nødvendige dispensasjoner fra byggegrense mot fylkesvei og LNF-areal, og det er dokumentert at tilbygget ikke berører dyrket mark eller skaper ulemper for landbruksdrift. Prosjektet krever dokumentasjon av bygggrunnens sikkerhet mot naturfare og oppfyller krav til brannsikring og universell utforming.

Produkter og materialer

Tømrer Påbygg konstruksjon

🧱 Tre

Oppføring av trearbeider i forbindelse med påbygg

Konstruksjon og oppføring av tilbygget i tre

Ventilasjon Ventilasjonsanlegg

Ventilasjon i tilbygget iht. TEK17

Fasade Trekledning

🧱 Tre

Trekledning på tilbygg og eksisterende fasade

Utvendig trekledning som matcher eksisterende bolig

Dører Innvendige dører

Antall: 2

To dører i gang i tilbygget

Tak Saltak med teglstein

🧱 Teglstein

Saltak med teglstein i grå farge

Nytt saltak på tilbygget med teglstein som eksisterende

Elektro Elektriske installasjoner

Tekniske installasjoner i forbindelse med påbygg

Elektriske installasjoner i tilbygget

Vinduer Fasadevindu

Antall: 1

Ett vindu i soverommet i tilbygget

Grunnarbeid Bygggrunnsundersøkelse og sikring

Dokumentasjon av trygghet mot naturfare og grunnforhold iht. pbl §28-1 og TEK17 kap.7

Undersøkelser og eventuelle sikringstiltak for bygggrunn

Maling Innvendig og utvendig maling

Maling av innvendige og utvendige flater

Brannvern Branntiltak vegg

🧱 Gips

Vegger gipses med 2 lag for branntiltak

Brannsikring av vegger i tilbygget

Gulv Innvendige gulv

Innvendige gulv i tilbygget

VVS Tekniske installasjoner

Tekniske installasjoner i forbindelse med påbygg

VVS-installasjoner i tilbygget

Plantegning

Enebolig 21.2 m²

Etasje 1 21.2 m²

Rom Areal Vinduer Dører
Soverom 101 10.1 m² 1 1
Gang 109 11.1 m² 0 2

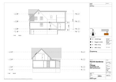
Fasader

Enebolig

Vest
Materiale
Tre
Taktype
Saltak
Takmat.
Tegl
Vinduer
6
Dører
0
Synlige etasjer
2
Nord
Materiale
Tre
Taktype
Saltak
Takmat.
Tegl
Vinduer
4
Dører
2
Synlige etasjer
2
Sør
Materiale
Tre
Taktype
Saltak
Takmat.
Tegl
Vinduer
0
Dører
0
Synlige etasjer
2
Øst
Materiale
Tre
Taktype
Saltak
Takmat.
Tegl
Vinduer
0
Dører
0
Synlige etasjer
2

Hendelser

14.04.2026 Vedr. ansvar for PRO Ark i sak 20241842
25.03.2026 Gnr. 343, bnr. 2 - Hessvikevegen 267 Supplering av søknad
17.12.2024 Fortsatt mangler ved søknaden - gnr. 343, bnr. 2 - Hessvikevegen 270 - oppføring av tilbygg på eksisterande einebustad
10.12.2024 Uttale - Dispensasjon - Ullensvang 343/2 - Hessvikevegen 270 - oppføring av tilbygg på einebustad
18.11.2024 Uttale til søknad om dispensasjon - tilbygg einebustad - gnr. 343 bnr. 2 - Hessvikevegen 270 - Ullensvang kommune
13.11.2024 Oversender søknad til uttale - gnr. 343, bnr. 2 - Hessvikevegen 270 - oppføring av tilbygg på eksisterande einebustad
08.11.2024 Tilbakemelding om manglar - gnr. 343, bnr. 2 - Hessvikevegen 270 - oppføring av tilbygg på eksisterande einebustad
06.09.2024 Purrer på byggesak - gnr. 343, bnr. 2
26.08.2024 Purrer på byggesak - gnr. 343, bnr. 2
16.05.2024 Gnr. 343, bnr. 2 - Hessvikevegen 267 Søknad om tillatelse i ett trinn
06.05.2024 Gnr. 343, bnr. 2 - Dispensasjon frå byggegrense - tilbygg - fv. 5099