Extension Rammetillatelse Enebolig

Tilbygg til enebolig på Høgahaug 106, Førresfjorden

📍 Høgahaug 106 , 5563 FØRRESFJORDEN

Nøkkelinfo

Sakstype
Tilbygg
Bygningstype
Enebolig
Bruksareal
25 m²
Boenheter
1
Kommune
Tysvær
Fylke
Rogaland
Gnr / Bnr
79 / 988
Saksnummer
2026/1471
Fase
Rammetillatelse

Om byggesaken

Ny tilbygg på 25,2 m² BYA til eksisterende enebolig på Høgahaug 106, som utvider stuearealet i 2. etasje og inkluderer et overbygd areal i underetasjen. Tilbygget har saltak med 37° takvinkel, lavere mønehøyde enn hovedbygget, og er tilpasset eksisterende bolig i volum og arkitektur. Eiendommen har totalt 101,6 m² BYA bolig, 24 m² terrasser og 44 m² garasje, og etter tilbygg blir samlet BYA 194,8 m² på en tomt på 690 m², tilsvarende 28,3 % utnyttelsesgrad. Tilbygget plasseres med god avstand til nabogrense og naboens bolig, og terrengforholdene reduserer visuell påvirkning. Materialer og detaljer følger eksisterende trehusstandard med saltak. Prosjektet inkluderer nødvendige tekniske tilpasninger uten endring i vann- og avløpssystemer.

Produkter og materialer

Betong Grunnmur og fundament

🧱 Betong

Fundament og grunnmur for tilbygget i henhold til gjeldende byggtekniske krav

Grunnarbeid og fundamentering for tilbygget

Vinduer Fasadevindu

🧱 Tre eller aluminium, 3-lags energiglass

Antall: 2

Vinduer til stue i tilbygget, tilpasset eksisterende vindustyper

Nye fasadevinduer for tilbygget stueareal

Fasade Trepanel kledning

🧱 Tre

Tilbygg utføres med trepanel som eksisterende bolig

Utvendig kledning i tre for tilbyggets fasader

Maling Utvendig og innvendig maling

Maling av utvendig kledning og innvendige vegger i tilbygget

Overflatebehandling for tilbygget

Gulv Innvendig gulvbelegg

Innvendige gulv i tilbygget tilpasset eksisterende standard

Gulvbelegg og overflate i tilbygget

Tømrer Bærekonstruksjon og reisverk

🧱 Tre

Bærekonstruksjon i tre for tilbygget

Tømrerarbeid for reisverk og bærende konstruksjoner

Elektro Innvendig elektrisk anlegg

Elektrisk installasjon for belysning og stikkontakter i tilbygget

Elektroinstallasjoner i tilbygget

Tak Saltak

🧱 Takstein eller tilsvarende

Saltak med 37° takvinkel, lavere mønehøyde enn eksisterende bolig

Taktekking for tilbygget med saltak som matcher eksisterende bygg

Isolasjon Vegger og tak

🧱 Mineralull eller tilsvarende

Isolasjon i vegger og tak for energieffektivitet og lydisolering

Isolasjon for tilbyggets klimaskjerm

VVS Varme og ventilasjon

Ingen endring i vann- og avløpssystem, men varme og ventilasjon tilpasses tilbygget

VVS-arbeider for tilbygget, inkludert varme og ventilasjon

Dører Terrassedør

🧱 Tre eller aluminium med glassfelt

Antall: 1

Terrassedør mot eksisterende terrasse fra tilbygget

Dør for utgang til terrasse fra tilbygget

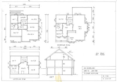
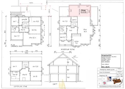
Plantegning

Enebolig 227.7 m²

Etasje 0 80.0 m²

Rom Areal Vinduer Dører
bad 5 5.0 m² 0 1
sov 7 12.0 m² 1 1
bod 9,7 9.7 m² 0 1
stue 22,4 22.4 m² 2 1
gang 56 5.6 m² 0 2
sov 8,4 8.4 m² 1 1
sov 10,5 10.5 m² 1 1
hall 5 5.0 m² 0 2
gang 5,6 5.6 m² 0 2
hall hall 0.0 m² 0 0

Etasje 1 90.7 m²

Rom Areal Vinduer Dører
bad 5,9 5.9 m² 0 1
vask 5,2 5.2 m² 0 1
sov 11,3 11.3 m² 1 1
gard 3 3.0 m² 1 1
stue 36,5 36.5 m² 2 1
kjøkk 11,9 11.9 m² 1 1
hall hall 0.0 m² 0 2

Etasje 2 57.0 m²

Rom Areal Vinduer Dører
sov 11 11.0 m² 1 1
bad 8,7 8.7 m² 0 1
stue 13 13.0 m² 1 1
sov 12,8 12.8 m² 1 1
sov 10 10.0 m² 1 1

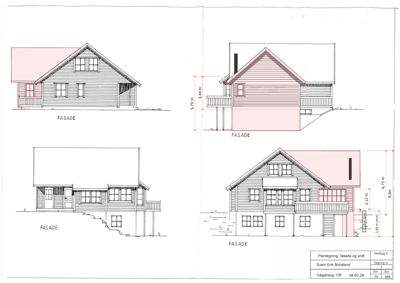
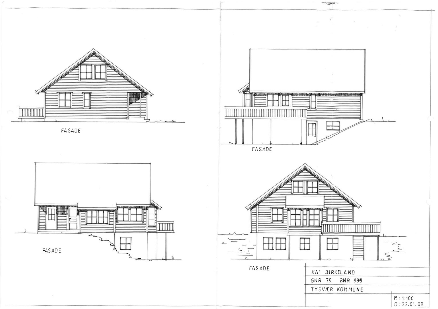
Fasader

Enebolig

Nord
Materiale
Tre
Taktype
Saltak
Høyde
5.7 m
Mønehøyde
8.2 m
Vinduer
4
Dører
1
Balkonger
1
Synlige etasjer
2
Sør
Materiale
Tre
Taktype
Saltak
Høyde
5.7 m
Mønehøyde
8.2 m
Vinduer
6
Dører
1
Balkonger
1
Synlige etasjer
2
Vest
Materiale
Tre
Taktype
Saltak
Høyde
5.7 m
Mønehøyde
8.2 m
Vinduer
6
Dører
2
Balkonger
1
Synlige etasjer
2
Øst
Materiale
Tre
Taktype
Saltak
Høyde
5.7 m
Mønehøyde
9.0 m
Vinduer
6
Dører
1
Balkonger
1
Synlige etasjer
2

Hendelser

21.04.2026 Gbnr 79/988 - Bekreftelse på mottatt klage - Tilbygg til bolig - Høgahaug 106
21.04.2026 Gbnr 79/988 - Oversender klage for uttalelse - Vedtak om tillatelse i ett trinn - Tilbygg til bolig - Høgahaug 106
15.04.2026 Gbnr 79/988 - Klage på vedtak - signert - godkjent søknad - tilbygg til bolig - Høgahaug 106
14.04.2026 Gbnr 79/988 - Vedtak - Godkjent søknad - Tilbygg til bolig - Høgahaug 106
13.04.2026 Gbnr 79/988 - Klage på vedtak - godkjent søknad - tilbygg til bolig - Høgahaug 106
18.03.2026 Gbnr 79/988 - Søknad - tilbygg til bolig - Høgahaug 106