Facade
Fasadetegning som viser bygningens utsyn mot vest og nord-øst, med håndskrevne notater om rekkverk og trapp.
1 / 4
Extension
Soeknad
Enebolig
Utviding av terrasse på Holevegen 4
📍 Holevegen 4 , 5417 STORD
Nøkkelinfo
- Sakstype
- Tilbygg
- Bygningstype
- Enebolig
- Boenheter
- 1
- Kommune
- Stord
- Fylke
- Vestland
- Gnr / Bnr
- 38 / 152
- Saksnummer
- 2026/10928
- Fase
- Søknad
Om byggesaken
Utviding av eksisterende terrasse tilknyttet en enebolig på Holevegen 4. Terrassen vil bli større og tilpasset boligens fasade, som er i tre med saltak. Bygget har ett plan med et samlet areal på 85 m², og terrassen vil fungere som et utendørs oppholdsareal. Prosjektet innebærer tømrerarbeid for terrassegulv og rekkverk, samt eventuell tilpasning av tilstøtende fasadeelementer. Det er ikke oppgitt eksakt størrelse på terrassen, men tiltaket er et mindre tilbygg til eksisterende bolig.
Produkter og materialer
Fasade
Terrasse
🧱 Tre
Utviding av terrasse i tre til eksisterende enebolig med saltak
Materialer og arbeid knyttet til terrassegulv og rekkverk i tre
Grunnarbeid
Fundamentering terrasse
Fundamentering for terrasseutvidelse
Grunnarbeid for å sikre stabilitet for terrasseutvidelsen
Tømrer
Terrassebygging
🧱 Trevirke
Tømrerarbeid for oppføring av terrasse
Arbeid med oppføring av terrasse, inkludert bæring og montering
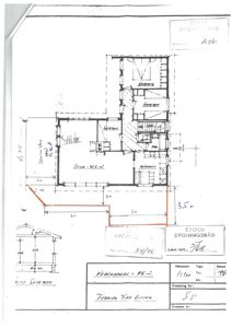
Plantegning
Enebolig 85.0 m²
Etasje 1 85.0 m²
| Rom | Areal | Vinduer | Dører |
|---|---|---|---|
| Stue 101 | 31.6 m² | 3 | 2 |
| Kjøkken 102 | 0.0 m² | 0 | 1 |
| Soverom 103 | 0.0 m² | 1 | 1 |
| Soverom 104 | 0.0 m² | 1 | 1 |
| Soverom 105 | 0.0 m² | 1 | 1 |
| Bad 106 | 0.0 m² | 0 | 1 |
| Gang 107 | 0.0 m² | 0 | 0 |
Fasader
Enebolig
Sør-Vest
- Materiale
- Tre
- Taktype
- Saltak
- Vinduer
- 4
- Dører
- 1
- Balkonger
- 1
- Synlige etasjer
- 1
Nord-Vest
- Materiale
- Tre
- Taktype
- Saltak
- Vinduer
- 3
- Dører
- 1
- Balkonger
- 1
- Synlige etasjer
- 1
Sør-Øst
- Materiale
- Tre
- Taktype
- Saltak
- Vinduer
- 3
- Dører
- 1
- Synlige etasjer
- 1
Nord-Øst
- Materiale
- Tre
- Taktype
- Saltak
- Vinduer
- 3
- Dører
- 1
- Balkonger
- 1
- Synlige etasjer
- 1
Hendelser
21.04.2026
Søknad om løyve til tiltak uten ansvarsrett