Extension UnderBehandling Enebolig

Tilbygg veranda på enebolig, Jon Fossums vei 23, Hvalstad

📍 Jon Fossums vei 23 , 1395 HVALSTAD

Nøkkelinfo

Sakstype
Tilbygg
Bygningstype
Enebolig
Bruksareal
8 m²
Boenheter
1
Kommune
Asker
Fylke
Akershus
Gnr / Bnr
22 / 238
Saksnummer
20/4730
Fase
Under behandling

Om byggesaken

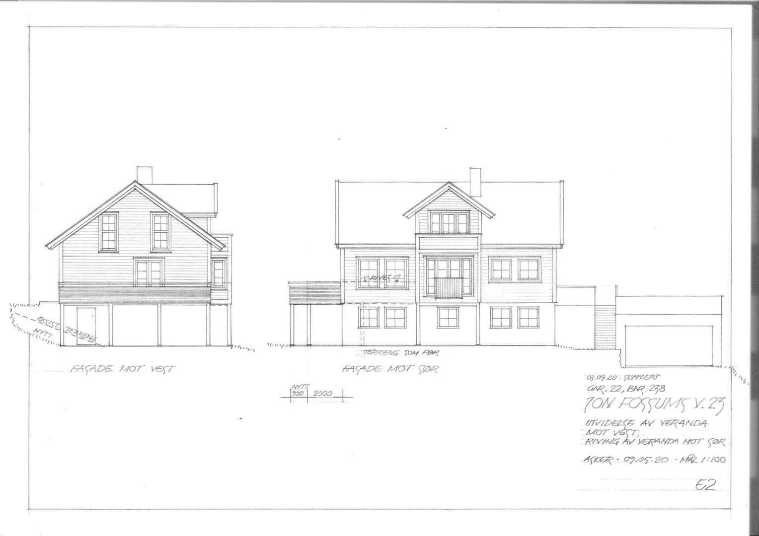
Ny tilbygg av veranda på ca. 8 m² på vestfasaden av en eksisterende enebolig i Jon Fossums vei 23. Tilbygget utvider verandaen med 0,9 meter i dybde og 8,4 meter i bredde. Samtidig rives en tilsvarende veranda på ca. 8 m² på sørfasaden, slik at totalt bebygd areal på eiendommen ikke økes. Bygget er i tre med saltak, og tiltaket er plassert delvis innenfor hensynssone for naturmiljø og vassdrag, med dispensasjon innvilget. Det er én trapp i bygget, og fasadene har flere vinduer og dører. Tiltaket har fått godkjent dispensasjon og er under behandling for ferdigattest.

Produkter og materialer

Fasade Veranda

🧱 Tre

Antall: 1

Riving av eksisterende veranda ca. 8 m² på sørfasade

Riving av veranda på sørfasade for å opprettholde bebygd areal

Dører Ytterdør til veranda

🧱 Tre eller glass

Antall: 1

Dør til veranda på vestfasade

Ytterdør som gir adkomst til veranda

Tømrer Konstruksjon veranda

🧱 Tre

Antall: 1

Tømrerarbeid for tilbygg veranda i tre

Bygging av bjelkelag, rekkverk og øvrige konstruksjoner for veranda

Tak Saltak

🧱 Tre og taktekking

Antall: 1

Saltak på eksisterende enebolig, tilbygg tilpasses eksisterende takform

Taktekking og konstruksjon for tilbygg veranda

Vinduer Fasadevindu

🧱 Tre eller aluminium

Antall: 3

Vinduer på vestfasade, totalt 3 vinduer

Vinduer i tilknytning til veranda og fasade

Grunnarbeid Fundamentering veranda

🧱 Betong eller tilsvarende

Antall: 1

Fundament for ny veranda tilbygg

Grunnarbeid og fundamentering for tilbygg veranda

Fasade Veranda

🧱 Tre

Antall: 1

Tilbygg veranda ca. 8 m² på vestfasade, utvidelse med 0,9 m dybde og 8,4 m bredde

Utvidelse av eksisterende veranda på vestfasade i tre, med tilhørende fundament og konstruksjon

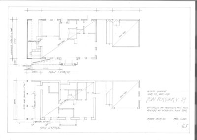
Plantegning

Enebolig 0.0 m²

Etasje 0 0.0 m²

Rom Areal Vinduer Dører
Gang 001 0.0 m² 0 1
Stue 002 0.0 m² 2 1
Sovev. 1 003 0.0 m² 1 1
Sovev. 2 004 0.0 m² 1 1
Bad 005 0.0 m² 0 1
Vaskerom 006 0.0 m² 0 1
Kjøkken 007 0.0 m² 1 1
Veranda 008 0.0 m² 0 1
Gang U01 0.0 m² 0 2
Vaskerom U02 0.0 m² 0 1
Teknisk rom U03 0.0 m² 0 1
Bod U04 0.0 m² 0 1

Etasje 1 0.0 m²

Rom Areal Vinduer Dører
Gang 101 0.0 m² 0 1
Stue 102 0.0 m² 2 1
Sovev. 1 103 0.0 m² 1 1
Sovev. 2 104 0.0 m² 1 1
Bad 105 0.0 m² 0 1
Vaskerom 106 0.0 m² 0 1
Kjøkken 107 0.0 m² 1 1
Veranda 108 0.0 m² 0 1
Soverom 2 109 0.0 m² 1 1
Soverom 3 110 0.0 m² 1 1

Fasader

Enebolig

Vest
Materiale
Tre
Taktype
Saltak
Vinduer
3
Dører
1
Balkonger
1
Synlige etasjer
2
Sør
Materiale
Tre
Taktype
Saltak
Vinduer
10
Dører
1
Balkonger
1
Synlige etasjer
3
Nord
Materiale
Tre
Taktype
Saltak
Vinduer
4
Dører
2
Synlige etasjer
1

Hendelser

09.04.2026 22/238 Tilbygg veranda - Manglende ferdigattest eller midlertidig brukstillatelse
01.12.2020 22/238 Godkjent dispensasjon - Tilbygg veranda
30.09.2020 22/238 Oversendelse reviderte tegninger og dispensasjonssøknad - Tilbygg veranda
30.07.2020 22/238 Kommunen trenger informasjon - Tilbygg veranda
02.07.2020 22/238 Kvitteringsbrev - Tilbygg veranda
01.07.2020 22/238 Søknad om tilbygg veranda