Extension Ferdigattest Enebolig

Tilbygg med garasje og terrasse på Jøssangvegen 146, Jørpeland

📍 Jøssangvegen 146 , 4105 JØRPELAND

Nøkkelinfo

Sakstype
Tilbygg
Bygningstype
Enebolig
Bruksareal
251 m²
Boenheter
1
Kommune
Strand
Fylke
Rogaland
Gnr / Bnr
53 / 161
Saksnummer
2024/2098
Fase
Ferdigattest

Om byggesaken

Ny garasje på 36,7 m² med påbygg over som utvider stue og kjøkken i eksisterende enebolig på Jøssangvegen 146. Tilbygget har samme fotavtrykk som den tidligere garasjen som rives. Det er etablert ny veranda ut fra tilbygget, samt ny terrasse og platting i hagenivå. Bygget er i tre med saltak på hoveddelen og flatt tak på garasjen. Terrenget er bearbeidet for å tilpasse terrassen og trapp til utearealet. Totalt tilbygg og uteareal utgjør ca. 85 m², og utnyttelsen av tomten øker fra 19 % til 22,5 % BYA. Tiltaket er plassert innenfor 100-metersbeltet med dispensasjon, og det er gjennomført vurdering av snøskredfare med lav risiko. Trapp og terrasse er justert for å oppfylle avstandskrav til nabogrense. Bygget er ferdigstilt og godkjent med ferdigattest.

Produkter og materialer

Oppmåling Innmåling og utskilling

Innmåling og utskilling av tiltak, levert av Rycon AS

Oppmålingstjenester for byggeprosjektet

VVS Sanitærinstallasjoner

Bad og vaskerom med nødvendige VVS-installasjoner

VVS-installasjoner for bad og vaskerom

Vinduer Fasadevindu og nytt vindu i garasje og soverom

🧱 Tre/alu ramme, 3-lags energiglass antatt

Antall: 10

Vinduer i fasader sør, nord, øst og vest, inkludert nytt vindu i garasje og soverom

Nye og eksisterende vinduer i tilbygget og hovedhus

Dører Ytterdører og garasjeport

🧱 Tre/alu, garasjeport i tre eller metall

Antall: 7

Dører i fasader og garasjeport på østfasade

Ytterdører til bolig og garasjeport

Betong Grunnmur og fundamenter

🧱 Betong

Grunnmur for garasje og tilbygget

Betongfundamenter og grunnmur

Fasade Trepanel

🧱 Tre

Trepanel på fasader med saltak på hovedhus og flatt tak på garasje

Utvendig kledning i tre på tilbygget og eksisterende bolig

Elektro Elektrisk anlegg

Elektriske varmekabler og panelovner for varmefordeling

Elektrisk installasjon for varme og belysning

Maling Utvendig og innvendig maling

Maling av trepanel og innvendige overflater

Overflatebehandling av treverk og innvendige flater

Grunnarbeid Terrengbearbeidelse og grunnmur

Terreng bearbeidet for terrasse og trapp, grunnmur for nytt tilbygg og garasje

Grunnarbeider for tilbygg og utearealer

Terrasse Terrasse og platting i hagenivå

🧱 Tre

Ny terrasse på ca. 50 m² og altan på 35 m², bearbeidet terreng for tilpasning

Nye utearealer i form av terrasse og altan tilknyttet tilbygget

Garasje Frittstående garasje med påbygg

🧱 Tre, saltak på hovedbygg, flatt tak på garasje

Antall: 1

Garasje på 36,7 m² med ett dør, påbygg over som utvider stue og kjøkken

Ny garasje med påbygg over som forlengelse av hovedhuset

Trapper Utvendig trapp i tre

🧱 Tre

Antall: 1

Trapp som følger terrengets naturlige kurve, justert for brannsikkerhet og avstandskrav

Utvendig trapp mellom altan og terrasse, tilpasset terreng og brannkrav

Brannvern Brannsikkerhetsvurdering for trapp

Brannsikkerhetsvurdering i henhold til TEK17 § 11-6 for utvendig trapp

Dokumentasjon og tiltak for brannsikkerhet ved trapp

Tak Saltak og flatt tak

🧱 Taktekking antatt takstein eller membran

Saltak på hovedhus, flatt tak på garasje

Taktekking på tilbygget og garasje

Tømrer Trekonstruksjoner og montering

🧱 Tre

Tømrerarbeid for påbygg, terrasse, trapp og tak

Tømrerarbeid for bygging av tilbygget og utearealer

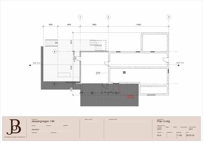
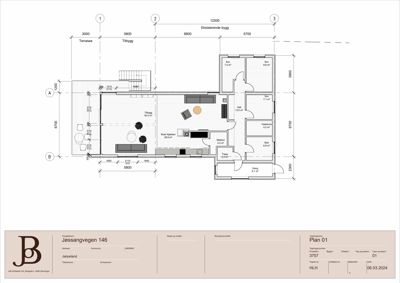
Plantegning

Garasje 36.7 m²

Etasje 0 36.7 m²

Rom Areal Vinduer Dører
Garasje 001 36.7 m² 0 1

Enebolig 251.1 m²

Etasje 1 251.1 m²

Rom Areal Vinduer Dører
Stue/Kjøkken 101 39.9 m² 2 1
Tilbygg 102 35.5 m² 1 1
Terrasse 103 0.0 m² 0 0
Hall 104 13.0 m² 0 3
Sov 105 7.0 m² 1 1
Sov 106 9.8 m² 1 1
Sov 107 7.1 m² 1 1
Vaskerom 108 4.2 m² 1 1
Bad 109 6.8 m² 1 1
Gang 110 8.1 m² 0 1
Matbod 111 3.3 m² 0 1
Trapp 112 2.2 m² 0 0

Fasader

Enebolig

Sør
Materiale
Tre
Taktype
Saltak
Vinduer
4
Dører
1
Balkonger
1
Synlige etasjer
1
Vest
Materiale
Tre
Taktype
Saltak
Vinduer
3
Dører
1
Balkonger
1
Synlige etasjer
1
Nord
Materiale
Tre
Taktype
Saltak
Vinduer
2
Dører
1
Synlige etasjer
1
Øst
Materiale
Tre
Taktype
Flatt tak
Vinduer
4
Dører
1
Synlige etasjer
2

Hendelser

21.04.2026 53/161 Ferdigattest - tilbygg - Jøssangvegen 146
05.02.2026 53/161 Dokumentsjekk - ikke behov for mangelbrev
05.01.2026 53/161 Søknad om ferdigattest - tilbygg - Jøssangvegen 146 - Hilde Lise Hammonds
16.09.2024 53/161 Fakturagrunnlag - tilbygg - Jøssangvegen - Hilde Lise Hammonds
30.08.2024 53/161 Tillatelse til tiltak - tilbygg - Jøssangvegen 146 - Hilde Lise Hammonds
28.08.2024 53/161 Dispensasjonsvedtak - endring - Jøssangvegen - Hilde Lise Hammonds
28.08.2024 53/161 Dokumentsjekk - ikke behov for mangelbrev
05.07.2024 53/161 Ettersendt dokumentasjon - tilbygg - Jøssangvegen 146 - Hilde Lise Hammonds
04.06.2024 53/161 Tilbakemelding om mangler - endring - Jøssangvegen 146 - Hilde Lise Hammonds
03.05.2024 53/161 Søknad om dispensasjon - tilbygg - Jøssangvegen 146 - Hilde Lise Hammonds
03.05.2024 53/161 Søknad om tillatelse i ett trinn - tilbygg - Jøssangvegen 146 - Hilde Lise Hammonds