Extension UnderBehandling Enebolig

Tilbygg på 15 m² til enebolig på Klatran 125

📍 Klatran 125 , 9419 SØRVIK

Nøkkelinfo

Sakstype
Tilbygg
Bygningstype
Enebolig
Bruksareal
15 m²
Boenheter
1
Kommune
Harstad - Hárstták
Fylke
Troms - Romsa - Tromssa
Gnr / Bnr
39 / 26
Saksnummer
2026/2277
Fase
Under behandling

Om byggesaken

Ny utvidelse av eksisterende enebolig på Klatran 125 med et tilbygg på 15 m² plassert på sørsiden av boligen. Tilbygget skal benyttes som nytt soverom og er tilpasset eksisterende bygningsstruktur og estetikk. Grunnforholdene er vurdert til morenesand, men ytterligere dokumentasjon på sikker byggegrunn kreves. Eiendommen ligger i et område regulert til boligformål med hensyn til kulturminner og skredfare. Tilbygget vil forbedre boligens funksjonalitet uten å påvirke dyrket mark eller kulturminner.

Produkter og materialer

Dører Innvendig dør

🧱 tre eller tilsvarende

Antall: 1

Dør til nytt soverom i tilbygget

Innvendig dør for adkomst til tilbygget

Maling Innvendig og utvendig maling

Maling av innvendige og utvendige flater i tilbygget

Overflatebehandling for ferdigstillelse

Grunnarbeid Fundamentering og grunnforsterkning

Vurdering og eventuelt tiltak for sikker byggegrunn i henhold til NVE veileder 1/2019

Grunnarbeid for å sikre stabilitet i kvikkleiresone

Isolasjon Vegger og tak

🧱 mineralull eller tilsvarende

Isolasjon i vegger og tak for tilbygget i henhold til TEK17

Isolasjon for energieffektivitet og komfort

Fasade Tilbygg yttervegger

🧱 trepanel eller tilsvarende tilpasset eksisterende kledning

Tilbygg på 15 m² med fasade tilpasset eksisterende bolig

Materialer for yttervegger i tilbygget som harmonerer med eksisterende fasade

Tømrer Bygging av tilbygg

Tømrerarbeid for oppføring av tilbygg på 15 m²

Tømrerarbeid for konstruksjon av tilbygget

Vinduer Fasadevindu

🧱 3-lags energiglass

Antall: 1

Vinduer i tilbygget til soverom, tilpasset eksisterende vindustype

Nye vinduer for tilbygget soverom

Elektro Elektrisk anlegg

Elektrisk installasjon i tilbygget for belysning og stikkontakter

Elektrisk anlegg for tilbygget

Tak Taktekking og isolasjon

🧱 isolasjon og taktekking tilpasset eksisterende bolig

Tak på tilbygget med isolasjon og taktekking som matcher eksisterende bygg

Takmaterialer for tilbygget

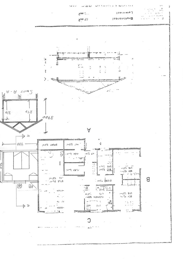
Plantegning

Enebolig 105.0 m²

Etasje 1 105.0 m²

Rom Areal Vinduer Dører
Stue 101 37.0 m² 2 1
Kjøkken 102 9.8 m² 1 1
Bad 103 5.3 m² 0 1
Vaskerom 104 2.7 m² 0 1
Gang 105 7.2 m² 0 0
Sov 106 12.7 m² 1 1
Sov 107 13.7 m² 1 1
Sport 108 3.3 m² 0 1

Hendelser

17.04.2026 Gbnr 39/26 - Klatran 125 - Tilbakemelding på innsendte suppleringer
14.04.2026 Gbnr 39/26 - Klatran 125 - Tilbygg til bolig - Oversendelse av sak til uttalelse hos kulturminnemyndigheten
30.03.2026 Svar - mangelbrev
27.03.2026 Gbnr 39/26 - Klatran 125 - Tilbygg til bolig - Mangelbrev
09.03.2026 Søknad om tillatelse til tiltak