Extension UnderBehandling Enebolig

Tilbygg og fasadeendring på enebolig i Klaus Hanssens vei 49

📍 Klaus Hanssens vei 49 , 5053 BERGEN

Nøkkelinfo

Sakstype
Tilbygg
Bygningstype
Enebolig
Bruksareal
361 m²
Boenheter
3
Kommune
Bergen
Fylke
Vestland
Gnr / Bnr
162 / 1310
Saksnummer
BYGG-2025/18315
Fase
Under behandling

Om byggesaken

Tiltaket omfatter tilbygg i form av underbygging av eksisterende balkong mot sørvest, endring av atkomst til 2. etasje med ny trapp, oppgradering og utvidelse av våtrom i 1. og 2. etasje, samt endret planløsning i eksisterende boenheter. Det inkluderer også bruksendring av deler av underetasjen fra tilleggsdel til hoveddel, innsetting av vindu i fasade mot nordøst som erstatning for inngangsdør, og utvidelse av vindu i underetasje mot sørvest med etablering av lysgraver. Bygningen er en eldre enebolig med tre boenheter, og tiltaket innebærer også oppgradering av lyd- og brannskillende konstruksjoner. Tilbygg fundamenteres på eksisterende støpt platting uten behov for graving. Det er søkt dispensasjon for avstand til nabogrense og kommunal veg. Totalt areal for bygget er ca. 360 m² med flere etasjer, trapper og balkonger.

Produkter og materialer

VVS Sanitærinstallasjoner

Oppgradering av våtrom i 1. og 2. etasje, rør- og sanitærinstallasjon ved ombygging

Sanitærinstallasjoner for oppgradering av bad og våtrom

Trapper Innvendig trapp

🧱 Tre/stål

Antall: 1

Ny trapp for endret atkomst til 2. etasje

Ny innvendig trapp for endret atkomst mellom etasjer

Gulv Overgulv og trinnlydsplate

🧱 Tre/laminat

Forbedring av trinnlydisolasjon i eksisterende bjelkelag

Overgulv og trinnlydsplate for lydforbedring

Mur Fundamentering

🧱 Betong

Fundamentering av tilbygg på eksisterende støpt platting uten behov for graving

Betongfundament for tilbygg under balkong

Elektro Elektrisk anlegg

Oppgradering i forbindelse med ombygging og tilbygg

Elektriske installasjoner for ombygging og tilbygg

Vinduer Fasadevindu

🧱 Tre med 3-lags energiglass

Antall: 14

Utvidelse av vindu i underetasje mot sørvest, nytt vindu i fasade nordøst som erstatning for inngangsdør

Nye og utvidede fasadevinduer i tre med energiglass for fasadeendring og tilbygg

Terrasse Balkong

🧱 Tre

Antall: 2

Eksisterende balkonger opprettholdes, en underbygges som tilbygg

Balkonger i tre med tilbygg under eksisterende balkong

Fasade Trepanel

🧱 Tre

Fasadeendring med tilbygg under eksisterende balkong, fasadeendring ved vindusinnsetting

Trepanel for fasadeendring og tilbygg

Tak Saltak

🧱 Takstein eller lignende

Eksisterende saltak opprettholdes, ingen endring i byggehøyde

Taktekking for eksisterende saltak

Isolasjon Lyd- og brannisolasjon

🧱 Mineralull eller tilsvarende

Lyd- og brannskillende himling og konstruksjoner rundt trapperom

Isolasjon for lyd- og brannskille i ombygde deler

Annet Miljøteknisk grunnundersøkelse

Vilkår om miljøteknisk grunnundersøkelse dersom det blir behov for graving

Undersøkelse av grunnforhold for forurensning ved eventuell graving

Dører Ytterdør

🧱 Tre/Glass

Antall: 2

Erstatning av inngangsdør med vindu i nordøstfasade, ny inngangsdør til boenhet

Dører for ny atkomst og erstatning av eksisterende inngangsdør

Plantegning

Enebolig 360.6 m²

Etasje 0 82.0 m²

Rom Areal Vinduer Dører
Værelse U0101 8.9 m² 1 1
Kjøkken U0102 4.5 m² 0 1
Entre/Gang U0103 9.0 m² 0 4
Bad/WC U0104 2.2 m² 0 1
Værelse U0105 9.9 m² 2 1
Vaskerom U0106 10.0 m² 1 1
Bodgang U0107 15.3 m² 0 2
Bod U0108 1.8 m² 0 1
Bod U0109 3.7 m² 0 1
Bod U0110 2.9 m² 0 1
Bod U0111 2.9 m² 0 1
Bod U0112 4.4 m² 0 1
Bod U0113 1.7 m² 0 1

Etasje -1 82.0 m²

Rom Areal Vinduer Dører
Stue/kjøkken U0101 25.0 m² 2 1
Sportsbod U0102 5.5 m² 0 1
Sportsbod U0103 5.1 m² 0 1
Trapperom U0104 7.0 m² 0 0
Entre U0105 8.8 m² 0 2
Soverom U0106 10.4 m² 1 1
Soverom U0107 8.5 m² 1 1
Bad U0108 3.8 m² 0 1
Vask U0109 1.8 m² 0 1

Etasje 2 98.3 m²

Rom Areal Vinduer Dører
Stue 201 35.8 m² 3 1
Kjøkken 202 10.6 m² 0 1
Soverom 203 14.0 m² 1 1
Soverom 204 7.6 m² 0 1
Soverom 205 7.9 m² 0 1
Gang / Entre 206 6.8 m² 0 2
Bad/Vask 207 5.3 m² 0 1
Trapperom 208 6.5 m² 0 1
Balkong 209 7.7 m² 0 1
Balkong 210 4.3 m² 0 1

Etasje 1 98.3 m²

Rom Areal Vinduer Dører
Trapperom 101 4.0 m² 0 1
Soverom 102 6.2 m² 1 1
Kjøkken 103 6.9 m² 1 1
Spisestue 104 14.0 m² 1 1
Balkong 105 4.4 m² 0 1
Gang / Entre 106 12.1 m² 0 3
Bad 107 3.9 m² 0 1
Soverom 108 13.9 m² 1 1
Stue 109 22.0 m² 1 1
Soverom 110 8.9 m² 1 1

Fasader

Enebolig

Sørøst
Materiale
Tre
Taktype
Saltak
Vinduer
5
Dører
0
Balkonger
1
Synlige etasjer
2
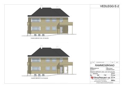
Nordvest
Materiale
Tre
Taktype
Saltak
Vinduer
5
Dører
1
Balkonger
1
Synlige etasjer
2
Sørvest
Materiale
Tre
Taktype
Saltak
Vinduer
8
Dører
1
Balkonger
1
Synlige etasjer
2

Hendelser

13.04.2026 Klaus Hanssens vei 49 Søknad om igangsettingstillatelse 162/1310
09.02.2026 Fakturagrunnlag, 162/1310, Klaus Hanssens vei 49, bruksendring
09.02.2026 Ubw ordre 20688425
04.02.2026 Rammetillatelse, 162/1310, Klaus Hanssens vei 49
30.01.2026 Tilleggsopplysninger - 162/1310/0/0 Klaus Hanssens vei 49, bruksendring fra tilleggsdel til hoveddel
28.01.2026 Byantikvarens tilbakemelding BYGG-2025/18315, 162/1310, Klaus Hanssens vei 49, tilbygg, fasadeendring, innlemming og bruksendring
07.01.2026 Intern korrespondanse, BYGG-2025/18315, 162/1310, Klaus Hanssens vei 49, tilbygg, fasadeendring, innlemming og bruksendring
17.12.2025 Bekreftelse på mottatt søknad - 162/1310/0/0 Klaus Hanssens vei 49, bruksendring fra tilleggsdel til hoveddel
15.12.2025 Klaus Hanssens vei 49 Søknad om rammetillatelse 162/1310