Extension Soeknad Enebolig

Tilbygg på bolig i Knutvikveien 53, Svolvær

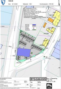
📍 Knutvikveien 53 , 8300 SVOLVÆR

Nøkkelinfo

Sakstype
Tilbygg
Bygningstype
Enebolig
Bruksareal
214 m²
Boenheter
1
Kommune
Vågan
Fylke
Nordland - Nordlánnda
Gnr / Bnr
18 / 1748
Saksnummer
26/76
Fase
Søknad

Om byggesaken

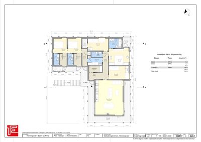
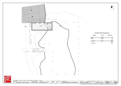
To-etasjes tilbygg på eksisterende bolig i Knutvikveien 53, Svolvær, med utvidelse mot sør. Tilbygget inkluderer to soverom, treningsrom og utvidet entre i 1. etasje, samt utvidet stue og takterrasse i 2. etasje. Den eksisterende bygningen har et bebygd areal på 128,8 m² og bruksareal på 51,3 m², som etter tilbygg vil øke til BYA 164,9 m² og BRA 213,7 m². Avstanden til naboeiendom er ca. 4 meter, og til midten av veien 11,3 meter. Bygget er i tre med saltak, og tilbygget har fasader mot sør og øst. Prosjektet inkluderer også vurdering av skredfare og dispensasjon fra reguleringsplan. Parkeringsplass for to biler finnes i garasje på egen eiendom.

Produkter og materialer

Vinduer Fasadevindu

🧱 Tre eller aluminium, 3-lags glass

Antall: 17

Vinduer i tilbygget, inkludert nye balkongdører

Vinduer og balkongdører for tilbyggets soverom, stue og treningsrom

Dører Ytterdører og balkongdører

🧱 Tre eller aluminium

Antall: 4

Dører til entre, balkong og treningsrom

Ytterdører og balkongdører i tilbygget

VVS Sanitær og oppvarming

VVS-installasjoner for bad, vaskerom og oppvarming i tilbygget

Tak Saltak

🧱 Tre, takstein eller tilsvarende

Saltak på tilbygget, delvis takterrasse på 2. etasje

Takstruktur og taktekking for tilbygget

Elektro Elektrisk anlegg

Elektriske installasjoner for belysning, stikkontakter og varme i tilbygget

Gulv Innvendige gulv

Gulv i tilbygget, sannsynligvis parkett eller laminat

Grunnarbeid Fundamentering og drenering

Fundamentering og drenering for tilbygget

Terrasse Takterrasse

🧱 Tre eller kompositt

Antall: 1

Halvparten av 2. etasje tilbygget er takterrasse

Takterrasse på tilbyggets 2. etasje

Tømrer Bærekonstruksjon og innvendige vegger

🧱 Tre

Tømrerarbeid for bærekonstruksjon og innvendige vegger i tilbygget

Fasade Trepanel kledning

🧱 Tre

Tilbygg med trepanel kledning i tråd med eksisterende bolig

Kledning for tilbyggets fasader mot sør og øst

Garasjeport Garasjeport

Antall: 1

Garasje med plass til to biler på egen eiendom

Eksisterende garasje med port for parkering

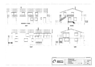
Fasader

Postgården

Nord
Materiale
Tre
Taktype
Saltak
Vinduer
11
Dører
1
Synlige etasjer
2

Garasje

Ukjent
Taktype
Flatt tak
Vinduer
0
Dører
1
Synlige etasjer
1

Enebolig

Ukjent
Materiale
Tre
Taktype
Pulttak
Vinduer
1
Dører
0
Synlige etasjer
1
Sør
Materiale
Tre
Taktype
Saltak
Høyde
6.5 m
Mønehøyde
8.2 m
Vinduer
4
Dører
1
Balkonger
1
Synlige etasjer
2
Øst
Materiale
Tre
Taktype
Saltak
Høyde
13.2 m
Vinduer
2
Dører
1
Balkonger
1
Synlige etasjer
2
Nord
Materiale
Tre
Taktype
Saltak
Høyde
6.5 m
Mønehøyde
8.2 m
Vinduer
5
Dører
1
Balkonger
1
Synlige etasjer
2
Vest
Materiale
Tre
Taktype
Saltak
Høyde
6.5 m
Mønehøyde
8.2 m
Vinduer
3
Dører
0
Balkonger
1
Synlige etasjer
2
Nord-øst
Materiale
Tre
Taktype
Saltak
Høyde
6.3 m
Vinduer
3
Dører
1
Synlige etasjer
2
Nord-vest
Materiale
Tre
Taktype
Saltak
Vinduer
2
Dører
0
Synlige etasjer
2
Syd-vest
Materiale
Tre
Taktype
Saltak
Vinduer
2
Dører
3
Synlige etasjer
2
Syd-øst
Materiale
Tre
Taktype
Saltak
Høyde
6.3 m
Vinduer
4
Dører
2
Synlige etasjer
2

Fasade Nord

Nord
Materiale
Tre
Taktype
Saltak
Høyde
4.4 m
Mønehøyde
10.7 m
Vinduer
12
Dører
4
Balkonger
4
Synlige etasjer
2

Fasade Vest

Vest
Materiale
Tre
Taktype
Saltak
Høyde
4.4 m
Mønehøyde
10.7 m
Vinduer
6
Dører
1
Balkonger
2
Synlige etasjer
2

Fasade Øst

Øst
Materiale
Tre
Taktype
Saltak
Høyde
4.4 m
Mønehøyde
10.7 m
Vinduer
6
Dører
1
Balkonger
2
Synlige etasjer
2

Fasade Sør

Sør
Materiale
Tre
Taktype
Saltak
Høyde
4.4 m
Mønehøyde
10.7 m
Vinduer
12
Dører
4
Balkonger
4
Synlige etasjer
2

F1

Nord
Materiale
Tre
Vinduer
4
Dører
0
Synlige etasjer
1

F2

Vest
Materiale
Tre
Vinduer
0
Dører
0
Synlige etasjer
1

Eksisterende

Ukjent
Taktype
Saltak
Vinduer
4
Dører
2
Balkonger
1
Synlige etasjer
2

Hendelser

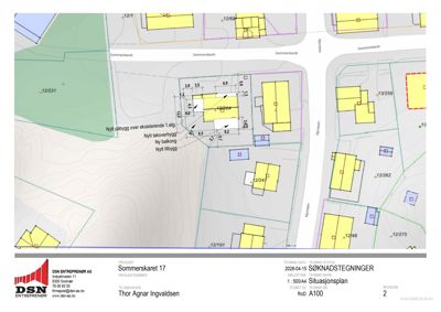
17.04.2026 Gbn 12/264 - Nabovarsel for Sommerskaret 17, 8310 Kabelvåg
13.04.2026 Gbn 5/22 - Nabovarsel Vestervågveien 6 B
07.04.2026 Gbn 12/234 - Nabovarsel for Torggata 19
07.04.2026 Gbn 18/1748 - Nabovarsel for Knutvikveien 53
27.03.2026 Gbn 13/279 - Vognmannsløkka 17, Kabelvåg - Nabovarsel
25.03.2026 Gbn 18/2 - Nabovarsel - Vestermyrveien 2, 8300 Svolvær
23.03.2026 Nabovarsel Gbn 13/5
23.03.2026 Nabovarsel Gbn 18/623 - Solheimveien 39, 8300 Svolvær
18.03.2026 Nabovarsel Gbn 18/1806 - Sivert Nilsens gate 51
17.03.2026 Nabovarsel for Gbn 11/1, 8 og 9, Gang- og sykkelveg Mølnosen
16.03.2026 Nabovarsel Gbn 18/2 - Solheimveien 41, Vågan
12.03.2026 Nabovarsel for Gbn 11/1
09.03.2026 Nabovarsel for Gbn 18/500
09.03.2026 Nabovarsel Gbn 18/500 for byggeplaner i nærheten av Fiskergata 23
03.03.2026 Nabovarsel for Saltværingsveien til Vågan Kommune (938644500)
26.02.2026 Nabovarsel for Hjellveien 12 til Vågan Kommune (938644500)
26.02.2026 Nabovarsel for Hellandsgata 79 til VÅGAN KOMMUNE (938644500)
24.02.2026 Gbn 18/2117 - Nabovarsel
24.02.2026 Gbn 5/417 - Nabovarsel
13.02.2026 Nabovarsel for Fiskergata 23, 25 til Vågan Kommune (938644500)
09.02.2026 Nabovarsel Gbn 5/485/0/1 - for til VÅGAN KOMMUNE (938644500)
29.01.2026 Nabovarsel for Vestermyrveien 14 til VÅGAN KOMMUNE (938644500)
27.01.2026 Gbn 12/1 - Kongstien 3 - Vågan kommune
27.01.2026 Gbn 18/26 - Caroline Harveys vei 5, 8300 Svolvær
21.01.2026 Gbn 18/675 - Einar Bergs vei 17 - Vågan kommune
12.01.2026 Gbn 60/9 - Nabovarsel
06.01.2026 Nabovarsel eiendommen Hovsundveien 86, 8314 Gimsøysand