Extension UnderBehandling Enebolig

Tilbygg og bruksendring på enebolig i Konglefaret 17, Drammen

📍 Konglefaret 17 , 3021 DRAMMEN

Nøkkelinfo

Sakstype
Tilbygg
Bygningstype
Enebolig
Bruksareal
235 m²
Boenheter
2
Kommune
Drammen
Fylke
Buskerud
Gnr / Bnr
115 / 487
Saksnummer
25/37839
Fase
Under behandling

Om byggesaken

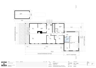
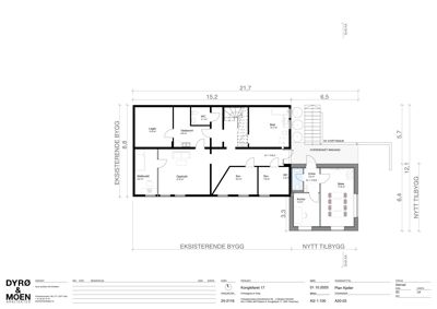
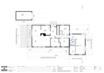
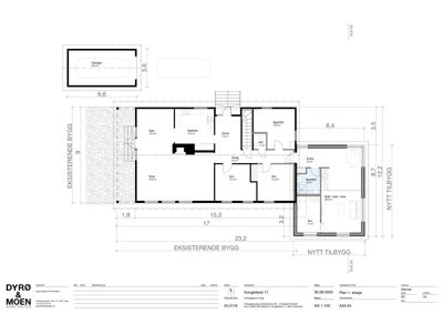
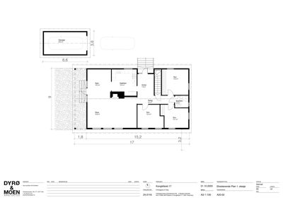
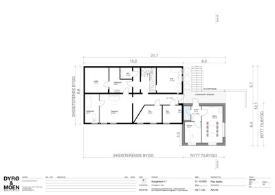
Ny to-etasjes tilbygg på eksisterende enebolig i Konglefaret 17, Drammen, med samlet økning i bebygd areal fra 177,9 m² til 235 m² pluss 36 m² parkering på terreng. Tilbygget inkluderer treningsleilighet for ungdom og forbedrede fasiliteter for ansatte som møterom, kontor og WC. Bygningen opprettholder småhuskarakter med saltak og trekledning, og tilpasning til eksisterende terreng med ny støttemur. Eiendommen ligger innenfor byggegrense mot vassdrag, og det er søkt dispensasjon for dette. Tiltaket medfører ikke økt antall beboere eller ansatte, og parkerings- og uteoppholdsarealkrav er oppfylt. Det er dokumentert sikker byggegrunn og tilfredsstillende håndtering av private vann- og avløpsledninger. Nabomerknader gjelder hovedsakelig trafikk og utbyggingens omfang, men tiltakshaver bekrefter at det ikke er planlagt økning i beboere eller ansatte.

Produkter og materialer

Fasade Trekledning og saltak

🧱 Tre

Småhuskarakter, saltak, gesimshøyde ca 6,5 m, mønehøyde ca 8,2 m

Fasade i tre med saltak som matcher eksisterende bolig

Elektro Elektriske installasjoner

Elektriske installasjoner i tilbygg og eksisterende bolig

Oppgradering og nyinstallasjon av elektroanlegg

VVS Sanitærinstallasjoner og vannforsyning

Oppgradering og tilpasning av vann- og avløpsledninger, flytting av kummer

VVS-installasjoner tilpasset tilbygg og eksisterende bygg

Trapper Innvendige trapper

Antall: 2

To trapper i bolig og tilbygg

Innvendige trapper mellom etasjer

Parkering Biloppstillingsplasser på terreng

🧱 Grus

Antall: 2

To parkeringsplasser på terreng i tillegg til garasje

Parkering for ansatte og besøkende

Betong Fundament og støttemur

🧱 Betong

Ny støttemur og fundamenter for tilbygg

Betongkonstruksjoner for fundament og støttemur

Terrasse Uteområde og uteplass

Stor terrasse utenfor stue og kjøkken

Uteplass for beboere og ansatte

Dører Ytterdører og innerdører

Antall: 15

Ytterdører og innerdører i tilbygg og eksisterende bolig

Dører til inngang, rom og sekundær boenhet

Maling Innvendig og utvendig maling

Maling av fasade og innvendige flater

Overflatebehandling for beskyttelse og estetikk

Isolasjon Bygningsisolasjon

Isolasjon i vegger, tak og gulv i tilbygg

Isolasjon for energieffektivitet og komfort

Grunnarbeid Tomtearbeid og fundamentering

Ny støttemur, grunnarbeid til tilbygg

Grunnarbeid for tilbygg og støttemur i terreng

Vinduer Fasadevindu

Antall: 20

Vinduer fordelt på fasader, antall fra fasadetegninger og plantegninger

Nye og eksisterende fasadevinduer i tilbygg og bolig

Gulv Innvendige gulvflater

Gulv i tilbygg og eksisterende bolig, vaskbare gulv for allergikere

Innvendige gulvflater i tilbygg og eksisterende bygg

Fasader

Enebolig

Vest
Materiale
Tre
Taktype
Saltak
Høyde
6.5 m
Mønehøyde
8.2 m
Vinduer
2
Dører
1
Synlige etasjer
2
Nord
Materiale
Tre
Taktype
Saltak
Høyde
6.5 m
Mønehøyde
8.2 m
Vinduer
3
Dører
1
Synlige etasjer
2
Sør
Materiale
Tre
Taktype
Saltak
Høyde
6.5 m
Mønehøyde
8.2 m
Vinduer
10
Dører
2
Synlige etasjer
2
Øst
Materiale
Tre
Taktype
Saltak
Høyde
6.5 m
Mønehøyde
8.2 m
Vinduer
5
Dører
1
Synlige etasjer
2

Garasje

Øst
Materiale
Tre
Taktype
Saltak
Høyde
3.6 m
Mønehøyde
4.5 m
Vinduer
0
Dører
1
Synlige etasjer
1

Hendelser

14.04.2026 Konglefaret 17, tilleggsdokumentasjon - plantegning og geoteknisk notat
24.03.2026 Konglefaret 17, bruksendring og tilbygg - Dispensasjon fra byggegrense mot vassdrag - Uttalelse
23.03.2026 Konglefaret 17, uttalelse til søknad om dispensasjon fra byggegrense mot vassdrag for tilbygg
18.03.2026 Konglefaret 17, vi vurderer å avslå søknaden din
02.03.2026 Konglefaret 17, anmodning om uttalelse fra Statsforvalteren
02.03.2026 Konglefaret 17, anmodning om uttalelse fra Buskerud fylkeskommune
09.02.2026 Konglefaret, Søknad om dispensasjon, nabovarsling og merknader, situasjonsplan og redegjørelser Gjennomføringsplan 115/487
22.12.2025 Konglefaret 17, bekreftelse på fristutsettelse
22.12.2025 Konglefaret 17, ber om utsettelse av frist for innsendelse av tilleggsdokumentasjon
18.11.2025 Konglefaret 17, vi trenger flere opplysninger for å behandle søknaden din
24.10.2025 Konglefaret Supplering av søknad 115/487
22.10.2025 Konglefaret, søknad om rammetillatelse