Facade
En håndtegnet fasadevisning (opprikk) av en bygning, sannsynligvis en uthus eller garasje, med angitte mål på vinduer og dør.
1 / 20
Extension
Unknown
Enebolig
Tilbygg og fasadeendring i enebolig med carport
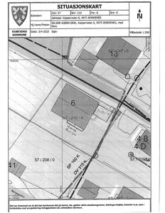
📍 Kopperveien 6 , 9475 BORKENES
Nøkkelinfo
- Sakstype
- Tilbygg
- Bygningstype
- Enebolig
- Kommune
- Kvæfjord
- Fylke
- Troms - Romsa - Tromssa
- Gnr / Bnr
- 57 / 210
- Saksnummer
- 2024/1445
- Fase
- Unknown
Om byggesaken
Saken gjelder søknad om tilbygg, fasadeendringer og endret planløsning i enebolig på Kopperveien 6, samt vurdering av carport.
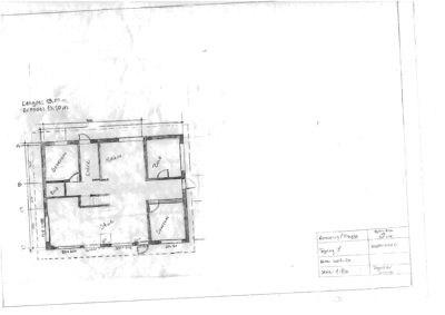
Plantegning
Enebolig 138.8 m²
Etasje 1 138.8 m²
| Rom | Areal | Vinduer | Dører |
|---|---|---|---|
| Stue 101 | 60.0 m² | 2 | 2 |
| Soverom 102 | 12.0 m² | 1 | 1 |
| Soverom 103 | 12.0 m² | 1 | 1 |
| Kjøkken 104 | 12.0 m² | 1 | 1 |
| Bad 105 | 6.0 m² | 0 | 1 |
| Entré 106 | 4.0 m² | 0 | 1 |
| Bod 107 | 4.0 m² | 1 | 1 |
Fasader
Hovedbygg
Vest
- Materiale
- Tre
- Taktype
- Saltak
- Vinduer
- 3
- Dører
- 0
- Synlige etasjer
- 1
Carport
Nord
- Taktype
- Flatt tak
- Vinduer
- 2
- Dører
- 1
- Synlige etasjer
- 1
Øst
- Materiale
- Tre
- Taktype
- Saltak
- Vinduer
- 2
- Dører
- 1
- Synlige etasjer
- 1
Garasje
Øst
- Materiale
- Tre
- Taktype
- Saltak
- Vinduer
- 2
- Dører
- 0
- Synlige etasjer
- 1
Vest
- Materiale
- Tre
- Taktype
- Saltak
- Vinduer
- 4
- Dører
- 0
- Synlige etasjer
- 1
Hendelser
17.04.2026
Sv: Gbnr 57/210 Kopperveien 6 - INTERN HØRING - carport
08.04.2026
Sv: Oppdatert søknad fasadeendring og tilbygg Kopperveien 6
25.03.2026
Om manglende dokumentasjon byggesøknad
13.03.2026
Gbnr 57/210 Kopperveien 6 - Justert søknad om endringer på bolig (tilbygg, fasadeendring, endret planløsning mm) - Ber om supplerende dokumentasjon
11.03.2026
Gbnr 57/210 Kopperveien 6 - INTERN HØRING - carport
17.02.2026
Sv Oppdatert søknad fasadeendring og tilbygg Kopperveien 6 (midlertidig svar)
17.02.2026
Oppdatert søknad fasadeendring og tilbygg Kopperveien 6